Wohnung (Ziegel) Verkauf Budapest I. bezirk - Hunyadi János út

Verkauf Budapest I. kerület Wohnung (Ziegel)
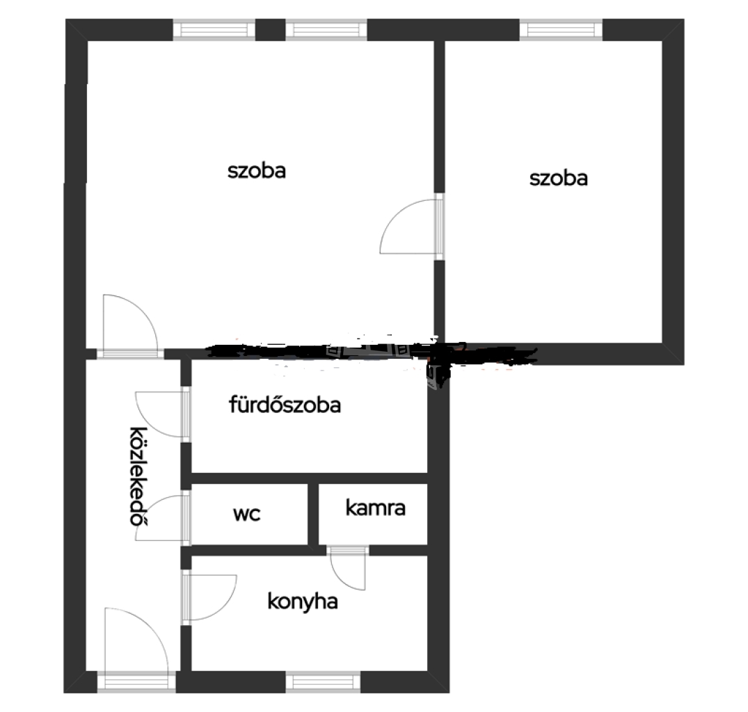
65 m2Wohnfläche 2 Zimmer
87 000 000 HUF Kaufpreis
393574ID nummer
Weitere Informationen

Straße Ansicht

Zu renovieren Zustand

Tégla Struktur

Gas (Umlauf) Heizung

voller Komfort Komfort

Auf Gemeindeflächen Parkplatz

Etage Ground floor

Es gibt Aufzug

Ausgezeichnet Öffentliche Verkehrsmittel

Nein Amerikanische Küche

Es gibt nicht Zugang zum garten

1926 Baujahr

Gemeinsame Gebühren 16 130 HUF

West Orientierung

Lánchídi alagút közelében, a Várkert bazár szomszédságában eladó egy 2 szobás, 65 m2-es lakás!

Csodás környezet a város szívében.

A ház jól karbantartott.
A lakás felújítandó.
Fűtés cirkóval megoldott.
Van egy cserépkályha is bélelt kéménnyel.
Falai 1 m vastagok.

Kilépve a házból pár lépés után a Parlament és az egész pesti oldal látható.

A közlekedés kíváló.

Lehet, hogy erre várt? Szeressen bele és szépítse kedvére!
Gergicsné Veér Annamária

Gergicsné Veér Annamária
Inserent

Rufen Sie uns mit Vertrauen

+36-20-396- Zeig!

Andere eigene Anzeigen

Immobilienbüro
GDN Immobilien Netzwerk - SZIGET
+36 24 656 320