Doppelhaus Verkauf Budapest III. bezirk - Testvérhegyi út

Verkauf Budapest III. kerület Doppelhaus
209 m2Wohnfläche 4 Zimmer
395 000 000 HUF Kaufpreis
393783ID nummer
Weitere Informationen

400 m2 Grundstück

Panorama Ansicht

Neubau Zustand

Tégla Struktur

110 m2 Balkon/terrasse

Wärmepumpe Heizung

Luxus Komfort

Eigene Garage Parkplatz

Ausgezeichnet Öffentliche Verkehrsmittel

Amerikanische Küche

Es gibt Zugang zum garten

2026 Baujahr

Südosten Orientierung

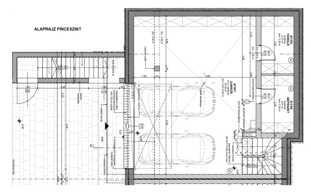
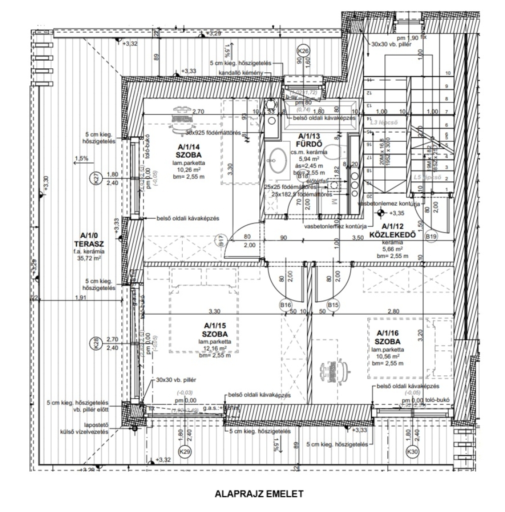
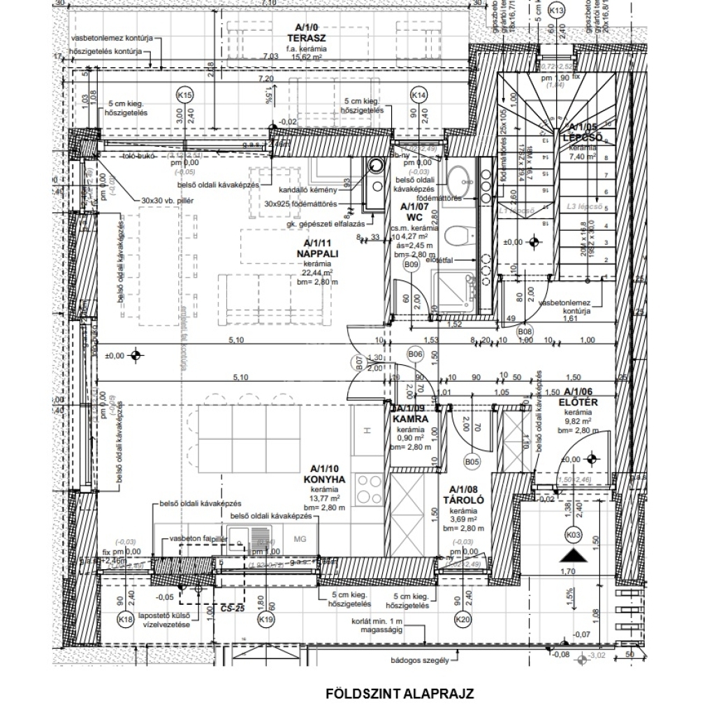
BUDAPEST III. KERÜLET Testvérhegyen, ÚJ ÉPÍTÉSŰ, bruttó 209 m2 alapterületű, 4 szobás, 3 szintes, duplakomfortos, PRÉMIUM minőségben kivitelezett, 360 fokban ÖRÖKPANORÁMÁS terasszal, kandallóval, dupla garázzsal rendelkező LUXUS kategóriás ikerházi lakás a hozzá tartozó 400 m2 telekkel, megbízható kivitelezőtől ELADÓ.

A TÖBB ÉVTIZEDES építési TAPASZTALATTAL rendelkező kivitelező olyan lakásokat épít, amelyek biztonságot, stabilitást nyújtanak, ezért is tartja kötelességének, hogy a LEGJOBB minőséget és a legkörültekintőbb kiszolgálást nyújtsa. MEGBÍZHATÓ, igényes kivitelezőtől LUXUS minőségű ingatlant vásárolhat.

MŰSZAKI TARTALOM:
Hőszigetelés az előírásoknak megfelelően (15 cm) grafitos, válaszfalak 10 cm-es válaszfaltégla.
Daikin hőszivattyús mennyezet hűtés-fűtés és padlófűtés.
Vízszűrő rendszer (vízkőmentesítővel).
Hővisszanyerő szellőztető rendszer.
Hofstadter 3 rétegű 6 légkamrás külső nyílászárók.
Zsaluzia, szúnyogháló beépítés.
Prémium kategóriás olasz hideg- és melegburkolat, szaniterek.
Hofstadter beltéri ajtók tokban nyíló/záródó, fürdőszobában automata küszöbbel.
Okos otthon rendszer.
Ujjlenyomattal működtetett bejárati ajtózár.
Érintő kijelzős kapcsolók.
Riasztó, kaputelefon előkészítés.
Elektromos autó töltő előkészítés.
Üvegkorlát.
Kandalló.
Kert: öntözőrendszer opcionális.

A kivitelezést modern, időtálló stílus és PRÉMIUM anyaghasználat jellemzi. Részletes műszaki tartalom a kivitelezővel történt egyeztetést követően. Alaprajz és fotók tájékoztató jellegűek.

Átadás: 2026.I. negyedév

Ajánlom azoknak, akik kényelmes, jól átgondolt terekkel rendelkező OTTHONT keresnek KITŰNŐ lokációban, ahol továbbá biztosított generációkon keresztül az ingatlan értékállósága.

Néhány perc távolságban a GoBuda Mall bevásárlóközpont, a British School és a közlekedés is KIVÁLÓ.

Hívjon bizalommal, ha az ajánlat felkeltette érdeklődését.
Csík Zsolt

Csík Zsolt
Inserent

Rufen Sie uns mit Vertrauen

+36-30-641- Zeig!

Andere eigene Anzeigen

Immobilienbüro
GDN Immobilien Netzwerk - SZIGET
+36 24 656 320