Reihenhaus Verkauf Budapest XII. bezirk - Méra utca

Verkauf Budapest XII. kerület Reihenhaus
122 m2Wohnfläche 4 Zimmer
159 600 000 HUF Kaufpreis
393665ID nummer
Weitere Informationen

35 m2 Grundstück

Panorama Ansicht

In befriedigendem Zustand Zustand

Panel Struktur

5 m2 Balkon/terrasse

Gas (Umlauf) Heizung

voller Komfort Komfort

Stellplatz Parkplatz

Gut Öffentliche Verkehrsmittel

Nein Amerikanische Küche

Es gibt Zugang zum garten

1980 Baujahr

Gemeinsame Gebühren 15 000 HUF

West Orientierung

ELADÓ KÖZEPES ÁLLAPOTÚ SORHÁZ XII. KERÜLETBEN MÁRTONHEGYEN – PANORÁMA, KERT ÉS SOK TÁROLÁSI LEHETŐSÉG!

120 nm, 4 szoba, terasz + kert, 159.6 MFt.

Budán, a Mártonhegyen, csendes, zöld környezetben eladó egy 120 nm-es, háromszintes, kertkapcsolatos panel építésű sorház. A ház panorámás, világos, és a természet közelsége garantált, miközben a belváros 15–20 perc alatt elérhető autóval, vagy a 110-es és 112-es buszokkal.

A sorház része egy sorompóval védett lakóparknak, a kert, előkert és erkély különösen családbaráttá teszi az ingatlant. Az alsószint félszuterén része sokféle felhasználásra alkalmas: játszótér, wellness, edzőterem, vagy akár vendégszoba is kialakítható.

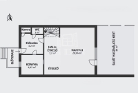
Elrendezés:
• Földszint: nappali, étkező, konyha, WC, előszoba, kamra + kertkapcsolat
• Felsőszint: két hálószoba, fürdő, panorámás erkély, beépített gardróbok
• Alsószint: mosókonyha, előtér, szoba („játszó- vagy wellness-rész”)
Főbb előnyök:
• Saját kert és előkert
• Panorámás erkély
• Világos, nagy ablakok
• Gardróbszekrények, sok tárolási lehetőség
• Lakható állapot, modernizálható
Közlekedés és infrastruktúra:
• Buszmegállók gyalogosan elérhetők
• MOM Park, Hegyvidéki Bevásárlóközpont közel
• Óvodák, iskolák, játszóterek a környéken
• Természetközeli helyszín: Normafa, Kis-Sváb-hegy

Parkolás: saját autóbeálló + közterületen kényelmes, nem fizetős parkolás.

Irányár: 159,6 millió Ft
Apolzan Magdalena

Apolzan Magdalena
Inserent

Rufen Sie uns mit Vertrauen

+36-70-908- Zeig!

Andere eigene Anzeigen

Immobilienbüro
GDN Immobilien Netzwerk - SZIGET
+36 24 656 320

Rufen Sie mich zurück