Wohnung (Ziegel) Verkauf Budapest II. bezirk - Csalogány utca

Verkauf Budapest II. kerület Wohnung (Ziegel)
156 m2Wohnfläche 4 + 1 Zimmer
259 000 000 HUF Kaufpreis
390315ID nummer
Weitere Informationen

Panorama Ansicht

In gutem Zustand Zustand

Tégla Struktur

10 m2 Balkon/terrasse

Gas (Umlauf) Heizung

Dupla komfort Komfort

Eigene Garage Parkplatz

Etage 5

Top etage

Es gibt Aufzug

Ausgezeichnet Öffentliche Verkehrsmittel

Amerikanische Küche

Es gibt nicht Zugang zum garten

1990 Baujahr

Gemeinsame Gebühren 60 000 HUF

Südosten Orientierung

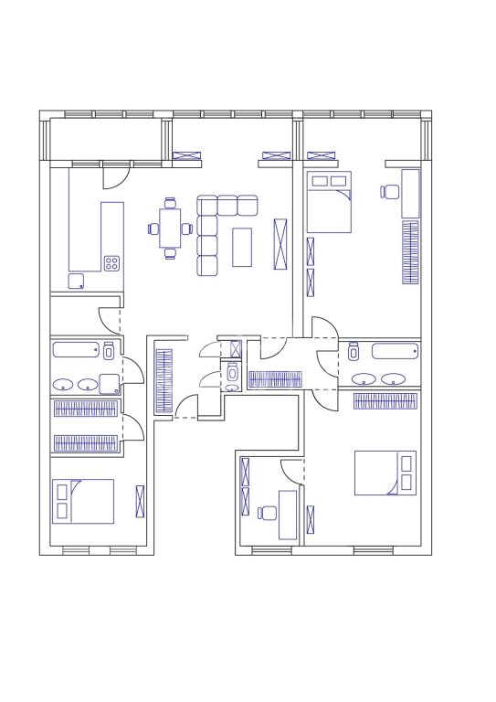
II.kerület Csalogány utcában kínálunk eladásra egy 156 m2-es, beépített ERKÉLYES, JÓ ÁLLAPOTÚ, városi PANORÁMÁS lakást!

Ingatlan jellemzői:
-Épület: Rendezett liftes ház, a lakás az 5. emeleten található
-Szobák: 4+1 szoba
-Nappali: Beépített, modern, teljesen felszerelt konyhával. Tágas és világos, ideális családi összejövetelekhez.
-Hálószobák:  a nappali két oldalán található a három különnyíló hálószoba. Emellett van egy kisebb szoba is, amely irodának vagy vendégszobának is tökéletesen használható.
-Fürdőszoba: Zuhanyzó, kád és két mosdó mindkét fürdőszobában
-Mosókonyha: Külön mosókonyha a háztartási feladatok megkönnyítésére.

Különlegesség:
-Több lakás kialakítása lehetséges: Három különálló lakásra osztható, mivel három helyrajzi számmal rendelkezik az ingatlan. 

A lakáshoz vásárolható garázs is:
-Elhelyezkedés: A földszinten található, közvetlen utcai bejárattal -27 m2-
-Felszereltség: Raktárnak vagy műhelynek is használható, saját villany- és gázórákkal, valamint vízzel felszerelt.
 
Kiváló elhelyezkedése, praktikus elrendezése és a környék magas színvonalú infrastruktúrája miatt ez az ingatlan tökéletes választás nagycsaládosoknak vagy befektetőknek egyaránt. Jöjjön el, és tekintse meg személyesen!

Amennyiben hirdetésem felkeltette érdeklődését, további információra lenne szüksége, hívjon bizalommal!

ID:369785
Köő Zsolt

Köő Zsolt
Inserent

Rufen Sie uns mit Vertrauen

+36-20-234- Zeig!

Andere eigene Anzeigen

Immobilienbüro
GDN Immobilien Netzwerk - SZIGET
+36 24 656 320