Wohnung (Ziegel) Verkauf Budapest V. bezirk - Honvéd utca

Verkauf Budapest V. kerület Wohnung (Ziegel)
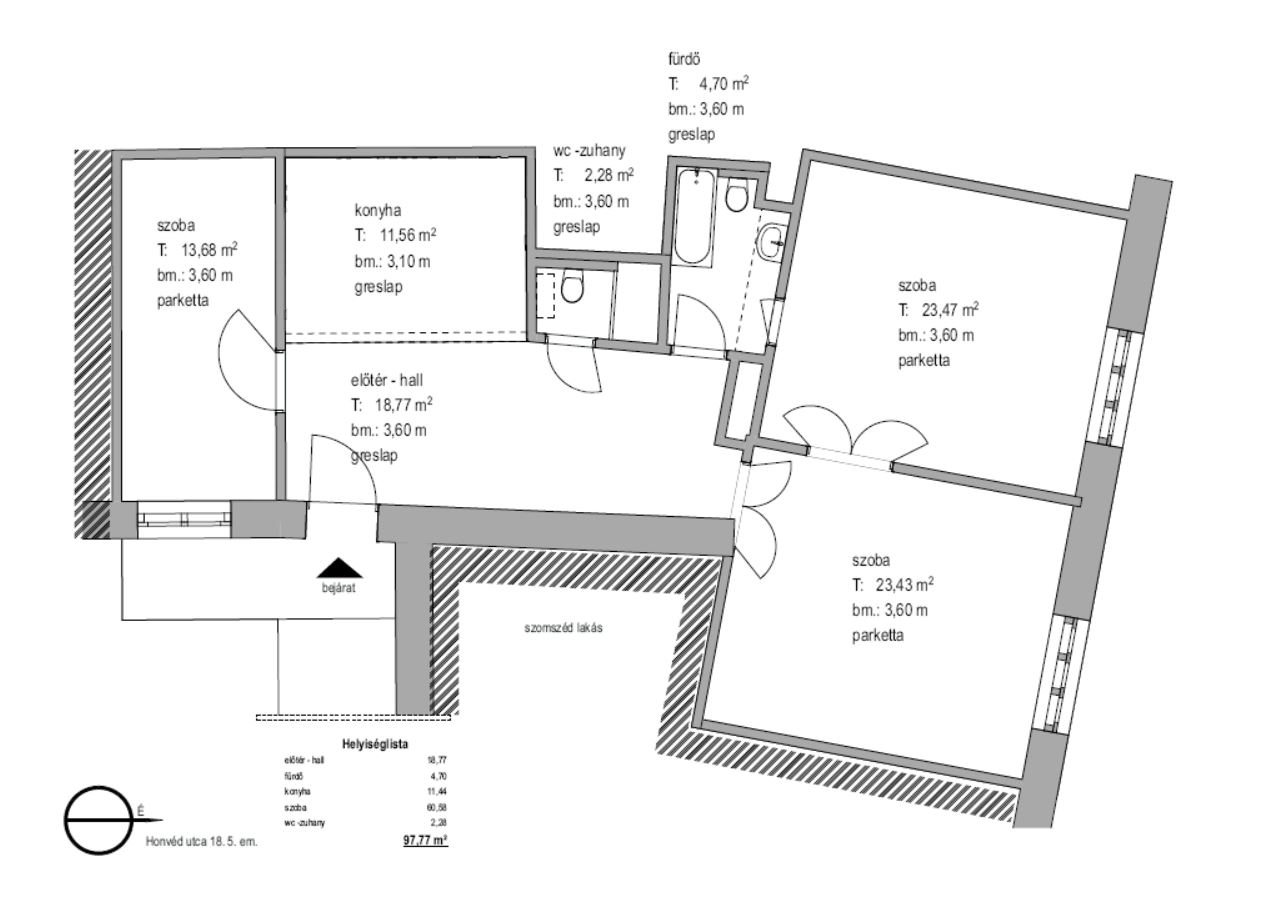
101 m2Wohnfläche 3 Zimmer
190 000 000 HUF Kaufpreis
390404ID nummer
Weitere Informationen

Straße Ansicht

Erneuert Zustand

Tégla Struktur

Zentralheizung im Haus Heizung

Dupla komfort Komfort

Auf Gemeindeflächen Parkplatz

Etage 5

Es gibt Aufzug

Ausgezeichnet Öffentliche Verkehrsmittel

Nein Amerikanische Küche

Es gibt nicht Zugang zum garten

1905 Baujahr

Gemeinsame Gebühren 59 820 HUF

Osten Orientierung

Eladó felújított, tágas, 3 szobás lakás Budapest szívében
Ritka lehetőség a belváros egyik legkedveltebb részén! A Honvéd utcában kínálunk megvételre egy összesen 101 m²-es, teljeskörűen felújított, nagy terekkel rendelkező, 3 szobás, 2 fürdőszobás gyönyörű otthont.
A lakás 2025-ben átfogó felújításon esett át, melynek során új műanyag, redőnyös kültéri nyílászárókat, modern burkolatokat és minőségi szanitereket kapott. Az ingatlan elosztása rendkívül praktikus: különnyíló szobák, egy kádas és egy zuhanyzós fürdőszoba is szolgálja a kényelmet – így családoknak, pároknak és akár kiadásra is ideális választás.
Az 5. emeleti elhelyezkedésnek köszönhetően a lakás világos, csendes, a jó állapotú, karbantartott társasház pedig lifttel rendelkezik, ami még kényelmesebbé teszi a mindennapokat. A közös költség tartalmazza a víz és fűtés díját.
Főbb jellemzők:
• Alapterület: 101 m²
• Elosztás: 3 szoba
• 2 fürdőszoba (kád + zuhany)
• 2025-ben teljeskörű felújítás
• Új műanyag nyílászárók, redőnyök
• 5. emelet, liftes ház
• Csendes, tágas, azonnal költözhető
Irányár: 190.000.000 Ft
Ha szeretnél egy frissen felújított, elegáns és kiváló lokációjú lakást Budapest belvárosában, ne hagyd ki ezt a lehetőséget! Kiváló befektetés és kényelmes otthon egyben.
Apolzan Magdalena

Apolzan Magdalena
Inserent

Rufen Sie uns mit Vertrauen

+36-70-908- Zeig!

Andere eigene Anzeigen

Immobilienbüro
GDN Immobilien Netzwerk - SZIGET
+36 24 656 320