Flat (brick) For sale Budapest IV. district - Deák Ferenc utca

For sale Budapest IV. kerület Flat (brick)
84 m2Space 3 Rooms
79 900 000 HUF Price
392155ID number
Other data

Garden view View

In good condition Condition

Brick Structure

14 m2 Balcony/terrace

Gas (circulating) Heating

Full comfort Comfort

At community areas Parking

Floor 1

Top floor

No exist Elevator

Good Public transport

No American kitchen

No exist Access to the garden

Attic estate

2010 Year of construction

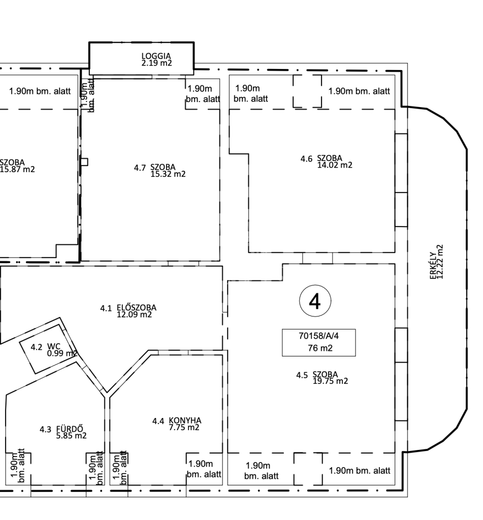
IV. kerületben, a Deák Ferenc utcában eladó egy 84 m2-es, ERKÉLYES (14 m2), 3 szobás, CSENDES, VILÁGOS, jó állapotú lakás.

A 2010-ben épült 5 lakásos társasház 1 emeletes.

A lakás főbb jellemzői:

- TEHERMENTES
- kitűnő beosztású
- 2 erkélyes
- zárt lépcsőház
- alacsony rezsi
- minden egyedileg mérhető
- ablakos konyhás

Fűtése: gáz cirkó

Közelben: Újpesti piac, bevásárlási lehetőségek, óvoda, iskola, bankok, posta, gyógyszertár stb.

Közlekedés: kiváló (Újpest központ 10 perc sétára)

További részletekért, hívjon bizalommal!
K.M.
Kémeri-Szekernyés Tímea

Kémeri-Szekernyés Tímea
Advertiser

Call me with confidence

+36-30-248-Show!

Other listings

Real Estate Agency
GDN Real Estate Network - SZIGET
+36 24 656 320