Flat (brick) For sale Budapest V. district - Stollár Béla utca

For sale Budapest V. kerület Flat (brick)
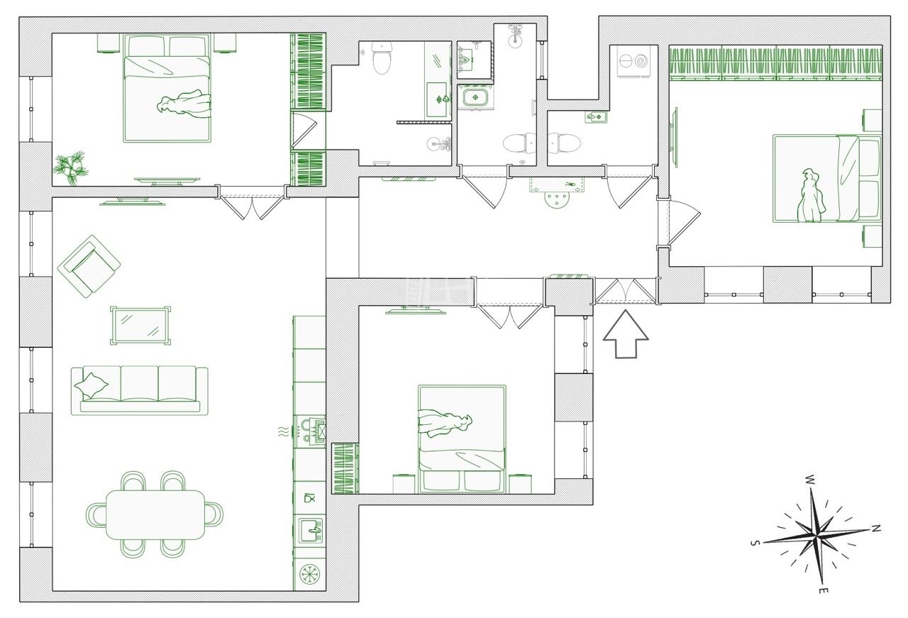
102 m2Space 4 Rooms
259 000 000 HUF Price
386414ID number
Other data

Street View

Reconditioned Condition

Brick Structure

Gas (circulating) Heating

Luxury Comfort

At community areas Parking

Floor 1

Exist Elevator

Excellent Public transport

American kitchen

No exist Access to the garden

1950 Year of construction

South Orientation

Eladó luxuslakás a Parlament szomszédságában, Budapest belvárosában!

A Stollár Béla utcában, elegáns polgári ház 1. emeletén kínálunk megvételre egy 279 millió forintos, teljes körűen felújított, prémium minőségű lakást.

A 3,8 méteres belmagasság, a déli fekvés és a csendes utca kombinációja garantálja a világos, tágas tereket és a nyugodt otthoni hangulatot.

Kialakítás:
• impozáns nappali konyhával és étkezővel (37 m²)
• mester hálószoba saját fürdőszobával és gardróbbal
• további két hálószoba / iroda / gyerekszoba
• második fürdőszoba és külön vendégmosdó
• mosókonyha, tágas előszoba

A lakás minden részlete új: modern gépészet, energiahatékony fűtés és hűtés, tölgyfa parketta, designbútorok és minőségi háztartási gépek.

Elhelyezkedés:
A Parlament, a Bazilika, az Opera, a Margitsziget, bevásárló- és üzleti központok, valamint több neves iskola és egyetem mind sétatávolságban találhatók. A metró mindössze 3 perc alatt elérhető.

Ez az ingatlan ideális választás azok számára, akik a belváros szívében keresnek exkluzív, azonnal költözhető otthont – vagy akár értékálló befektetést.

Ár: 279 millió Ft
Gergicsné Veér Annamária

Gergicsné Veér Annamária
Advertiser

Call me with confidence

+36-20-396-Show!

Other listings

Real Estate Agency
GDN Real Estate Network - SZIGET
+36 24 656 320