Flat (brick) For sale Budapest VI. district - Vörösmarty utca

For sale Budapest VI. kerület Flat (brick)
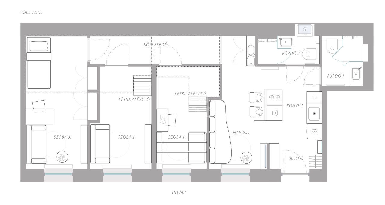
61 m2Space 3 + 1 Rooms
89 900 000 HUF Price
391578ID number
Other data

Courtyard View

In good condition Condition

Brick Structure

Gas (circulating) Heating

Double comfort Comfort

At community areas Parking

Floor Ground floor

Exist Elevator

Good Public transport

American kitchen

No exist Access to the garden

1900 Year of construction

Common cost 19 250 HUF

Eladó fiatalosan felújított lakás a VI. kerületben, a Vörösmarty utcában

A 2017-ben teljeskörűen, lakberendező közreműködésével felújított, modern, 61 m²-es lakás amerikai konyhás nappalival rendelkezik, mellette három különnyíló, jól használható galériázott hálószoba található (11, 12 és 15 m²), továbbá két fürdőszoba (mindkettő WC-vel, mosdókagylóval és zuhanyzóval felszerelt, az egyikben mosó-szárítógép is van).

A lakás ablakai a csendes belső udvarra néznek, ahol biciklik tárolása is biztonságosan megoldható. Az ingatlan teljesen gépesített és berendezett: beépített sütő, indukciós főzőlap, mosogatógép, hűtő fagyasztóval, nagy TV több száz csatornával, üvegszálas nagy sebességű internet.

Elhelyezkedés: kiváló közlekedés, percekre az Oktogon, a Nyugati tér, a Nyugati pályaudvar, a 4-6-os villamos, valamint az 1., 2., 3. metró. Bevásárlás, szórakozás, éttermek és kávézók gyalog elérhetők: Westend, Andrássy út és számos hangulatos hely a közelben.

Ideális választás stílusos belvárosi otthonnak vagy jövedelmező befektetésnek: jelenleg szobánként 160.000 Ft-ért kiadva.
Jöjjön el, nézze meg és tegyen ajánlatot!

INGYENES hitel tanácsadás!
BANKFÜGGETLEN hitelcentrumunk minden elérhető bank és hitelintézet ajánlatát versenyezteti az Ön kedvéért, ráadásul DÍJMENTESEN.

ID:391578
Gergicsné B. Enikő

Gergicsné B. Enikő
Advertiser

Call me with confidence

+36-30-941-Show!

Other listings

Real Estate Agency
GDN Real Estate Network - SZIGET
+36 24 656 320