Commercial - Commercial premises For sale Budapest VI. district - Podmaniczky utca

For sale Budapest VI. kerület Commercial - Commercial premises
331 m2Space 0 Rooms
199 900 000 HUF Price
392423ID number
Other data

Street View

In fair condition Condition

Brick Structure

Gas (circulating) Heating

At community areas Parking

Excellent Public transport

1930 Year of construction

Common cost 83 000 HUF

Southwest Orientation

Budapest egyik legforgalmasabb üzleti csomópontján, a Nyugati pályaudvar közvetlen közelében kínálunk megvételre egy 331 m² összterületű, sokoldalúan hasznosítható üzleti ingatlant.

Négyzetméterár: ~601.000 Ft/m², amely a környék adottságaihoz és a kiemelkedő utcai megjelenéshez képest kifejezetten kedvező befektetési lehetőség.

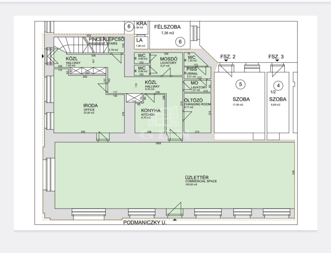
Területek megoszlása:

Földszint: 175 m²
Belső félemelet (galéria/tárgyaló): 41 m²
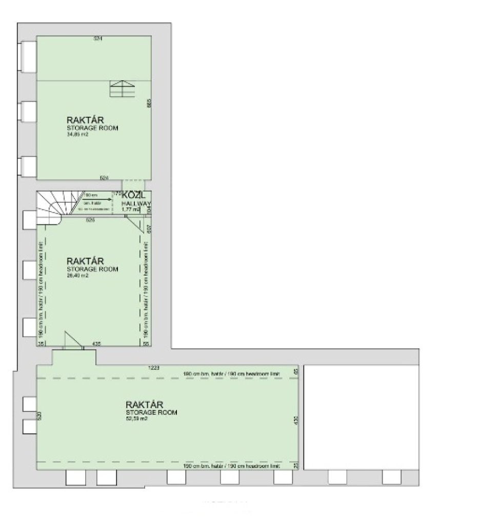
Alagsor (raktár, irattár): 115 m²
Összesen: 331 m²


Főbb jellemzők:

- Sarki elhelyezkedés, kiváló utcai jelenlét
- Két külön utcai bejárat
- Hét nagyméretű kirakati portál
- Több funkcióra bontható belső tér
- Nagy belmagasság, kiváló térérzet

Alkalmas lehet többek között:
üzlethelyiségnek, irodának, bankfióknak, cégképviseletnek, edzőteremnek, hostelnek, kulturális vagy tánctérnek, bemutatóteremnek.

Területek:

Földszint: 175 m² - reprezentatív, utcai kapcsolattal

Belső félemelet: 41 m² - téglaépítésű, teljes értékű galéria vagy tárgyaló, 2,2 m belmagassággal, akár önálló megközelítéssel

Alagsor: 115 m² - raktár- és irattárblokkok, utcai árucsúszdával

Műszaki és egyéb információk:

- Részben klimatizált
- Kiépített kamera- és riasztórendszer
- Saját vízóra
- Elektromos áram: 3 fázis, 3×32 A
- Közös költség: 83.000 Ft/hó
- A homlokzat 7–8 éve teljes felújításon esett át
- Rendezett társasház, stabil lakóközösség

Befektetők figyelmébe:
A környéken tervezett, állami szintű városfejlesztések – különösen a Nyugati pályaudvar átalakítása – jelentős hosszú távú értéknövekedési potenciált biztosítanak.

Az ingatlan az Andrássy út világörökségi helyszín védőövezetében helyezkedik el, Budapest műemlék jelentőségű területén található, tömegközlekedéssel is kiválóan megközelíthető.

Tulajdonjog és vásárlás:

Az ingatlan cég tulajdonában áll, megvásárolható céggel vagy cég nélkül is, az értékesítés ÁFA-mentes.

Megtekintés:
Rugalmasan, előzetes egyeztetést követően, akár hétvégén is.
Gergicsné B. Enikő

Gergicsné B. Enikő
Advertiser

Call me with confidence

+36-30-941-Show!

Other listings

Real Estate Agency
GDN Real Estate Network - SZIGET
+36 24 656 320

Call me back