Flat (brick) For sale Budapest VIII. district - Német utca

For sale Budapest VIII. kerület Flat (brick)
40 m2Space 3 Rooms
63 000 000 HUF Price
389622ID number
Other data

Garden view View

Novel Condition

Brick Structure

Other Heating

Full comfort Comfort

At community areas Parking

Floor Ground floor

No exist Elevator

Excellent Public transport

American kitchen

No exist Access to the garden

1871 Year of construction

Common cost 25 000 HUF

Eladó két külön bejáratú, prémium minőségű, belső kétszintes lakás a Horváth Mihály tér mellett!

Budapest VIII. kerületében, a Német utcában, a Horváth Mihály tér közvetlen közelében, egy hangulatos, szép állapotú társasház földszintjén eladó két külön bejáratú, ügyvédi használati megosztással elválasztott, teljeskörűen felújított, bútorozott és gépesített lakás

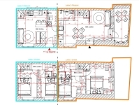
Mindkét lakás belső kétszintes, duplakomfortos, és kiváló elosztású:

A földszinten: nappali + konyha + fürdő + WC

Az emeleten: két, egymástól külön zárható hálószoba, valamint további fürdő és WC

Az alsó szinten 220 cm, a felsőn 205 cm a belmagasság.
A lakások külön villany- és vízórával rendelkeznek, fűtésüket BVF elektromos padlófűtés, hűtésüket pedig inverteres klímák (lent és fent) biztosítják.

A vételár tartalmazza a teljes bútorzatot és gépesítést, így az ingatlanok azonnal költözhetők vagy kiadhatók!


"A " LAKÁS

Hasznos alapterület: 40 m²

Alsó szint: 20,3 m²

Felső szint: 19,7 m²

Elrendezés:

Földszint: nappali + konyha + fürdő + WC

Emelet: 2 külön hálószoba + további fürdő és WC

Teljesen felújított, bútorozott, gépesített

Külön mérőórák, BVF padlófűtés, inverteres klíma

Ár: 63.000.000 Ft


"B" LAKÁS

Hasznos alapterület: 51 m²

Alsó szint: 26 m²

Felső szint: 25 m²

Különlegesség: egy 11 m²-es beépített télikert, amely a zöld udvarra néz – igazi ritkaság a belvárosban!
(A télikert nem része az alapterületnek, ezzel együtt kb. 62 m².)

Elrendezés:

Földszint: nappali + konyha + fürdő + WC

Emelet: 2 külön hálószoba + további fürdő és WC

Teljesen bútorozott, gépesített, prémium kivitel

Ár: 73.000.000 Ft




Miért különleges ez az ajánlat?

Két külön bejáratú, külön mérőórás lakás – ideális befektetésre vagy kétgenerációs otthonnak

Központi elhelyezkedés, mégis csendes, zöld udvarra néző környezet

Modern, energiatakarékos megoldások (elektromos padlófűtés, inverteres klímák)

Teljesen bútorozott és gépesített – csak a bőröndöt kell hozni

Kiváló közlekedés: pár perc sétára a Blaha Lujza tér, Rákóczi tér, 4-6-os villamos, M2 és M4 metró
Csík Zsolt

Csík Zsolt
Advertiser

Call me with confidence

+36-30-641-Show!

Other listings

Real Estate Agency
GDN Real Estate Network - SZIGET
+36 24 656 320