Semidetached house For sale Budapest X. district - Zsombék utca

For sale Budapest X. kerület Semidetached house
171 m2Space 5 Rooms
149 500 000 HUF Price
392852ID number
Other data

526 m2 Building lot

Garden view View

In good condition Condition

Brick Structure

47 m2 Balcony/terrace

Gas (HERA) Heating

Double comfort Comfort

Own garage Parking

Good Public transport

No American kitchen

Exist Access to the garden

1982 Year of construction

Megvételre kínálunk, Budapest X. kerületében, Újhegy csendes kertvárosi részében, egy jó elosztású 3 szintes ikerházat.

Az ingatlan a 80-as évek elején, téglából épült, hasznos alapterülete 171 nm, mely tökéletes életteret biztosít, egy nagyobb család, vagy akár két generáció számára is.

Az ingatlanhoz 526nm, saját telekrész tartozik.

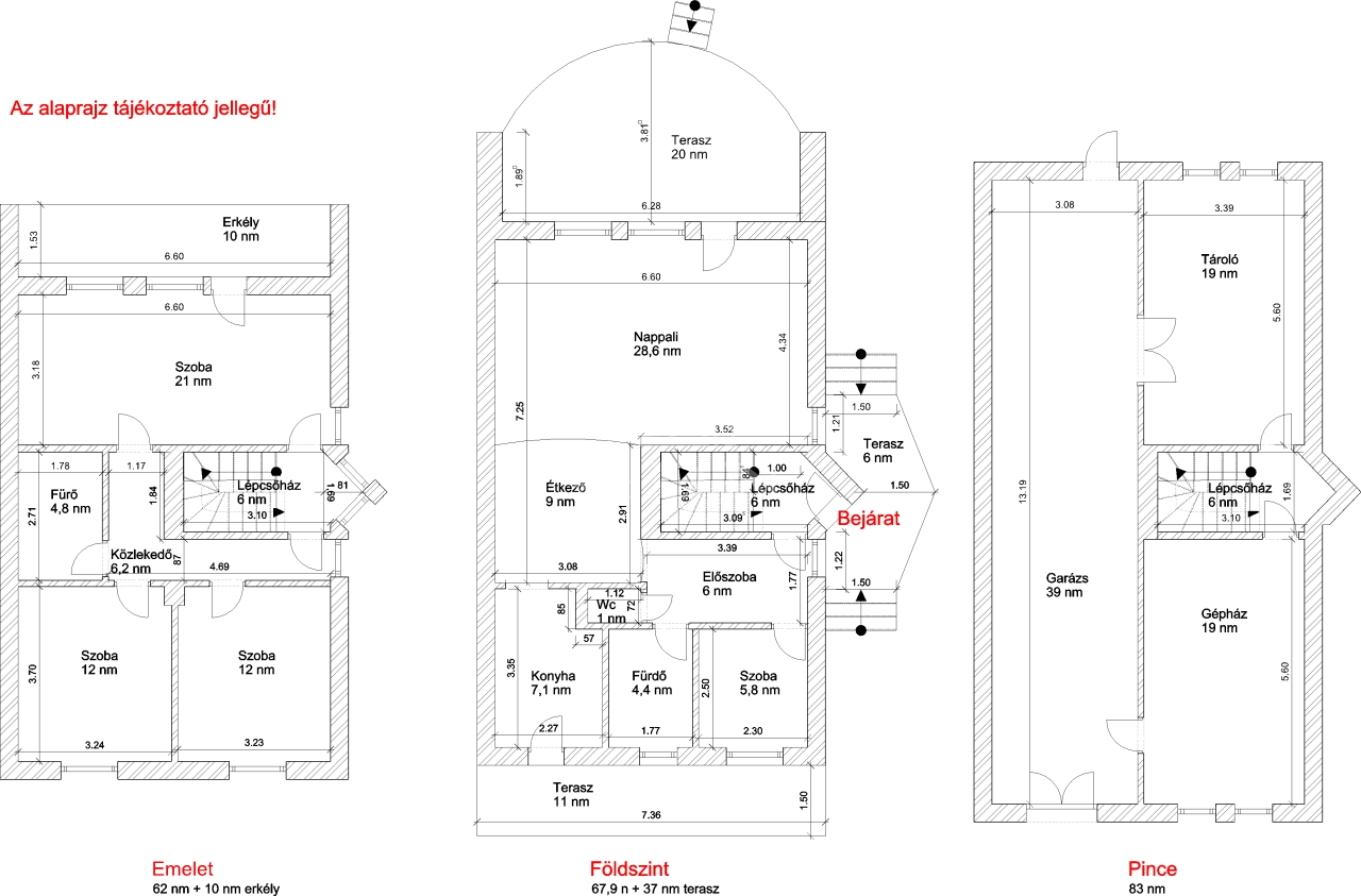
Az ingatlan beosztása:
Földszint -
-előszoba: 6nm,
-lépcsőház: 6nm,
-szoba: 5,8nm,
-fürdő: 4,4nm,
-wc: 1nm,
-konyha: 7,1nm,
-étkező: 9nm,
-nappali: 28,6nm
--------------------------
67,9 nm.
+ fedett terasz: 20 nm,
+ terasz 6 nm,
+ terasz 11 nm.

Emelet:
-lépcsőház: 6nm,
-közlekedő: 6,2nm,
-fürdő: 4,8nm,
-szoba: 12nm,
-szoba: 12nm,
-szoba: 21nm,
-----------------------
62 nm.
+erkély: 10nm,

Pince:
-garázs: 39nm,
-gépház: 19nm,
-tároló: 19nm,
-lépcsőház: 6nm,
---------------------
83 nm.

2015-ben egy nagyobb felújítás történt:
-festés,
-a fenti erkélyek beépítése,
-nyílászárók cseréje, (műanyag, redőnyös, szúnyoghálós)
-a ház külső szigetelést, színezést kapott,
-gázkazán, villanybojler cseréje,
-konyha felújítása.

A hátsó terasz, filagória, tároló, kerítés építése, 8 évvel ezelőtt.
A tárolóban, kézmosó+wc, fali csap került kialakításra.

Az ingatlanban, 3 db hűtő-fűtő klíma működik, melyeket 5 éven belül szereltek fel.

Riasztó rendszer van beépítve.

A fűtés gázkazánról működik, radiátoros hőleadással.

A beltéri ajtók, eredeti fából készültek.

Az ingatlan, saját mérőórákkal rendelkezik.

Az udvar parkosított, amiben 2db 35 éves diófa, és 1db 20 éves kajszi barack fa ad nyáron hűsítő árnyékot, és meghatározza a kert hangulatát.

Közelben iskolák, óvodák, bevásárlóközpont, minden egy helyen!
Kimondottan jó tömegközlekedés!

Amivel segítjük az Ön ingatlanvásárlását:
- ingyenes hitelügyintézés,
- jogi háttér,
- földhivatali ügyintézés,
- energetikai tanúsítvány,
- a vevő számára az ingatlanközvetítés ingyenes.

Irodánk 30 éves szakmai tapasztalattal áll ügyfelei rendelkezésére!

Várom szíves megkeresését!
Csík Zsolt

Csík Zsolt
Advertiser

Call me with confidence

+36-30-641-Show!

Other listings

Real Estate Agency
GDN Real Estate Network - SZIGET
+36 24 656 320