Office For sale Budapest XIII. district - Váci út

For sale Budapest XIII. kerület Office
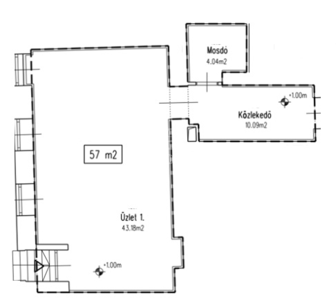
57 m2Space 2 Rooms
116 849 990 HUF Price
382641ID number
Other data

Street View

Newly built Condition

Brick Structure

Electric Heating

At community areas Parking

Floor Ground floor

Exist Elevator

Excellent Public transport

2023 Year of construction

West Orientation

BUDAPEST XIII. kerületben, a DUNA PLÁZA közelében, 51 lakásos, liftes, téglaépítésű társasházban, utcai bejáratú, földszinten elhelyezkedő, 57 m2 alapterületű üzlethelyiség ELADÓ.
A 2 emeletes 51 lakásos, liftes, téglaépítésű társasház a századfordulón épült, melynek teljes átépítése, felújítása történt és kapta meg jelenlegi arculatát. A fűtésről, meleg víz ellátásról elektromos cirkó gondoskodik, radiátor hő leadóval és hűtő-fűtő klíma is beszerelésre került. Az épület energetikai besorolása „B”.

Átadás: 2025. II. negyedév

Az épület biztonságáról 24 órás portaszolgálat gondoskodik. Gépjárművek parkolására a ház előtti kialakított parkolóban van lehetőség.
Az üzlethelyiséget tekintve, a lakók érdekeit szem előtt tartva, a tervek szerint nem vendéglátó egység létesítése a cél, amely esetleg a lakók nyugalmát és biztonságát zavarná.

A folyamatosan fejlődő városrészben a lokáció és a közlekedés kiváló. Közelben a Duna Pláza, Tesco bevásárlóközpont.
Hívjon bizalommal, ha az ajánlat felkeltette érdeklődését.
Bajnóczi Beáta
GDN Region Ingatlan
Kémeri-Szekernyés Tímea

Kémeri-Szekernyés Tímea
Advertiser

Call me with confidence

+36-30-248-Show!

Other listings

Real Estate Agency
GDN Real Estate Network - SZIGET
+36 24 656 320

Call me back