Flat (brick) For sale Budapest XIII. district - Hegedűs Gyula utca

For sale Budapest XIII. kerület Flat (brick)
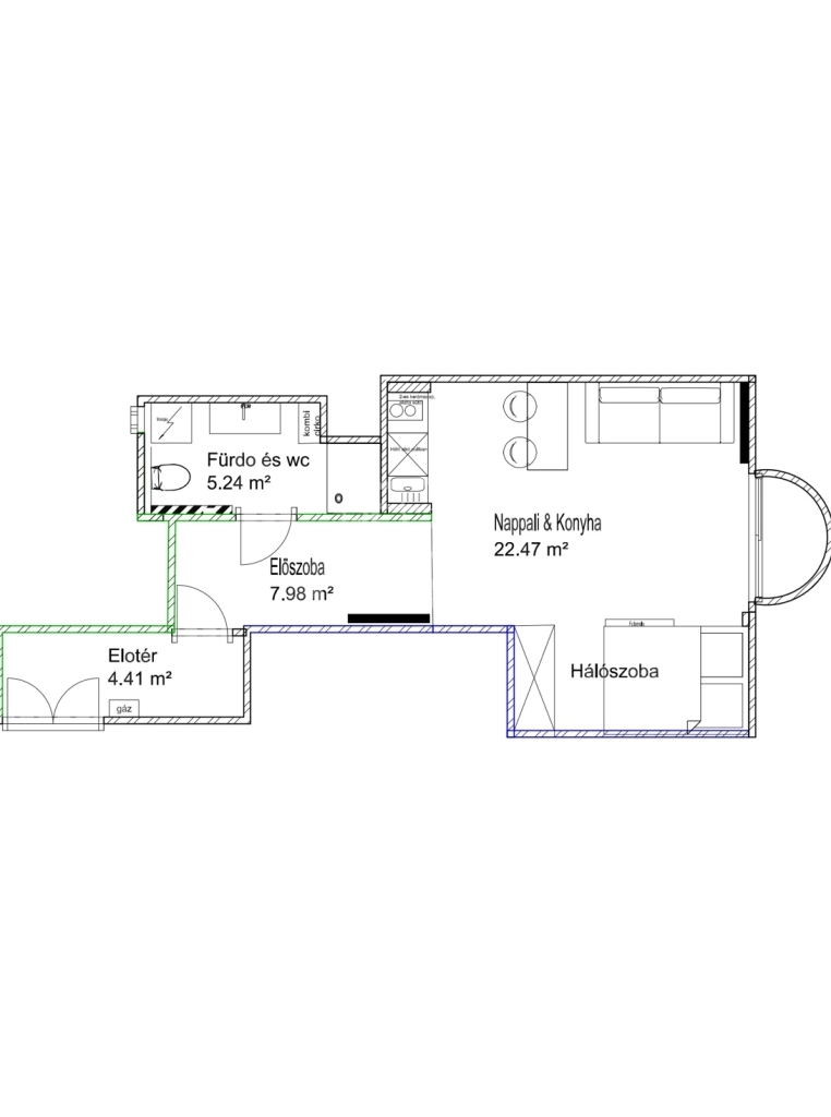
36 m2Space 1 Rooms
71 900 000 HUF Price
386154ID number
Other data

Street View

Reconditioned Condition

Brick Structure

3 m2 Balcony/terrace

Gas (circulating) Heating

Luxury Comfort

At community areas Parking

Floor 2

Exist Elevator

Excellent Public transport

American kitchen

No exist Access to the garden

1964 Year of construction

Southwest Orientation

RITKASÁG ÚJLIPÓTVÁROSBAN – ERKÉLYES, NAPOS, AZONNAL KÖLTÖZHETŐ!

Eladó a XIII. kerület egyik legkedveltebb részén, a Hegedűs Gyula utcában egy 2. emeleti, utcára néző, erkélyes, teljeskörűen és magas minőségben felújított 36 nm-es lakás (+3 nm erkély), liftes, rendezett társasházban.

Főbb jellemzők:
• Világos, napfényes elrendezés, nappali + hálórész
• Lakberendező által tervezett enteriőr, egyedi bútorzat
• Modern épített zuhanyzós fürdő, ízléses burkolatok
• Gépesített, egyedi konyha
• Klíma, modern világítás
• Jogilag rendezett, használati megosztással, almérőkkel

Lokáció:
• Szent István park, Duna-part, Margitsziget pár perc séta
• Kiváló közlekedés, csendes, zöld belső kert

Kiváló befektetés rövid vagy hosszú távú kiadásra, de saját otthonnak is tökéletes.

Gyorsan költözhető!
Megtekintés előre egyeztetett időpontban lehetséges.

Ne maradjon le – jöjjön el, nézze meg, tegyen ajánlatot!
Gergicsné B. Enikő

Gergicsné B. Enikő
Advertiser

Call me with confidence

+36-30-941-Show!

Other listings

Real Estate Agency
GDN Real Estate Network - SZIGET
+36 24 656 320