Flat (brick) For sale Budapest XIII. district - Országbíró utca

For sale Budapest XIII. kerület Flat (brick)
41 m2Space 2 Rooms
69 700 000 HUF Price
392821ID number
Other data

866 m2 Building lot

Street View

Newly built Condition

Brick Structure

2 m2 Balcony/terrace

Heat pump Heating

Full comfort Comfort

At community areas Parking

Floor 2

Top floor

No exist Elevator

Good Public transport

American kitchen

No exist Access to the garden

Attic estate

2027 Year of construction

Southeast Orientation

ÚJ ÉPÍTÉSŰ INGATLANOK 2027 KÖLTÖZÉSSEL!

Angyalföld:

Angyalföld Budapest XIII. kerületének legnagyobb városrésze, amely az egykori ipari zónából mára modern lakó- és irodanegyeddé alakult át. Hagyományos ipari zónák helyén ma már irodaházak, kereskedelmi egységek és a Duna-parton luxuslakások találhatók.

Az épület tettérbeépítése során törekedtünk olyan lakások kialakítására, ami a mai lakásigényeknek felel
meg, mint amerikai konyhás nappali és külön hálószoba. Változatos lakásokat alakítottunk ki úgy
méretükben, mint elrendezésükben.

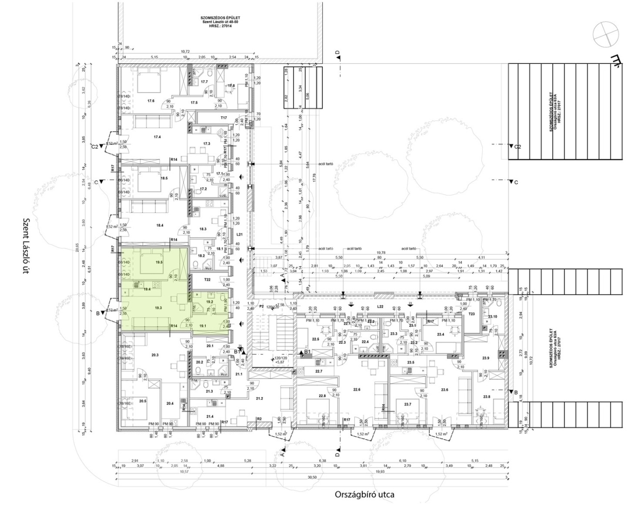
19. lakás.
Előtér: 5.14 nm.
Fürdőszoba: 4.77 nm.
Nappali étkező: 17.52 nm.
Konyha:4.48
Hálószoba: 12.91 nm.
Erkély: 1.52 nm.

Fizetés: készültségi fokozathoz kötött fizetési ütemezés.

A további kérdésekkel és a megtekintéssel kapcsolatban, kérem keressen a megadott mobil számon.
Gergicsné Veér Annamária

Gergicsné Veér Annamária
Advertiser

Call me with confidence

+36-20-396-Show!

Other listings

Real Estate Agency
GDN Real Estate Network - SZIGET
+36 24 656 320