Family House For sale Budapest XVIII. district - Alacskai út

For sale Budapest XVIII. kerület Family House
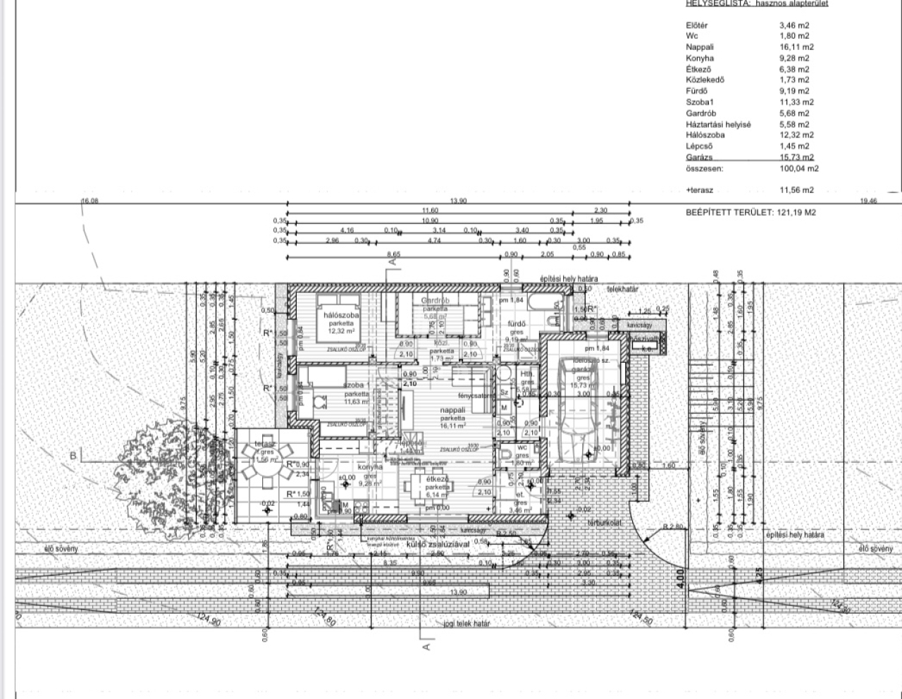
141 m2Space 4 Rooms
145 000 000 HUF Price
384238ID number
Other data

400 m2 Building lot

Courtyard View

Newly built Condition

Brick Structure

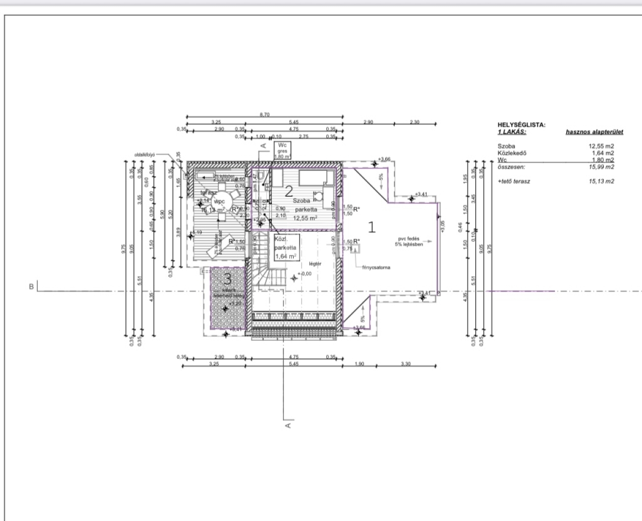
26 m2 Balcony/terrace

Other Heating

Double comfort Comfort

Own garage Parking

Excellent Public transport

American kitchen

Exist Access to the garden

2025 Year of construction

Almáskert Villa Park – Új építésű luxus családi házak a XVIII. kerület egyik legkedveltebb részén!

Fedezze fel Budapest egyik legnyugodtabb, családbarát övezetét az Almáskertben, ahol három különálló, új építésű, modern családi ház várja leendő tulajdonosait!

Mit kínálunk?
✅ Önálló, belső kétszintes házak (földszint + emelet)
✅ Nappali + 3 hálószoba
✅ 3 mellékhelyiség, kádas-zuhanyzós, dupla mosdós fürdőszoba
✅ Tágas gardrób, tetőterasz, saját parkosított kert
✅ Fűtött garázs elektromos, szekcionált kapuval

Minőség kompromisszumok nélkül!
Az otthonok a legkorszerűbb anyagokból készülnek:
25 cm-es extra hőszigetelő Ytong falazat
10 cm grafitos dryvit szigetelés
3 rétegű antracit nyílászárók, elektromos alumínium redőnyök
20 cm födémszigetelés, időtálló cserépfedés

Energiahatékony és jövőálló otthon:
Hőszivattyús fűtés és hűtés (H-tarifa)
Fan-coil és padlófűtés minden helyiségben
Előkészített napelemrendszer és elektromos autótöltő

Rugalmas kialakítás:
A burkolatok, szaniterek, beltéri ajtók egyedi igény szerint választhatók
A fürdőszobákat bútorozva adjuk át
Egyedi módosítások még kivitelezhetők az építkezés előrehaladásától függően

Műszaki átadás: 2025 nyarán
Ár: 145.000.000 Ft – kulcsrakész állapotban!

Babaváró, CSOK és kamattámogatott hitel igénybe vehető
Ügyvédi költséget az építtető/beruházó átvállalja
Építkezés látogatható előre egyeztetett időpontban

Ne maradjon le róla! Hívjon bizalommal a hét bármely napján, és ismerje meg álmai otthonát személyesen!
Köő Zsolt

Köő Zsolt
Advertiser

Call me with confidence

+36-20-234-Show!

Other listings

Real Estate Agency
GDN Real Estate Network - SZIGET
+36 24 656 320