Family House For sale Budapest XVIII. district - Kerékvágás út

For sale Budapest XVIII. kerület Family House
167 m2Space 5 Rooms
159 900 000 HUF Price
387746ID number
Other data

660 m2 Building lot

Garden view View

Newly built Condition

Brick Structure

Heat pump Heating

Full comfort Comfort

Own garage Parking

Good Public transport

American kitchen

Exist Access to the garden

2026 Year of construction

Budapest XVIII. kerület, Almáskert – Új építésű, földszintes családi ház eladó!

Csendes mellékutcában, széles telekre tervezett családi házak közül most a hátsó, önálló ház eladó!
A telek kialakítása különleges: bal oldalán egy saját, leválasztott úton (4.5x70m) közelíthető meg, amelyről elöl egy ikerház két lakása nyílik, az út végén pedig a teljesen különálló, önálló családi ház található, nagyobb kerttel és még több intimitással.

(Még választhat: az első vagy a középső ikerfél, illetve a különálló ház is rendelkezésre áll!)

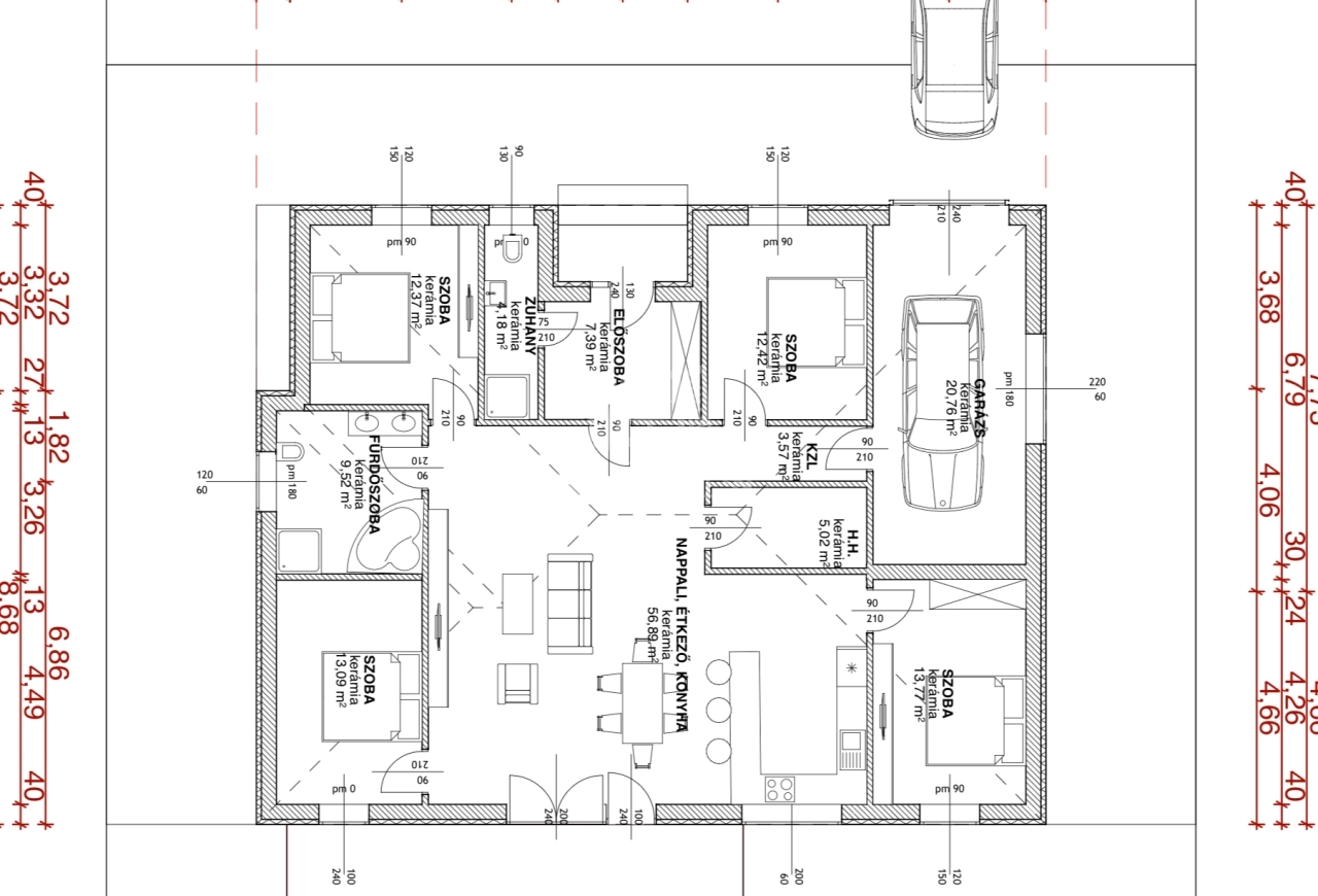
Az ingatlan 167m² hasznos alapterületű, modern, földszintes kialakítással: amerikai konyhás nappali, 4 hálószoba, 2 fürdőszoba, háztartási helyiség, terasz és saját, 660 m²-es kert tartozik hozzá.

Helyiségek:
• Szoba: 12,37 m²
• Szoba: 13,09 m²
• Szoba: 12,42 m²
• Szoba: 13,77 m²
• Konyha–étkező–nappali: 57 m²
• Kádas fürdő: 9,52 m²
• Zuhanyzós fürdő: 4,2 m²
• Háztartási helyiség: 5 m²
• Előszoba: 7,39 m²
• Garázs: 20,76 m²

Műszaki tartalom (részlet):
• 30-as Leier falazat, 10 cm grafitos szigeteléssel, lábazat 15 cm XPS szigeteléssel
• Válaszfalak: 10 cm-es Leier tégla
• Födém: 20 cm kőzetgyapot szigeteléssel
• Hőszivattyú + padlófűtés az egész házban
• 3 rétegű külső nyílászárók
• Elektromos kapu, napelem-előkészítés, komplett kamerarendszer riasztóval

Extrák:
• Választható: nappaliba 3,5 kW klíma, vagy kiállás minden szobába
• Melegburkolat: 5.000 Ft/m² (filc alátéttel, szegéllyel)
• Hidegburkolat: 5.000 Ft/m² (fugával, váltókkal)
• Beltéri ajtók, szaniterek választhatók készültségi foktól függően
• Plusz extrák és egyedi igények egyeztetés alapján kérhetők

A kivitelezőről:
Megbízható, tapasztalt cég, számos referenciamunkával a környéken, amelyek személyesen is megtekinthetők. A minőségi kivitelezés és a korrekt együttműködés garantált.

Jogilag: osztatlan közös, ügyvédi megosztással.
Támogatások: az ingatlan az összes jelenleg futó támogatásra jogosult.
Finanszírozás: 30% önerővel lefoglalható.
Átadás: várhatóan 2026. III. negyedév.

Ügyvédi háttér és független hitelszakértő biztosított!
Hívjon bizalommal a hét bármelyik napján további információért!
Apolzan Magdalena

Apolzan Magdalena
Advertiser

Call me with confidence

+36-70-908-Show!

Other listings

Real Estate Agency
GDN Real Estate Network - SZIGET
+36 24 656 320