Ikerház Eladó Áporka - EGYSZINTES, ÚJÉPÍTÉSŰ IKERHÁZ!

Eladó Áporka Ikerház
95 m2Alapterület 5 Szoba
79 500 000 Ft Ár
Hitelkalkuláció folyamatban... Loading
392643Azonosító
További adatok

440 m2 Telek

Kertre néző Kilátás

Új Állapot

Ytong Szerkezet

12 m2 Erkély/terasz

Hőszivattyú Fűtés

Összkomfort Komfort

Saját beálló Parkolás

Közepes Tömegközlekedés

Amerikai konyhás

Van Kertkapcsolat

2025 Építés éve

Délkeleti Tájolás

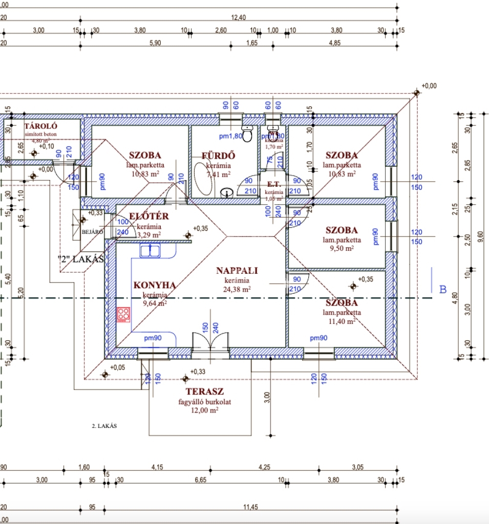
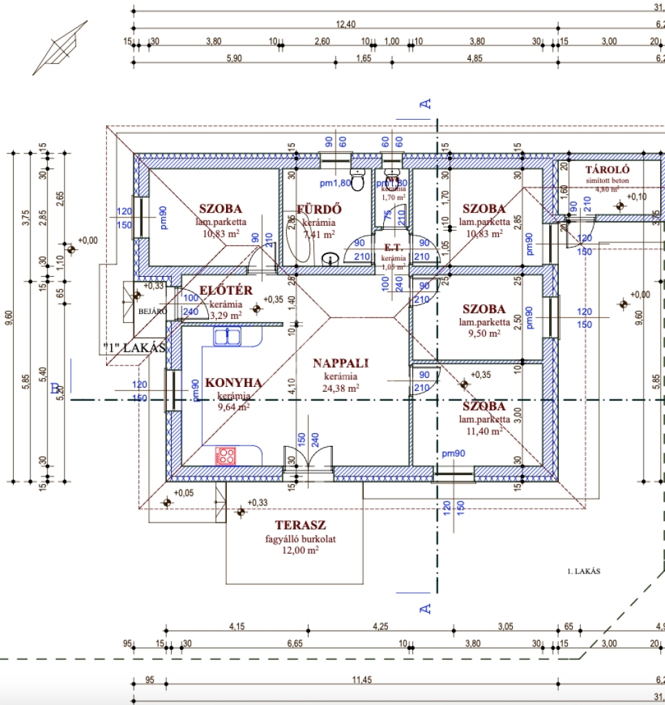
ÁPORKÁN, CSENDES KERTVÁROSI környezetében, nettó 95 m2-es, nappali + 4 szobás, AUTÓBEÁLLÓVAL, TÁROLÓVAL ÉRINTKEZŐ, MODERN, EGYSZINTES, ÚJÉPÍTÉSŰ, IKERHÁZAT kínálunk eladásra!

HELYISÉGEI:
-Előtér: 3.29m2
-Közlekedő: 1.05m2
-Szoba: 10.83m2
-Szoba: 9.50m2
-Szoba: 11.40m2
-Fürdőszoba: 7.41m2
-WC: 1,7m2
-Szoba: 10.83m2
-Nappali: 24.38m2
-Konyha: 9.64m2
-Tároló: 4.80m2
-Terasz: 12m2

Az ingatlanhoz saját, kizárólagos használatú, lekerített TELEKRÉSZEK tartoznak.
Autóbeálló tartozik az ingatlanhoz, a kialakítását a vételár tartalmazza.

Külső falazat: Ytong 30 cm-es, 12 cm-es Dryvit hőszigeteléssel, 20 cm-es cellulóz alapú fújt födém szigeteléssel.

Műanyag nyílászárok: 5 légkamrás fokozott hőszigetelésű mindkét oldalt színezett barna (sötét dió) műanyagból, thermoplan tripla 0,7k üvegezéssel.
Bejárati ajtó szabványnak megfelelő 5 ponton záródó biztonsági ajtó, mindkét oldalt sötét dió színben.

A fűtést HŐSZIVATTYÚ biztosítja, padlófűtéssel (igény szerint radiátorokkal is).

Nagyon IGÉNYES KIVITELEZÉS, minőségi anyagok felhasználásával épül ( részletes Műszaki leírással és további anyagokkal rendelkezem.)

Külön mérőórák, szeparált telekrészek, különböző utcai bejáratok!
Mindkét házhoz felszíni autóbeálló hely biztosított.

MÉRETEK, TÁJOLÁS, ELRENDEZÉS, AZ ALAPRAJZOKON.
( Belső átalakítás-kialakítás a Vevő igényei alapján megoldható )

TERVEZETT ÁTADÁS: 2026. második negyedév!
Megtekinthető elkészült REFERENCIA munkák.

Az ikerház CSOK PLUSZ, FALUSI CSOK valamint 3% START hitelre és egyéb kedvező hitelekre alkalmas.
(Szükség esetén ingyenes hitelügyintézéssel)

Az ingatlan tehermentes, könnyen megközelíthető!

Áporka egy Pest megyei község a Csepeli-síkon, Budapesttől délre, az 51-es főút közelében, Kiskunlacháza szomszédságában. A Ráckevei-Soroksári Duna-ág (RSD) partján fekvő település kedvelt horgász- és üdülőhely, amely könnyen elérhető a fővárosból.
A nyugodt, családias község kiváló lehetőségeket kínál a vízi turizmus és a pihenés kedvelőinek.
Főbb jellemzők:
Fekvés: Budapesttől kb. 30-40 perc autóútra, a Ráckevei-Soroksári Duna bal partján.

Áporka ideális célpont azoknak, akik a főváros közelségében keresnek vízparti kikapcsolódást.

Az ingatlan megtekintése előre egyeztetett időpontban lehetséges, akár hétvégén is.
Bővebb információkkal kapcsolatban várom jelentkezését, keressen bizalommal a hét minden napján!
Kémeri-Szekernyés Tímea

Kémeri-Szekernyés Tímea

Hívjon bizalommal

+36-30-248-Mutasd!

További hirdetéseim

Ingatlaniroda
GDN Ingatlanhálózat - SZIGET
+36 24 656 320

Visszahívást kérek

Keressen bennünket