Családi ház Eladó Balatonakarattya - Árpád utca

Eladó Balatonakarattya Családi ház
101 m2Alapterület 4 Szoba
247 000 000 Ft Ár
Hitelkalkuláció folyamatban... Loading
387815Azonosító
További adatok

1466 m2 Telek

Kertre néző Kilátás

Új Állapot

Tégla Szerkezet

36 m2 Erkély/terasz

Egyéb Fűtés

Luxus Komfort

Saját beálló Parkolás

Tömegközlekedés

Amerikai konyhás

Van Kertkapcsolat

2025 Építés éve

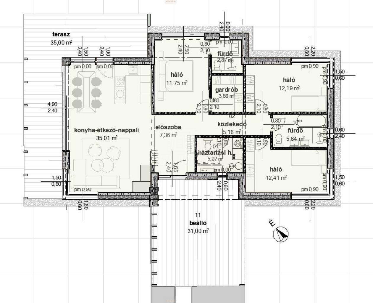
Balatonakarattyán eladásra kínálunk egy földszintes, 101 m2-es "okosház" tervezésű lakóházat 36 m2-es terasszal, 2026. év átadással!

Az ingatlan tulajdonságai:
- A modern stílusú épület amerikai konyhás nappali, 3 szoba, 2 fürdőszoba, közlekedő, gardrób, valamint háztartási-gépészet helyiségekből áll, melyhez autóbeálló és terasz kapcsolódik.
-A tágas terasz, 36 m2-es.

Az épület nemcsak állandó otthonnak, vagy nyaralónak alkalmas, de befektetésnek is remek lehetőség!

Ideális elhelyezkedés (vízpart közelsége, jó megközelíthetőség, családias környezet), ideális telekméret és kedvező ár.

A jelenleg kivitelezés előtt álló lakóház a szerkezetkész állapot elérése után már megvásárolható. Ebben az esetben a kivitelezés folytatása az új tulajdonos igényei, elképzelései figyelembevételével történne.

- A gépészet korszerűen lesz kivitelezve, okos-otthon technológiával.

Ezért is ajánlom befektetőknek, illetve családok részére, akik szeretik a Balatont!

Ne hagyja ki ezt a remek lehetőséget!

Amennyiben a veszprémi GDN Ingatlaniroda által kínált családi ház, vagy bármely, a kínálatunkban található ingatlan felkeltette érdeklődését, forduljon hozzám bizalommal!

Ingatlanirodánk díjmentes, banksemleges hitelügyintézéssel, illetve ügyvédi tanácsadással is áll Ügyfeleink rendelkezésére!
Köő Zsolt

Köő Zsolt

Hívjon bizalommal

+36-20-234-Mutasd!

További hirdetéseim

Ingatlaniroda
GDN Ingatlanhálózat - SZIGET
+36 24 656 320

Visszahívást kérek

Keressen bennünket