Lakás (téglaépítésű) Eladó Budakeszi - Budakeszin kertkapcsolatos lakás!

Eladó Budakeszi Lakás (téglaépítésű)
113 m2Alapterület 3 Szoba
141 250 000 Ft Ár
Hitelkalkuláció folyamatban... Loading
385567Azonosító
További adatok

150 m2 Telek

Kertre néző Kilátás

Jó állapotú Állapot

Tégla Szerkezet

Gáz (cirkó) Fűtés

Dupla komfort Komfort

Garázs/beálló bérelhető Parkolás

Emelet 1

Nincs Lift

Közepes Tömegközlekedés

Nem Amerikai konyhás

Van Kertkapcsolat

2025 Építés éve

Közös költség 25 000 Ft

Közvetlenül a Budakeszi Vadaspark szomszédságában egyedi természetközeli adottságokkal rendelkező családi lakóparkban kínálunk lakásokat eladásra 66 m2; 95 m2; 113 m2 alapterülettel.

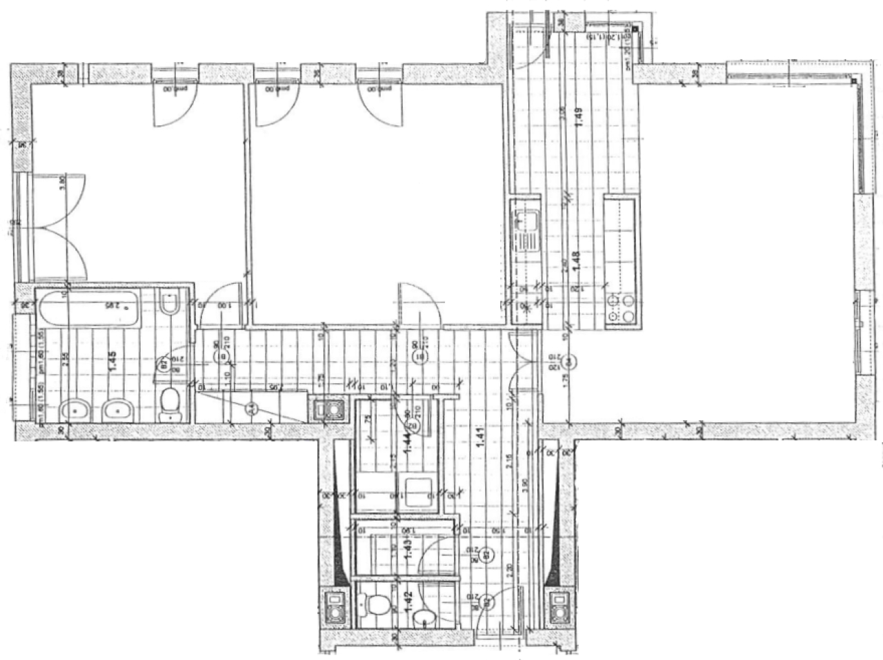
A lakópark 5 lakásos társasház első emeletén - földszintjén található a 113 m2-es lakás, amelyhez 45 m2 terasz és saját 150 m2 kerthasználati terület tartozik.

Lakás elrendezése:
• Nappali 30 m2
• Konyha 5,88 m2, étkező 7,32 m2
• Hálószoba 22,31 m2
• Hálószoba 16,9 m2
• Fürdőszoba 7,65 m2
• Kamra 2,05 m2
• Háztartási helyiség 3,44 m2
• Mosdó + toalett 1,71 m2
• Közlekedő + gardrobe 1,71 m2

Tároló: 3 m2

Kültér:
• 45 m2 terasz
• Saját kerthasználati terület

Magas színvonalú kivitelezés – energiatakarékos műszaki tartalom.
A kivitelező cég évtizedek óta minőségi kivitelezéssel épít ingatlanokat.

Műszaki tartalom-kivitelezés:
A ház a mai energiatakarékos műszaki elvárásoknak megfelelően minőségi alapanyagok felhasználásával épült meg.
• A fűtést és a melegvíz ellátást saját kombinált kondenzációs kazán végzi
• Másodlagos fűtésről és hűtésről multi klíma 3 beltéri egysége gondoskodik.
• Minőségi szaniterek - wc - bide -zuhanykabin.
• Beépített IKEA konyhabútor.
• Az épület szigetelt, vasbeton alapra épült, 38-as Porotherm tégla tartófalakkal, 10-es vakolt tégla válaszfalakkal.
• A homlokzat 10 cm-es grafit hőszigeteléssel, az aljzat 10 cm-es lépésálló szigeteléssel készült.
• Tető beton födémmel készült - födém 30 cm-es kőzetgyapot szigeteléssel rendelkezik.
• Szürke fém, több ponton záródó, biztonsági bejárati ajtó.
• Fa, több réteg üvegezésük, hő- és hangszigetelt nyílászárók, kő párkányokkal.

A kulcsrakész átadás végleges időpontja 2026.09.30.

Parkolni a lakópark előtti területen lehet igény szerint teremgarázs is bérelhető.

Kedvezményes hiteligénylés, CSOK, BABAVÁRÓ támogatás esetén, kezdeményezheti a kapcsolatfelvételt díjmentesen bankfüggetlen hitelszakértő munkatársunkkal.

Az ingatlan megtekintése előre egyeztetett időpontban lehetséges, akár hétvégén is.

Amennyiben felkeltette az érdeklődését, további kérdéseivel kapcsolatban várom a jelentkezését.
Kémeri-Szekernyés Tímea

Kémeri-Szekernyés Tímea

Hívjon bizalommal

+36-30-248-Mutasd!

További hirdetéseim

Ingatlaniroda
GDN Ingatlanhálózat - SZIGET
+36 24 656 320

Visszahívást kérek

Hasonló ingatlanok

Keressen bennünket