Lakás (téglaépítésű) Eladó Budapest II. kerület - Nagybányai út

Eladó Budapest II. kerület Lakás (téglaépítésű)
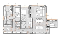
210 m2Alapterület 6 Szoba
575 000 000 Ft Ár
Hitelkalkuláció folyamatban... Loading
383131Azonosító
További adatok

Panoráma Kilátás

Új Állapot

Tégla Szerkezet

103 m2 Erkély/terasz

Hőszivattyú Fűtés

Dupla komfort Komfort

Saját beálló Parkolás

Emelet 2

Van Lift

Tömegközlekedés

Amerikai konyhás

Nincs Kertkapcsolat

2024 Építés éve

Déli Tájolás

⚙️ EGY KIVÉTELES LAKÁS, AMELY MINDEN RÉSZLETÉBEN A MINŐSÉGRŐL, A JÖVŐRŐL ÉS AZ ÉLMÉNYRŐL SZÓL. ⚙️
Luxus lakás – privát alagút, panoráma

Az igazi luxus nem hivalkodik – jelen van minden részletben. Egyedülálló lakás Törökvész egyik legexkluzívabb, hatlakásos társasházában. A tágas életterek, a különleges kialakítás és a titkos luxusmegoldások – mint a lakáshoz tartozó privát alagút – egy életre szóló élményt kínálnak.

***** PLEASE SCROLL DOWN FOR THE ENGLISH VERSION *****

⚙️ FŐBB JELLEMZŐK:
☆ Helyszín: Budapest II. kerület, Törökvész (Nagybányai út)
☆ Méret: 210 nm + 103 nm panorámás terasz
☆ Elrendezés: 5 szoba + nappali-étkező-konyha egyben
☆ Fürdők: 2 teljes fürdő + vendég WC
☆ Extra helyiségek: háztartási helyiség, gardróbszoba
☆ Parkolás: 2 felszíni beálló, elektromos autótöltővel
☆ Ár: 575 000 000 HUF
☆ Állapot: Külön albetéten, saját mérőórákkal felszerelve
Az új tulajdonosnak csak a hideg-meleg burkolatokat, szanitereket és bútorokat kell kiválasztania. Igény esetén teljes körű szakági támogatás – a lakás akár 6–8 héten belül költözhető.

A képek látványtervek. Az alaprajz tájékoztató jellegű.

⚙️ KÜLÖNLEGES RÉSZLET – SAJÁT PRIVÁT ALAGÚT LIFTTEL
A lakáshoz kizárólagosan tartozik egy 50 nm-es privát alagút, amely lifttel és kártyás azonosítással közelíthető meg – ilyen megoldás még a budai luxusingatlanok világában is kuriózum.

⚙️ PÁRATLAN KILÁTÁS – MINDEN IRÁNYBÓL
A déli tájolású, 103 nm-es panorámás terasz egész nap természetes fénybe öltözteti az otthont. A lakás minden helyiségéből zavartalan kilátás nyílik Pasarétre és az Istenhegyre – örök érték, amit semmi nem vehet el.

⚙️ KERT ÉS KÖZÖS TEREK – ÉLHETŐ LUXUS KÍVÜL-BELÜL
A társasház csupán 6 prémium otthont tartalmaz, parkosított, automata öntözésű kerttel, díszfákkal, hangulatvilágítással, kültéri tűzrakókkal, valamint előkészített szauna- és jacuzzi csatlakozásokkal. Egy valódi, nyugodt oázis a város felett.

⚙️ OKOSOTTHON RENDSZER – LOXONE ELŐKÉSZÍTÉSSEL
✔ Távolról vezérelhető fűtés, hűtés, párátlanítás
✔ Elektromos zsalúziák, videókaputelefon, riasztó
✔ iPadről és mobilról kezelhető vezérlés
✔ Ujjlenyomatolvasós és NFC-s beléptetőrendszer

⚙️ PRÉMIUM GÉPÉSZET ÉS TECHNOLÓGIA
✔ Daikin hőszivattyús rendszer: padlófűtés + mennyezethűtés
✔ Wolf hővisszanyerős szellőztető rendszer
✔ 3 rétegű ALIPLAST alumínium nyílászárók, elektromos árnyékolók
✔ Külön albetét, önálló mérőórákkal

⚙️ KIVÁLÓ LOKÁCIÓ – NYUGODT KÖRNYEZET, KÖZPONTI ELÉRHETŐSÉG
✔ Tömegközlekedés: 11-es és 29-es busz, gyors elérés Széll Kálmán térre
✔ Autóval 15–20 perc a belváros
✔ Fejlett úthálózat, több alternatív útvonal
✔ Csendes, zöld utcában, mégis közel mindenhez

⚙️ INFRASTRUKTÚRA A KÖZELBEN
✔ Bevásárlás: Rózsadomb Center, Rózsakert, Mammut, Hüvi
✔ Oktatás: SEK Nemzetközi Iskola, francia és angol óvodák
✔ Egészségügy: Rózsakert Medical Center, Budai Egészségközpont
✔ Szabadidő: teniszklubok, uszoda, jóga, Margitsziget, Hármashatár-hegy

⚙️ BEFEKTETÉSI LEHETŐSÉG, AMI RITKASÁGSZÁMBA MEGY
✔ Egyedülálló lakás saját alagúttal és panorámával
✔ Magas presztízs, szűk kínálat, folyamatos kereslet
✔ Külföldi vevők és expatok által is keresett lokáció

☆ TOVÁBBI INFORMÁCIÓÉRT VAGY MEGTEKINTÉSÉRT KERESSEN BIZALOMMAL!

***** THE ENGLISH VERSION *****


⚙️ A UNIQUE RESIDENCE THAT EMBODIES QUALITY, VISION, AND EXPERIENCE ⚙️
Panorama Residence – private tunnel, panoramic luxury

True luxury doesn’t boast – it’s felt in every detail. Panorama Villa is a one-of-a-kind apartment in one of Törökvész’s most exclusive six-unit buildings. Spacious interiors, bespoke design, and hidden luxury features – including a private tunnel – offer an unparalleled living experience.

⚙️ KEY FEATURES:
☆ Location: Budapest District II, Törökvész (Nagybányai Street)
☆ Size: 210 sqm + 103 sqm panoramic terrace
☆ Layout: 5 rooms + open-plan living-dining-kitchen
☆ Bathrooms: 2 full + guest WC
☆ Additional rooms: utility room, walk-in closet
☆ Parking: 2 surface spaces with electric vehicle chargers
☆ Price: HUF 575,000,000
☆ Condition: Advanced structural shell – including heating system,
alarm system, and other mechanical installations – separate
ownership unit with individual meters.
The new owner only needs to choose the hot and cold coverings, sanitary ware and furniture. Full professional support if required – the apartment can be moved into within 6–8 weeks.

The images are visual renderings. The floor plan is for informational purposes only.

⚙️ EXCLUSIVE FEATURE – PRIVATE TUNNEL WITH ELEVATOR
This apartment includes a 50 sqm private tunnel with its own dedicated access, elevator, and keycard system – an extraordinary amenity even among Buda’s luxury properties.

⚙️ UNOBSTRUCTED PANORAMIC VIEWS
The 103 sqm south-facing panoramic terrace bathes the entire home in natural light. Every room enjoys uninterrupted views of Pasarét and Istenhegy – an eternal asset no development can ever replace.

⚙️ GARDEN AND SHARED SPACES – OUTDOOR ELEGANCE
This boutique residence of just 6 homes is surrounded by a landscaped garden with automatic irrigation, decorative trees, ambient lighting, outdoor fire pits, and pre-installed sauna & jacuzzi connections. A serene oasis above the city.

⚙️ SMART HOME SYSTEM – LOXONE PRE-INSTALLATION
✔ Remote control of heating, cooling, and dehumidification
✔ Electric blinds, video intercom, alarm system
✔ Managed via iPad and mobile devices
✔ Fingerprint and NFC access system

⚙️ PREMIUM ENGINEERING AND TECHNOLOGY
✔ Daikin heat pump: underfloor heating + ceiling cooling
✔ Wolf heat recovery ventilation system
✔ Triple-glazed ALIPLAST aluminum windows with motorized blinds
✔ Separate title and individual meters

⚙️ PRIME LOCATION – QUIET YET WELL CONNECTED
✔ Public transport: buses 11 and 29 to Széll Kálmán Square
✔ 15–20 minutes drive to downtown
✔ Multiple alternative road options
✔ Peaceful green street with all amenities nearby

⚙️ INFRASTRUCTURE NEARBY
✔ Shopping: Rózsadomb Center, Rózsakert, Mammut Mall, Hüvi
✔ Education: SEK International School, French and British kindergartens
✔ Healthcare: Rózsakert Medical Center, Buda Health Center
✔ Leisure: tennis clubs, swimming pools, yoga, Margaret Island, Hármashatár Hill

⚙️ INVESTMENT OPPORTUNITY
✔ Unique property with private tunnel and panoramic views
✔ High prestige, limited availability, steady demand
✔ Popular with foreign buyers and expats

☆ FOR MORE INFORMATION OR TO SCHEDULE A VIEWING, PLEASE CONTACT US!
Csík Zsolt

Csík Zsolt

Hívjon bizalommal

+36-30-641-Mutasd!

További hirdetéseim

Ingatlaniroda
GDN Ingatlanhálózat - SZIGET
+36 24 656 320