Lakás (panel) Eladó Budapest III. kerület - Vörösvári út

Eladó Budapest III. kerület Lakás (panel)
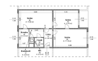
65 m2Alapterület 3 Szoba
74 900 000 Ft Ár
Hitelkalkuláció folyamatban... Loading
389436Azonosító
További adatok

Panoráma Kilátás

Közepes Állapot

Panel Szerkezet

4 m2 Erkély/terasz

Távfűtés Fűtés

Összkomfort Komfort

Utcán, közterületen Parkolás

Emelet 5

Van Lift

Kiváló Tömegközlekedés

Nem Amerikai konyhás

Nincs Kertkapcsolat

1980 Építés éve

Közös költség 13 000 Ft

Déli Tájolás

PANELPROGRAMOS, 3 SZOBÁS, LOGGIÁS, V.EMELETI, AZONNAL KÖLTÖZHETŐ, TEHERMENTES LAKÁS ELADÓ!

III. kerületben, az Óbudai Lakótelep kiváló infrastruktúrájú részén, a Vörösvári úton, 10 emeletes, szigetelt, PANELPROGRAMOS szövetkezeti társasházban, V. emeleti, 65 nm-es, (bruttó 69 nm), 3 szobás, közepes állapotú, távfűtéses, műanyag nyílászárós (rovarhálóval, redőnnyel), ablakos konyhás, Déli fekvésű, loggiás (4 nm), rendkívül alacsony fenntartási költségű, AZONNAL birtokba vehető, TEHERMENTES panel lakás eladó.

A környék ellátottsága, infrastruktúrája kiváló, busz, - HÉV - és villamos megállók karnyújtásnyira, bevásárlási lehetőségek, bankok, posta, iskola, óvoda pár percen belül elérhető.

Érdemes megnézni, bővebb információért hívjon bizalommal akár hétvégén is, előre egyeztetett időpontban kizárólag ingatlanközvetítő bevonásával megtekinthető!
L.D

INGYENES hitel tanácsadás, CSOK Plusz, OTTHON START ügyintézés!
BANKFÜGGETLEN hitelcentrumunk az összes elérhető bank és hitelintézet ajánlatát versenyezteti az Ön kedvéért, ráadásul DÍJMENTESEN.

- Egyedi, bankfiókban nem elérhető kamat- és díjkedvezmények
- Hitelképesség vizsgálat
- Idő, energia és pénz megtakarítás
- Teljes hivatali ügyintézés
Köő Zsolt

Köő Zsolt

Hívjon bizalommal

+36-20-234-Mutasd!

További hirdetéseim

Ingatlaniroda
GDN Ingatlanhálózat - SZIGET
+36 24 656 320