Lakás (téglaépítésű) Eladó Budapest VI. kerület - Paulay Ede utca

Eladó Budapest VI. kerület Lakás (téglaépítésű)
66 m2Alapterület 2 Szoba
286 200 €(~ 104 139 594 Ft)
Hitelkalkuláció folyamatban... Loading
282330Azonosító
További adatok

Udvari Kilátás

Új Állapot

Tégla Szerkezet

11 m2 Erkély/terasz

Gáz (cirkó) Fűtés

Dupla komfort Komfort

Utcán, közterületen Parkolás

Emelet 5

Legfelső emelet

Van Lift

Kiváló Tömegközlekedés

Amerikai konyhás

Nincs Kertkapcsolat

2020 Építés éve

Közös költség 15 000 Ft

Keleti Tájolás

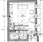
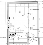
Operaház közelében ajánljuk figyelmébe ezt az azonnal költözhető, két szobás, duplakomfortos, nagy erkélyes ingatlant. A lakás zártlépcsőházból nyílik. Elhelyezkedésének köszönhetően akár a hosszú távú bérbeadásra vonatkozó kilátások is kecsegtetőek . Az alsó szinten a konyha & nappali található 25m2-en, az emeleten pedig a 19m2-es hálószoba melyből a 11m2-es terasz is megközelíthető. A nappali mellett található fürdő zuhanykabinnal felszerelt a hálószoba melletti pedig káddal ellátott. A teljes lakás klimatizált. Az épület kis lakóközösségű, a beépítéssel párhuzamosan a homlokzatok felújításra kerültek és felvonó is beépítésre került.
Gergicsné Veér Annamária

Gergicsné Veér Annamária

Hívjon bizalommal

+36-20-396-Mutasd!

További hirdetéseim

Ingatlaniroda
GDN Ingatlanhálózat - SZIGET
+36 24 656 320