Lakás (téglaépítésű) Eladó Budapest VII. kerület - Sajó utca

Eladó Budapest VII. kerület Lakás (téglaépítésű)
76 m2Alapterület 3 Szoba
101 500 000 Ft Ár
Hitelkalkuláció folyamatban... Loading
392615Azonosító
További adatok

Utcai Kilátás

Jó állapotú Állapot

Tégla Szerkezet

Gáz (cirkó) Fűtés

Összkomfort Komfort

Utcán, közterületen Parkolás

Emelet 3

Legfelső emelet

Nincs Lift

Kiváló Tömegközlekedés

Nem Amerikai konyhás

Nincs Kertkapcsolat

1896 Építés éve

Közös költség 25 000 Ft

Délkeleti Tájolás

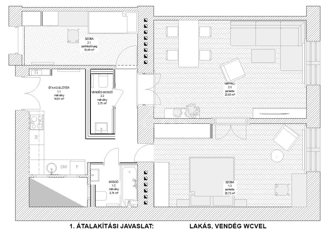
Eladó pár éve teljeskörűen felújított, napfényes, 76 m² lakás.
Jelenleg KÉT külön bejáratú LAKÁSként funkcionál.
Méretük: 39,66 m² és 36,59 m².
Városliget, Keleti Pályaudvar 5 perc séta – Ideális otthonnak, irodának, befektetésnek!

Ne hagyja ki ezt a különleges lehetőséget! Az ingatlan ideális fiatal pároknak, egyetemista testvérpárnak, otthonról dolgozóknak, akik szeretnék elkülöníteni a lakóteret az irodától. Kiváló választás befektetésnek, hiszen a két külön bejáratú lakás azonnali két lakbér bevételt biztosít.
Igény esetén a két lakás könnyen egybe is nyitható, így egy 3 szobás, tágas lakást kapunk. Átalakításnál múszaki rész kiépített, nem igényel plusz munkát.

1. lakás: 39,66 m²
Szoba: 23,93 m²
Előtér és konyha: 11,98 m²
Fürdőszoba: 3,75 m²

2. lakás: 36,59 m²
Szoba: 20,73 m²
Előtér és konyha: 12,24 m²
Fürdőszoba: 3,62 m²

Miért érdemes ezt választani?

✅Két külön bérlemény, dupla bevétel: Az ingatlan jelenleg két lakásként üzemel, így az új tulajdonos azonnal két bérleti díjra számíthat.

✅Tökéletes otthoni iroda elrendezés: Egyik lakás otthonnak, a másik pedig irodának használható – ideális azoknak, akik otthonról dolgoznak.

✅Kiváló közlekedés: A Keleti Pályaudvar, Városliget, Garay téri piac, üzletek, boltok, éttermek, kórház, iskolák, mind csupán pár percre találhatóak gyalogosan is.

✅Friss felújítás, magas műszaki tartalom: A lakás gépészeti és elektromos rendszere teljes körűen felújításra került, beleértve a Bosch kondenzációs kazánt, új villanyhálózatot és bővített áramkapacitást. Az új konyha, márvány padlóburkolatok, és strapabíró felületek mind hozzájárulnak a lakás prémium érzetéhez.

A lakás műszaki tartalma:

✅Új Bosch kondenzációs kazán, duplacsöves kémény

✅Teljes elektromos és gépészeti felújítás

✅ IKEA konyha tömörfa munkalappal

✅Márvány padlóburkolatok a konyhában és a fürdőszobákban

✅Két vízóra, új radiátorok szabályozószelepekkel


Tekintse meg ezt a kiváló paraméterekkel, adottságokkal rendelkező ingatlant, amely egy tisztasági festés után azonnal költözhető, kiadható.
Bútorokkal, gépesítve, számtalan lehetőséggel!

Rugalmasan nézhető. Hívjon, kérdezzen, nézzük meg!

B. Zs.
Fajta Anita

Fajta Anita

Hívjon bizalommal

+36-30-381-Mutasd!

További hirdetéseim

Ingatlaniroda
GDN Ingatlanhálózat - SZIGET
+36 24 656 320