Lakás (téglaépítésű) Eladó Budapest XII. kerület - Greguss utca

Eladó Budapest XII. kerület Lakás (téglaépítésű)
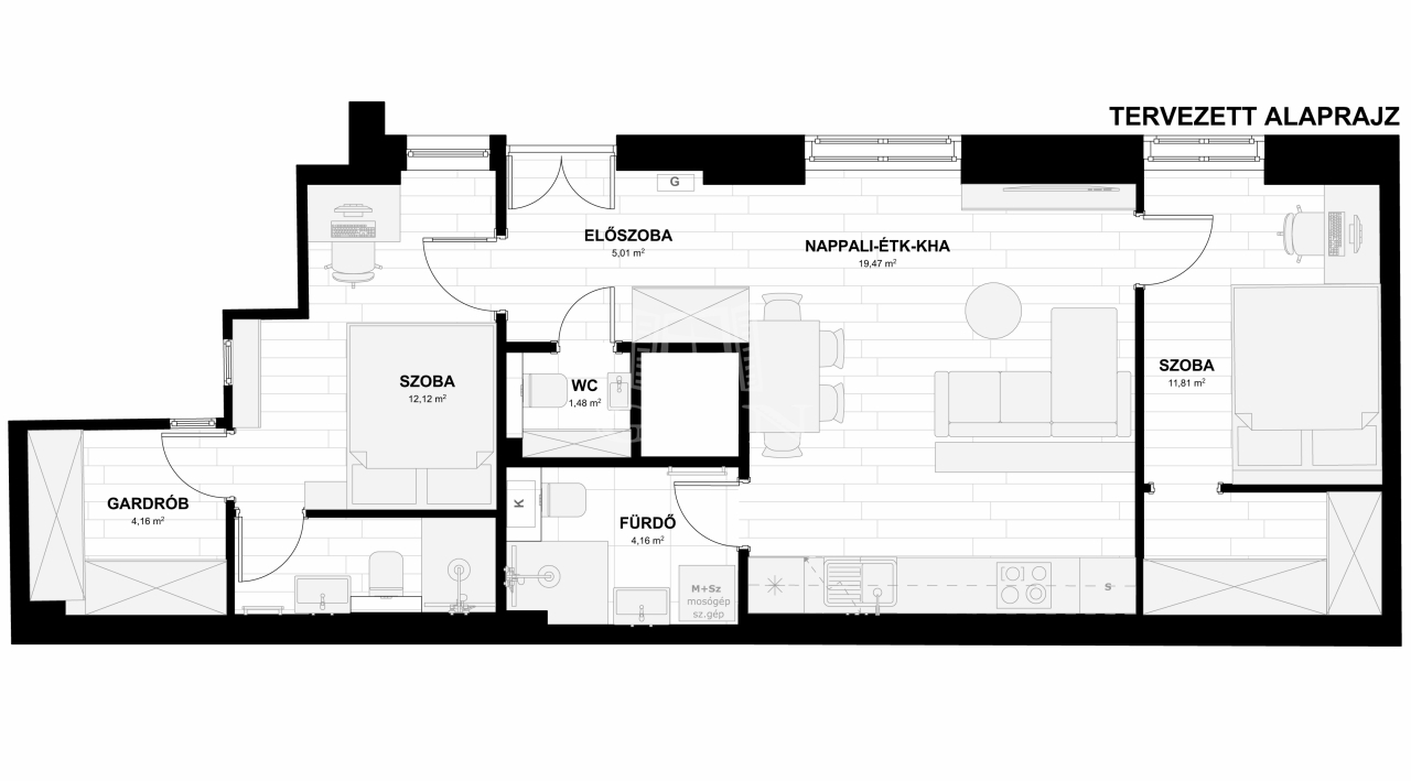
58 m2Alapterület 3 Szoba
94 000 000 Ft Ár
Hitelkalkuláció folyamatban... Loading
394633Azonosító
További adatok

Udvari Kilátás

Felújítandó Állapot

Tégla Szerkezet

Gáz (konvektor) Fűtés

Összkomfort Komfort

Utcán, közterületen Parkolás

Emelet 1

Nincs Lift

Kiváló Tömegközlekedés

Nem Amerikai konyhás

Nincs Kertkapcsolat

1940 Építés éve

Közös költség 19 600 Ft

Keleti Tájolás

XII. kerületben, Krisztinavárosban, kiváló közlekedés és ellátottság mellett, a MOM park és a Széll Kálmán tér között, csendes egyirányú utcában, 1920-as években épült, példás anyagi helyzetű, folyamatosan karbantartott társasházban, kiváló adottságú és elosztású, 1.emeleti, 58 nm-es, 2 szobás, többféle átépítési lehetőséget kínáló,
(könnyedén nappali + 2 hálószobássá alakítható), napos-világos fekvésű, alacsony fenntartású, közös költség korlátlan vízfogyasztással: 19.600 Ft, gázkonvektoros fűtésű, belső udvarra néző, felújítandó állapotú lakás, kulturált lakóközösségű házban eladó.

Az ingatlan tehermentes azonnal birtokba vehető!
A környék biztonságos, infrastruktúrája és közlekedése kitűnően ellátott!

A lakás közelében, élelmiszer boltok, (SPAR), gyógyszertár, több park, (Vérmező Lombos park) játszótér, futópálya, Tesnevelési Egyetem, bevásárló központok (MOM park, MAMMUT) található.

Az ingatlan tökéletes elhelyezkedésének köszönhetően kiválóan alkalmas befektetési célokra, rendelőnek, irodának, hosszú vagy rövid távú bérbeadásra.

További részletekért várom megtisztelő hívását.
(hétvégén is)
EA
Apolzan Magdalena

Apolzan Magdalena

Hívjon bizalommal

+36-70-908-Mutasd!

További hirdetéseim

Ingatlaniroda
GDN Ingatlanhálózat - SZIGET
+36 24 656 320