Lakás (téglaépítésű) Eladó Budapest XXIII. kerület - Zsellér dűlő

Eladó Budapest XXIII. kerület Lakás (téglaépítésű)
53 m2Alapterület 3 Szoba
53 000 000 Ft Ár
Hitelkalkuláció folyamatban... Loading
394525Azonosító
További adatok

Udvari Kilátás

Új Állapot

Tégla Szerkezet

Megújuló energia Fűtés

Összkomfort Komfort

Saját beálló Parkolás

Emelet Földszint

Nincs Lift

Tömegközlekedés

Nem Amerikai konyhás

Van Kertkapcsolat

2025 Építés éve

Soroksár frekventált részén eladó lakások!

Az ingatlan teljesen felújított, új tetőt kapott, 3 rétegű műanyag nyílászárókkal, hűtő-fűtő klímával ellátott.
A lakásokhoz 2db saját gépkocsi beálló tartozik.

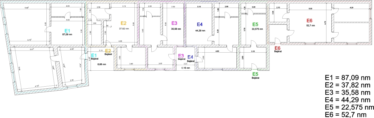
6.sz. lakás 52,7 m2
- előtér 4,72 m2
- konyha-nappali 23,5 m2
- szoba 9,7 m2
- szoba 9,7 m2
- fürdő 4,72 m2

A lakások ügyvédi megosztással kerülnek értékesítésre.

- víz 1db főmérő és lakásonként külön mellékmérők,
- villany lakásonként saját mérőórák,

Befektetésnek is kiváló, a környéken 170.000-210.000Ft/hó + rezsi áron vannak hasonló kiadó lakások, ami évente 2.000.000Ft bevételt jelenthet.

Amivel segítjük az Ön ingatlanvásárlását:
- ingyenes hitelügyintézés,
- jogi háttér,
- földhivatali ügyintézés,
- energetikai tanúsítvány.

Irodánk 30 éves szakmai tapasztalattal áll ügyfelei rendelkezésére!
Várom szíves megkeresését.
Apolzan Magdalena

Apolzan Magdalena

Hívjon bizalommal

+36-70-908-Mutasd!

További hirdetéseim

Ingatlaniroda
GDN Ingatlanhálózat - SZIGET
+36 24 656 320

Visszahívást kérek

Keressen bennünket