Családi ház Eladó Diósd - Csendes utcában

Eladó Diósd Családi ház
139 m2Alapterület 5 Szoba
174 900 000 Ft Ár
Hitelkalkuláció folyamatban... Loading
393200Azonosító
További adatok

442 m2 Telek

Panoráma Kilátás

Felújított Állapot

Tégla Szerkezet

38 m2 Erkély/terasz

Gáz (cirkó) Fűtés

Dupla komfort Komfort

Saját garázs Parkolás

Közepes Tömegközlekedés

Nem Amerikai konyhás

Van Kertkapcsolat

2007 Építés éve

Északkeleti Tájolás

CSAK NÁLUNK – PANORÁMÁS CSALÁDI HÁZ ELADÓ DIÓSDLIGETEN, DUPLA GARÁZZSAL ÉS NAPELEMMEL

Ha egy nyugodt, zöldövezeti környezetben lévő családi házat keres, ahol a panoráma, a tágas terek és a jól átgondolt elrendezés egyszerre van jelen, érdemes megismernie ezt az ingatlant.

Diósdliget egyik csendes utcájában kínálunk megvételre egy háromszintes családi házat, amely ideális választás lehet családok számára, akik tágas és jól szeparált életteret keresnek Budapest közvetlen közelében.

A ház praktikus elrendezése, dupla garázsa, napelemes rendszere és a panorámás kilátás olyan adottságok, amelyek hosszú távon is értéket képviselnek.

---

# Főbb adatok

Telek mérete: 442 m²
Nettó lakótér: 139 m²
Bruttó alapterület: 195 m² (3 szint összesen, garázzsal és tárolóval)
Terasz: 38 m²
Garázs: kétállásos, házkapcsolatos (kb. 45 m²)
Építés éve: 2007
Felújítás: 2018

Az ingatlan rendszeresen karbantartott állapotú, igény szerint tisztasági festést követően költözhető.

---

# Helyiségek elosztása

## Pince / garázsszint (70,9 m2)

* kétállásos garázs e-töltővel
* kazánház és tároló
* ablakos dolgozó vagy hobbi szoba

A külön dolgozószoba ideális lehet home office munkavégzéshez, vállalkozáshoz vagy akár vendégszobának is.

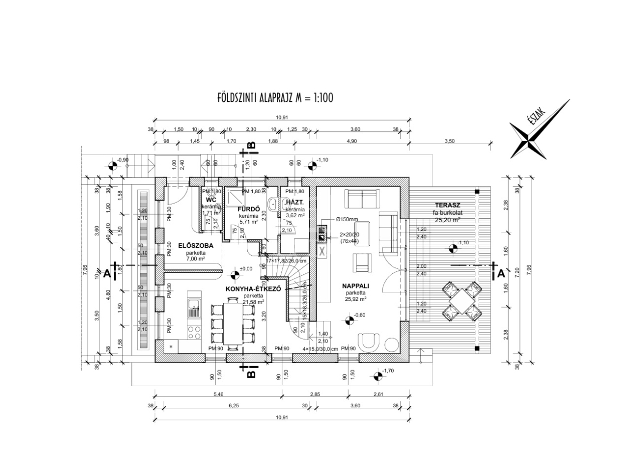
## Földszint (65,5 m2)

* előszoba
* vendég WC
* fürdőszoba mosókonyhával
* konyha és étkező
* tágas nappali közvetlen teraszkapcsolattal

A nappali közvetlen kapcsolatban áll a 38 m²-es terasszal és a kerttel, amely kiváló helyszín családi reggelikhez vagy baráti összejövetelekhez.

## Tetőtér (58,3 m2)

* szülői hálószoba
* két gyerekszoba
* gyereknappali vagy közösségi tér
* gardrób
* fürdőszoba

Az emeleti szobákból panorámás kilátás nyílik a környező zöldövezetre.

---

# Műszaki és energetikai tartalom

* Buderus kondenzációs gázkazán
* 2 db Samsung split klíma
* 5,1 kW teljesítményű napelemes rendszer
* 10 kW-os energiatároló
* Ajax távfelügyeletes riasztórendszer
* mozgásérzékelős kamerarendszer
* udvari infra sorompók
* automata locsolórendszer külön mellékvízmérővel

A napelem és energiatároló rendszer korszerű és gazdaságos üzemeltetést biztosít.

---

# Parkolás

* kétállásos házkapcsolatos garázs
* térkövezett kültéri parkolóhely

---

# Környezet

Az ingatlan Diósdliget egyik nyugodt, családi házas utcájában található.

Buszmegálló kb. 7 perc sétára elérhető.
Diósd központja – iskola, óvoda, bevásárlási lehetőségek – rövid időn belül megközelíthető.
A környéken kirándulási és sportolási lehetőségek is rendelkezésre állnak.

---

# Jogi státusz

Az ingatlan per-, teher- és igénymentes.
-------------------------------------------------------

Amennyiben egy tágas, panorámás családi házat keres Diósd egyik nyugodt részén, érdemes személyesen is megtekinteni ezt az ingatlant. További információért vagy megtekintési időpont egyeztetéséhez várom megtisztelő megkeresését.

---

# Fontos információ

A hirdetés tájékoztató jellegű.
Köő Zsolt

Köő Zsolt

Hívjon bizalommal

+36-20-234-Mutasd!

További hirdetéseim

Ingatlaniroda
GDN Ingatlanhálózat - SZIGET
+36 24 656 320