Raktár Kiadó Diósd - Diósd Iparterület

Kiadó Diósd Raktár
285 m2Alapterület 0 Szoba
2 280 €(~ 829 624 Ft)
393125Azonosító
További adatok

5053 m2 Telek

Udvari Kilátás

Közepes Állapot

Tégla Szerkezet

Gáz (cirkó) Fűtés

Saját beálló Parkolás

Kiváló Tömegközlekedés

1970 Építés éve

Ipari ingatlan bérbeadó Diósd kiemelt gazdasági övezetében
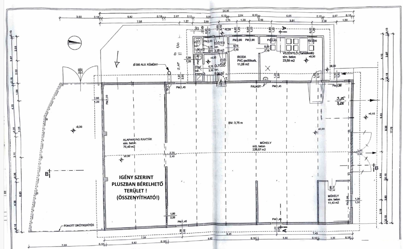
Budapest határán, Diósd egyik legfontosabb ipari‑gazdasági övezetében kínálunk bérbeadásra egy nettó hasznos 285 m², jó műszaki állapotú, önálló ipari/műhely ingatlant.

FIGYELEM: igény szerint az alaprajzon látható ALAPANYAG RAKTÁR ( 76,49 m² ) pluszban bérelhető a területhez, ebben az esetben az össz. alapterület: 361,49 m² lenne. Ez a terület jelenleg leválasztásra került, de kérésre egybenyitható / hasznosítható !

Az épület 2026. márciusától használatba vehető, és alkalmas gyártási, műhely-, logisztikai vagy szolgáltatóipari tevékenységre.

Az ingatlan nagy áramkapacitással (120 A), radiátoros gázfűtéssel, teherbíró ipari aljzattal, saját iroda- és szociális blokkal, valamint őrzött, betonozott udvarral rendelkezik.
A telephely kamionnal is könnyedén megközelíthető, a beállás és rakodás zavartalanul megoldható.

Az épület előtt több autó számára biztosított a parkolás, de igény szerint további szabad, külső terület is bérelhető hozzá.
Az épület napelemrendszerrel felszerelt, amely jelentősen csökkenti az üzemeltetési költségeket.

Főbb műszaki jellemzők:

Acélvázas, téglafalazatú ipari épület
- 120 A ipari áram, külön mérőórákkal
- Teherbíró, betonozott ipari padló
- Radiátoros gázfűtés
- LED-es ipari világítás
- 3,75 méter belmagasság
- Saját irodahelyiségek és szociális blokk (mosdó, öltöző, teakonyha)
- Zárt, őrzött, kamerázott udvar
- Napelemrendszer telepítve
- Kamionnal is könnyen megközelíthető és bejárható
- Különálló épület, teljes egészében saját használatú

Elhelyezkedés és megközelíthetőség: Diósd ipari övezetének központi részén található, kiváló közlekedési kapcsolatokkal.

- Budapest: 10–12 perc
- M0 / M1 / M7 autópályák: 2–4 perc
- Jó tömegközlekedés a környéken
- Biztonságos, fejlődő vállalati környezet

A lokáció ideális olyan vállalkozások számára, amelyeknek fontos a gyors autópálya‑kapcsolat, a könnyű áruszállítás és a főváros közelsége.

Felhasználási lehetőségek:

- Gyártó- és termelőüzem
- Autószerviz, CNC-, lakatos-, faipari vagy fémipari műhely
- Logisztikai raktár + iroda kombináció
- E‑kereskedelmi háttérbázis
- Kisvállalati telephely
- Szolgáltatóipari műhelyek

Bérleti díj: a szerződni kívánt bérleti díj: 8 EUR/m²/hó + rezsi + ÁFA (forintban fizetve).
Gergicsné B. Enikő

Gergicsné B. Enikő

Hívjon bizalommal

+36-30-941-Mutasd!

További hirdetéseim

Ingatlaniroda
GDN Ingatlanhálózat - SZIGET
+36 24 656 320

Visszahívást kérek

Hasonló ingatlanok

Keressen bennünket