Családi ház Eladó Dunabogdány - Kis - Sváb hegy kedvelt részén

Eladó Dunabogdány Családi ház
319 m2Alapterület 5 + 1 Szoba
139 900 000 Ft Ár
Hitelkalkuláció folyamatban... Loading
342366Azonosító
További adatok

1478 m2 Telek

Panoráma Kilátás

Jó állapotú Állapot

Tégla Szerkezet

21 m2 Erkély/terasz

Gáz (cirkó) Fűtés

Dupla komfort Komfort

Saját beálló Parkolás

Közepes Tömegközlekedés

Nem Amerikai konyhás

Van Kertkapcsolat

2000 Építés éve

Délnyugati Tájolás

NYUGALOMRA VÁGYÓK, EGYIDI MEGJELENÉST, MEGOLDÁSOKAT KERESŐK FIGYELEM!

Dunabogdány, méltán híres részén, Kis - Sváb hegyen eladásra kínálok, egy egyedileg megtervezett, kivitelezett önálló családi házat.
Az ingatlant a 1980-as években kezdték el építeni, majd 2007-ben kapta meg jelenlegi formáját, az összközműves1478 nm-es telken.
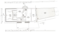
A belső atmoszférát, a kortársművészetet kedvelő tulajdonos álmodta meg és terveztette meg. Így alakult ki a 4 szintes, nettó 319 nm-es (bruttó 427 nm) épület.

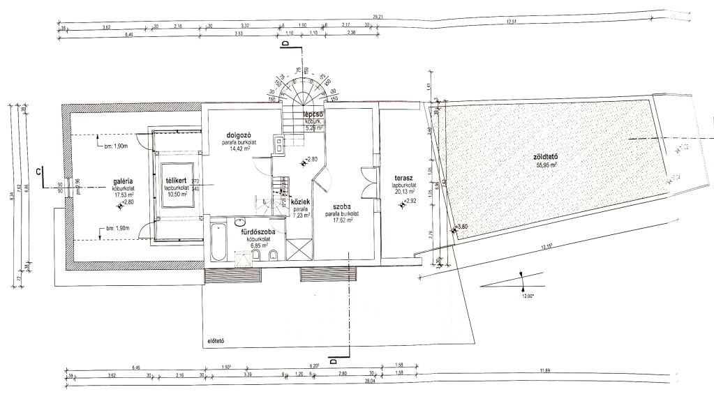
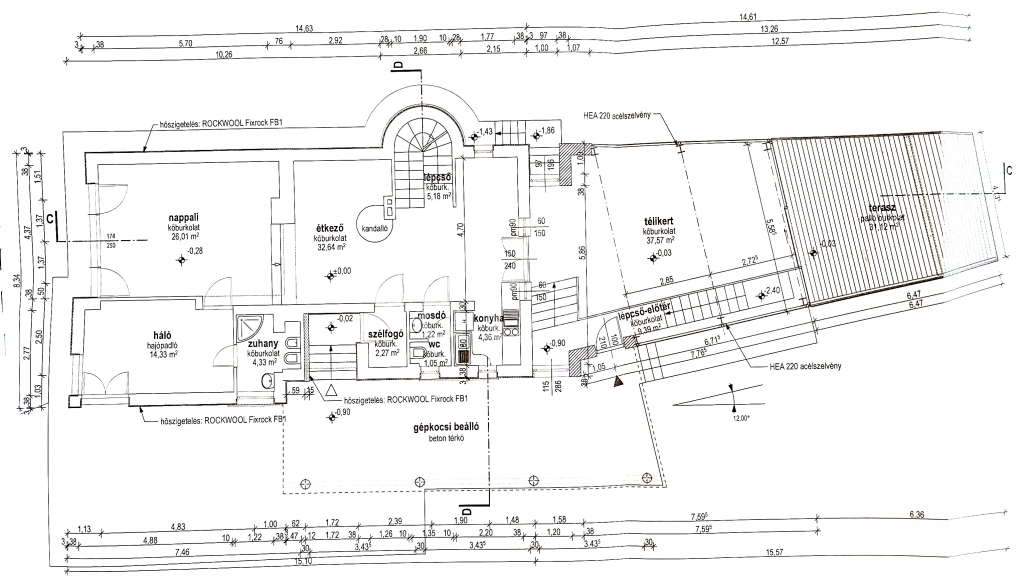
A földszinten kapott helyet egy VÖRÖS MÁRVÁNNYAL burkolt nappali, étkező, hálószoba, főzőfülke, télikert, illetve a főbejárat egy vendég wc-vel. Közvetlen kapcsolat nyílik a télikertből a kényelmes, részben panorámás teraszra.
Körbenapozottságának köszönhetően, egész nap világos, napfényes, az egyedi színes üvegezének köszönhetően, a fő élettér színekben pompázik.

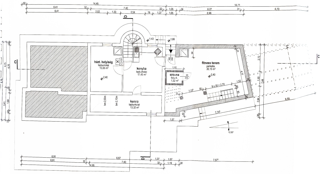
A pinceszinten - mely a télikertből megközelíthető – kialakításra került egy fitneszterem, szaunával, háztartási helyiséggel, konyhával, kamrával.

A fehérmárvánnyal burkolt lépcsőházon keresztül jutunk fel az emeletre. Itt megvalósult egy hálószoba – közvetlen 70 nm-es PANORÁMÁS TERASZ kapcsolattal – dolgozó szoba, fürdőszoba, illetve egy átriumos koncert szoba, melyet tulajdonos a gyűjteményeinek szentelt.
Tovább haladva az épületben felfelé, eljutunk a csillagvizsgálóhoz, melynek nyereg teteje elektromosan mozgatható és hőszigetelt üvegezéssel fedett!

A családi ház fűtését, meleg víz ellátását, kondenzációs VIESSMANN kazán biztosítja, NAPKOLLEKTOR rásegítéssel.

A szinteltolt kertben helyet kapott egy terméskő melléképület, mely tárolásra, kerti party kellékek elhelyezésére egyaránt alkalmas.
2 autó számára van fedett beálló, melyet terméskő bejárón keresztül érhetünk el, illetve elektromos gépkocsi töltésére ki lett alakítva kültéri csatlakozó.

Az ingatlant, azon ügyfeleimnek ajánlom, akik meglátják az egyediséget, a kortás művészetre jellemző vonásokat, csillárokat, világítás megoldásokat.

Amennyiben hirdetésem felkeltette érdeklődését, hívjon bizalommal és előre egyeztetett időpontban bemutatom az ingatlant. tp
Gergicsné B. Enikő

Gergicsné B. Enikő

Hívjon bizalommal

+36-30-941-Mutasd!

További hirdetéseim

Ingatlaniroda
GDN Ingatlanhálózat - SZIGET
+36 24 656 320

Visszahívást kérek

Keressen bennünket