Lakás (téglaépítésű) Eladó Dunaharaszti - Bezerédi utca

Eladó Dunaharaszti Lakás (téglaépítésű)
106 m2Alapterület 4 Szoba
106 300 000 Ft Ár
Hitelkalkuláció folyamatban... Loading
382767Azonosító
További adatok

18 m2 Telek

Udvari Kilátás

Új Állapot

Tégla Szerkezet

8 m2 Erkély/terasz

Hőszivattyú Fűtés

Dupla komfort Komfort

Saját beálló Parkolás

Emelet Földszint

Nincs Lift

Közepes Tömegközlekedés

Amerikai konyhás

Van Kertkapcsolat

2025 Építés éve

Prémium otthon Dunaharaszti egyik legkedveltebb kertvárosi részén – 4 szobás, kertkapcsolatos lakások fiatal pároknak és családoknak.
A Galagonya Otthonok egy modern, természetközeli és energiatakarékos lakópark, ahol az otthon valóban nyugalmat és kényelmet jelent.

A projekt közelében található vasútvonal gyors közlekedést biztosít Budapest felé. A lakópark előtti szakaszon zajvédő fal épül, amely biztosítja a nyugodt, zavartalan otthoni környezetet.

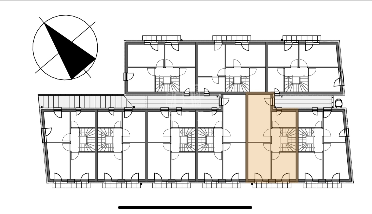
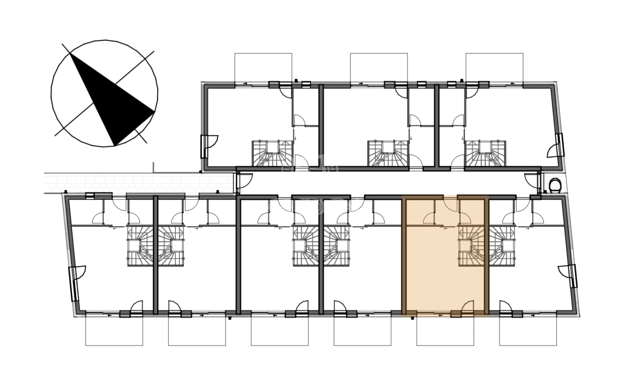
A társasház 9 lakásból áll.
Minden lakás külön bejárattal, tárolóval, és saját telekrésszel rendelkezik.

Lakások:

2. lakás: 106 nm + 8 nm terasz + 18 nm kert + konyhabútor gépekkel = 106.300.000 Ft

3. lakás: 106 nm + 8 nm terasz + 18 nm kert + konyhabútor gépekkel = 106.300.000 Ft

4. lakás: 101 nm + 8 nm terasz + 19 nm kert = 100.800.000 Ft

5. lakás: 98 nm + 8 nm terasz + 20 nm kert = 99.900.000 Ft

8. lakás: 91 nm + 8 nm terasz + 26 nm kert = 96.000.000 Ft

Műszaki paraméterek:

• Tégla falazat (Porotherm 25 N+F):
Masszív, jól szigetelő falak, időtálló minőség.
• Hanggátló válaszfalak (Porotherm AKU Z 30 cm):
Nincs áthallás a szomszédból.
• 20 cm homlokzati szigetelés (EPS, rendszergaranciával):
Kiemelkedő hőszigetelés → alacsony rezsi
• Monolit és előregyártott vasbeton födémek:
Stabil, rezgésmentes szerkezet, hosszú élettartam
• Aszimmetrikus nyeregtető, betoncserép héjazattal:
Modern megjelenés, tartós, vízzáró megoldás
• 3 rétegű nyílászárók, szürke fóliás PVC profilból: Kiváló hő- és hangszigetelés, karbantartásmentes
• Lakásonkénti hőszivattyú (SPRSUN monoblokk):
Környezetbarát, gazdaságos fűtés és hűtés egy rendszerrel
• H-tarifa mérő: Kedvezményes árú áram használható
→ rezsibarát otthon
• Padlófűtés + 2 db fan-coil beltéri klíma:
Egyenletes meleg, láthatatlan hűtés
• Elektromos autótöltő előkészítés:
Jövőbiztos otthon e-autósoknak
• Riasztó és internet védőcsövezés,
• Pipelife víz- és csatornarendszer,
• Melegvíz: hőszivattyúról,
• Fürdőszoba szaniterek: Alföldi, Ferro, M-Acryl,
• Hideg, meleg burkolatok bruttó 6000 Ft/m²,
• Előértékesítés: 3 választható burkolatszín:
• Térköves terasz: Karbantartható, esztétikus kültér,
• Kert: termőfölddel feltöltve, ültetésre előkészítve,
• Csapadékvíz szikkasztók: Biztonságos vízelvezetés,
• 150 cm magas elválasztó kerítések,
Privát szféra minden kertben
• Utcafronti kerítés, postaládák, kapuk, kukatároló.

Átadás: 2025.11.01.

Amivel segítjük az Ön ingatlanvásárlását:
- ingyenes hitelügyintézés,
- jogi háttér,
- földhivatali ügyintézés,
- energetikai tanúsítvány,
- a vevő számára az ingatlanközvetítés ingyenes.
Irodánk 30 éves szakmai tapasztalattal áll ügyfelei rendelkezésére!

Várom szíves megkeresését!
Apolzan Magdalena

Apolzan Magdalena

Hívjon bizalommal

+36-70-908-Mutasd!

További hirdetéseim

Ingatlaniroda
GDN Ingatlanhálózat - SZIGET
+36 24 656 320

Visszahívást kérek

Keressen bennünket