Családi ház Eladó Érd - Tusculanum szép kertvárosi részén

Eladó Érd Családi ház
220 m2Alapterület 5 Szoba
175 900 000 Ft Ár
Hitelkalkuláció folyamatban... Loading
382305Azonosító
További adatok

1785 m2 Telek

Kertre néző Kilátás

Jó állapotú Állapot

Tégla Szerkezet

60 m2 Erkély/terasz

Gáz (cirkó) Fűtés

Dupla komfort Komfort

Saját garázs Parkolás

Tömegközlekedés

Amerikai konyhás

Van Kertkapcsolat

1995 Építés éve

Déli Tájolás

CSAK NÁLUNK! Érd-Tusculánum részen kertvárosi részén, eladásra kínálok egy nagyon szép önálló helyrajzi számon lévő 1785 m² telken, egy 1995-ös tégla építésű 2 szintes ( pinceszint + földszint kialakítású ) családi házat, amely jelenleg 2 generációs kialakítással rendelkezik, de a két lakás jelenleg belülről is átjárható.

A földszint hasznos belső lakóterülete összesen: 220 m².
A pinceszint területe: 167 m².

Kiválóan alkalmas lehet olyan családoknak akik egyben de mégis külön is szeretnék élni a mindennapjaikat.
Mivel a korábban említett belső megközelíthetőség is adott a nagyobb és kisebb lakás között, így alkalmas lehet nagy családosok számára is akiknek fontos, hogy az élettér egy szinten legyen.

A telken az építés évében kialakításra került egy tároló is amelyből megközelíthető egy 18 m² borospince is ahol KÚT is van, illetve a kert hátsó részén található még egy jelenleg nem használt fedett ( de a szerkezet nyitható is ) medencerész is.

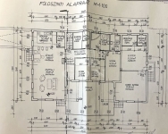
Az alaprajzokon minden építmény látható, elrendezéssel-méretekkel !

Fűtése cirkó, meleg víz 2 db. villanybojler, külső nyílászárók fa 2 rétegű üvegezéssel.
Tájolása: D-K ; D-Ny.

Az ingatlan per és tehermentes, birtokbaadás az adásvétel napjától számított maximum 90 nap.

Az ingatlan részletes ismertetése és bemutatása, előre egyeztetett időpontban lehetséges, amelyet nagyon rugalmasan kezelünk, akár HÉTVÉGÉN is.
További kérdéseivel kapcsolatban várom a jelentkezését.
Amennyiben Önnek a vásárláshoz szüksége lenne hitelre, babaváró kölcsönre, lakástakarékra, stb., kezdeményezheti a kapcsolatfelvételt bankfüggetlen hitelügyintézőinkkel, teljesen DÍJMENTESEN.
Közel 25 év szakmai tapasztalattal rendelkezem, eladó vagy kiadó ingatlana értékesítése vagy bérbeadása esetén, készséggel állok az Ön rendelkezésére is, keressen bizalommal.
Apolzan Magdalena

Apolzan Magdalena

Hívjon bizalommal

+36-70-908-Mutasd!

További hirdetéseim

Ingatlaniroda
GDN Ingatlanhálózat - SZIGET
+36 24 656 320