Ikerház Eladó Érd - Azonnal költözhető

Eladó Érd Ikerház
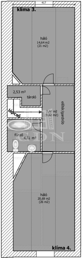
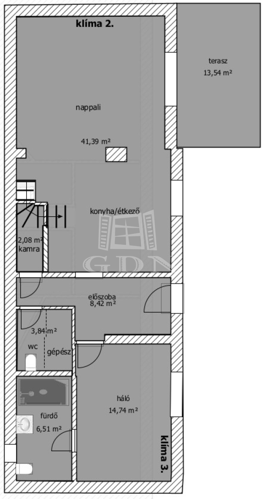
145 m2Alapterület 4 Szoba
119 000 000 Ft Ár
Hitelkalkuláció folyamatban... Loading
387220Azonosító
További adatok

200 m2 Telek

Utcai Kilátás

Felújított Állapot

Vegyes falazat Szerkezet

14 m2 Erkély/terasz

Egyéb Fűtés

Dupla komfort Komfort

Saját beálló Parkolás

Kiváló Tömegközlekedés

Amerikai konyhás

Van Kertkapcsolat

1980 Építés éve

Délkeleti Tájolás

Akár Otthon Start Programmal is megvásárolható!

Költözz be már holnap – felújított ikerház Érd szívében!

Megtaláltad, amit keresel: felújított, azonnal költözhető, modern otthon, saját kerttel és szuper elhelyezkedéssel!
Nem kell felújítással bajlódnod – csak hozd a bőröndöd, és már élvezheted is az új otthonod. ✨

145 m² lakótér + kb. 200 m² saját kert, csendes mellékutcában, pár perc sétára boltoktól, iskolától, tömegközlekedéstől.
Ideális választás családoknak, többgenerációs együttéléshez vagy bárkinek, aki nyugalomra és kényelemre vágyik.

Főbb extrák:
✅ Teljeskörű felújítás
✅ Szobánként klíma
✅ 3 háló + nappali + tágas étkező, konyha
✅ 3 WC, külön fürdők
✅ Zárt autóbeálló
✅ Alacsony rezsi

Lokáció: Érd központ – minden gyalog elérhető!
Stop Shop, SPAR, Aldi, vasútállomás, iskola, óvoda – minden itt van a közelben.

Ez az ingatlan ritka kombinációja a minőségnek, elhelyezkedésnek és azonnali költözhetőségnek – ne hagyd ki!

Megtekintés rugalmasan, akár hétvégén is!
Apolzan Magdalena

Apolzan Magdalena

Hívjon bizalommal

+36-70-908-Mutasd!

További hirdetéseim

Ingatlaniroda
GDN Ingatlanhálózat - SZIGET
+36 24 656 320