Családi ház Eladó Etyek - Alsóhegy utca

Eladó Etyek Családi ház
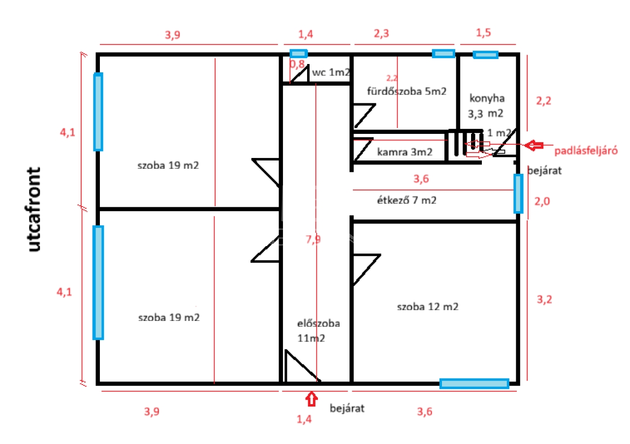
153 m2Alapterület 6 Szoba
69 990 000 Ft Ár
Hitelkalkuláció folyamatban... Loading
390146Azonosító
További adatok

722 m2 Telek

Kertre néző Kilátás

Felújítandó Állapot

Tégla Szerkezet

Egyedi kazán Fűtés

Dupla komfort Komfort

Saját beálló Parkolás

Tömegközlekedés

Nem Amerikai konyhás

Van Kertkapcsolat

1975 Építés éve

Etyeken, az Alsóhegy utcában eladó egy 153 m²-es, 6 szobás, felújítandó, téglaépítésű, cseréptetős családi ház, amely tökéletes alap egy modern, egyedi otthon kialakításához. ️

✨ Fiataloknak, családoknak és befektetőknek is szuper választás!
Két generáció számára is ideális: két külön bejáratú lakrész, rengeteg lehetőséggel! ‍‍‍

Befektetésnek is kiváló:
Az alsó lakrész könnyedén kiadható, éves szinten 1 800 000 – 1 900 000 Ft bevételt hozhat.
Etyeken nagy a kereslet, hiány van hosszútávra kiadó ingatlanokból, így gyorsan bérlőre talál! ️

Régi tipusú gázkazán
722 m²-es telek – ideális kerthez, pihenőhelyhez, játszórészhez
Összközműves, a telken garázs építhető
️ A kertben több autó is kényelmesen elfér, de az utcán és a ház előtt is lehet parkolni
Csendes, zöld környék, igazi békesziget

Fiatalos otthon, jó helyen, rengeteg lehetőséggel – csak rád vár! ✨

Hétvégén és ünnepnapokon is felveszem a telefont, ha nem vagyok elérhető visszahívom!
Gergicsné Veér Annamária

Gergicsné Veér Annamária

Hívjon bizalommal

+36-20-396-Mutasd!

További hirdetéseim

Ingatlaniroda
GDN Ingatlanhálózat - SZIGET
+36 24 656 320

Visszahívást kérek

Keressen bennünket