Családi ház Eladó Forráskút - Forráskút Szegedhez közeli végén

Eladó Forráskút Családi ház
113 m2Alapterület 3 + 1 Szoba
114 000 000 Ft Ár
Hitelkalkuláció folyamatban... Loading
348979Azonosító
További adatok

800 m2 Telek

Kertre néző Kilátás

Új Állapot

Tégla Szerkezet

10 m2 Erkély/terasz

Megújuló energia Fűtés

Összkomfort Komfort

Saját beálló Parkolás

Tömegközlekedés

Amerikai konyhás

Van Kertkapcsolat

2023 Építés éve

Nyugati Tájolás

FORRÁSKÚTI ÚJ,KULCSRAKÉSZ MAGÁNHÁZAK

Forráskúton kínálunk eladásra egy tervezett, új építésű földszintes családi házat, amely 113 m2-es lakóteret biztosít egy tágas, 800 m2-es telken. Az ingatlan jelenleg terv szinten van, de a kivitelezés kulcsrakész állapotban lesz megvalósítva, teljesen a leendő tulajdonos igényeire szabva.
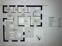
A ház elrendezése átgondolt és praktikus: a központi tér egy világos nappali, amely egybenyílik az étkezővel és az amerikai konyhával. Innen nyílnak a hálószobák, összesen három külön szoba, amelyek
ideálisak lehetnek gyerekeknek, vendégszobának vagy dolgozószobának. A mindennapi kényelmet szolgálja egy fürdőszoba, kamra és továbbá egy WC és kézmosóval ellátott háztartási helyiség is helyet kapott a tervben a bejárat közelében. Az étkező után egy teraszra léphetünk ki, amely tökéletes helyszíne lehet reggeli kávézásnak vagy baráti összejöveteleknek.

A ház korszerű építési megoldásokkal készül: Porotherm téglafalak és 15 centiméteres hőszigetelés gondoskodnak a stabilitásról és az energiahatékonyságról, míg a háromrétegű üvegezésű nyílászárók
biztosítják a jó hő- és hangszigetelést. A tetőszerkezet szeglemezes kialakítású, betoncseréppel fedve, a külső homlokzat pedig színezve és szigetelve készül el.
Természetesen minden közmű – víz, villany,csatorna – rendelkezésre áll.
A villany- és vízvezetékek kiépítése teljes mértékben előkészítve történik, így biztosítva a lámpák,
konnektorok, televízió és internet bekötésének lehetőségét. A fürdőszobai és konyhai kiállások szintén kialakításra kerülnek, valamint a riasztórendszer és a külső világítás is előkészített állapotban várja a tulajdonost. A fűtés és a hűtés kialakítása a vásárlóra van bízva, így szabadon választható hőszivattyú,vagy akár klíma is.

Ez az ingatlan tökéletes lehetőség azok számára, akik egy nyugodt, barátságos környezetben szeretnék megvalósítani álmaik otthonát. A nagy telek (800m2)számtalan lehetőséget kínál: kert, játszótér vagy akár medence is helyet kaphat rajta, miközben Forráskút békés hangulata és Szeged közelsége ideális kombinációt teremt a mindennapi élethez.
Gergicsné Veér Annamária

Gergicsné Veér Annamária

Hívjon bizalommal

+36-20-396-Mutasd!

További hirdetéseim

Ingatlaniroda
GDN Ingatlanhálózat - SZIGET
+36 24 656 320

Visszahívást kérek

Keressen bennünket