Vendéglátás Eladó Galgahévíz - Galgahévíz központi részén

Eladó Galgahévíz Vendéglátás
1 100 m2Alapterület 0 Szoba
135 000 000 Ft Ár
346265Azonosító
További adatok

Utcai Kilátás

Felújítandó Állapot

Tégla Szerkezet

Gáz (cirkó) Fűtés

Saját beálló Parkolás

Kiváló Tömegközlekedés

2002 Építés éve

Délnyugati Tájolás

SZÁLLODÁT VAGY MUNKÁSSZÁLLÓT SZERETNE? ITT A LEHETŐSÉG!

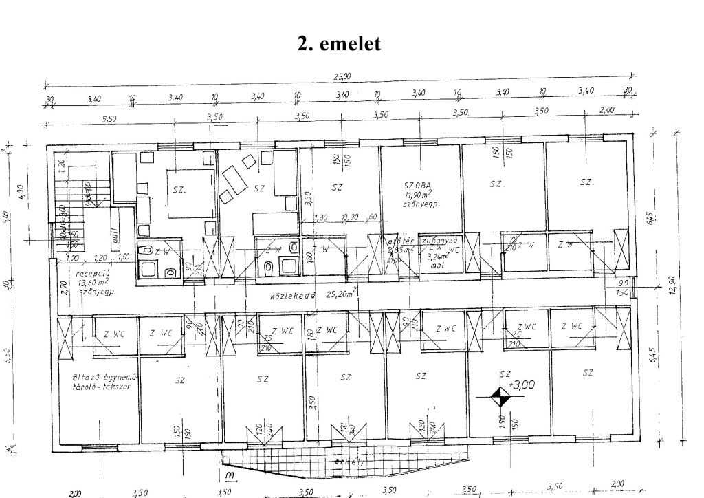
Megvételre kínálok Galgahévíz központi, de csendes részén, 2257 nm-es telken, délnyugati tájolású, bruttó 1150 nm-es, nettó 1100 nm-es, 26 szobás, tégla falazatú, vendéglátó egységet, éttermet, konferencia helyiséget tartalmazó hatalmas Hotel besorolású ingatlant.

Az épület 2002-ben épült, a földszinten korábban disco és vendéglátó egység működött. A felső 3 szint szerkezet kész állapotban van, valamint a fürdőszobákban és szociális helyiségekben elhelyezésre kerültek a víz kiállások és szennyvíz elvezetéshez szükséges egységek is. Elektromos hálózat mind a 4 szinten kiépítésre került.

Az épület gyakorlatilag bármilyen vendéglátási egységnek, szállodának, munkásszállónak alkalmas vagy a szintenként 275 nm-en minimum 4 lakás kialakítását teszi lehetővé.

Az ingatlan jelenleg raktár funkciót lát el, ez látható a belső fotókon is.

Tömegközlekedése kiváló, 1 perc sétára található buszmegálló, ahonnan rendszeres időközönként indulnak buszok, Aszód-Gödöllő-Hatvan-Budapest irányába, valamint a Telek pékség, mely kiváló minőségű pékárúval rendelkezik. 2-5 perc sétával elérhető boltok, iskola, óvoda, posta. Az ingatlantól 2000 méterre található a páratlan szépségű Bika-tó, mely a természet és a horgászat szerelmeseit is egyaránt várja.

AZ INGATLAN 100%-ban PER-, TEHER-, IGÉNYMENTES!

INGYENES hitel tanácsadás!

BANKFÜGGETLEN hitelcentrumunk minden elérhető bank és hitelintézet ajánlatát versenyezteti az Ön kedvéért, ráadásul DÍJMENTESEN.

Önnek nincs más dolga, mint elbeszélgetni munkatársunkkal, aki a hallott információk alapján versenyre hívja a bankokat, hogy Ön hosszú távon is a legjobb konstrukciót kaphassa. A legjobb ajánlatokból végül Ön választhatja ki a nyertest.

Munkatársaink sokéves szakmai tapasztalattal várják Önt, előre egyeztetve akár a normál munkaidő után is.

Amennyiben hirdetésem felkeltette érdeklődését, várom hívását, akár hétvégén is! S.S.
Gergicsné Veér Annamária

Gergicsné Veér Annamária

Hívjon bizalommal

+36-20-396-Mutasd!

További hirdetéseim

Ingatlaniroda
GDN Ingatlanhálózat - SZIGET
+36 24 656 320

Visszahívást kérek

Keressen bennünket