Családi ház Eladó Kecskemét - Felsőszéktó

Eladó Kecskemét Családi ház
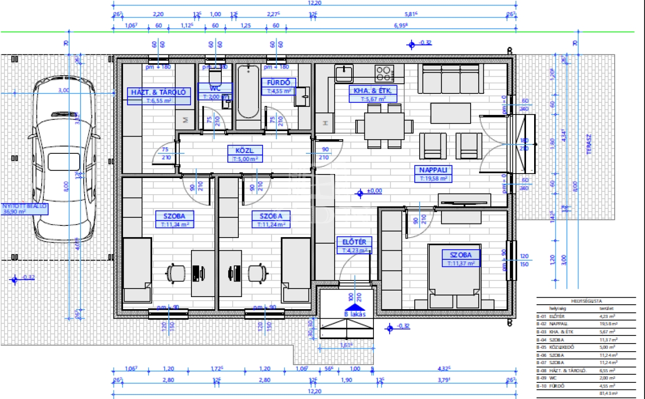
81 m2Alapterület 2 Szoba
81 500 000 Ft Ár
Hitelkalkuláció folyamatban... Loading
393231Azonosító
További adatok

500 m2 Telek

Kertre néző Kilátás

Új Állapot

Tégla Szerkezet

Hőszivattyú Fűtés

Összkomfort Komfort

Garázs/beálló vásárolható Parkolás

Tömegközlekedés

Amerikai konyhás

Van Kertkapcsolat

2027 Építés éve

Otthonok és megoldások!
Kecskemét Felsőszéktó területén, új építésű, 81 nm téglaépület, amerikai konyhás nappali + 1 szobás, klímás, fedett gépkocsibeállóval eladó. Ideális választás idősebb korosztálynak, vagy fiataloknak, akik nem szeretnének nagy kertet gondozni. Kivitelezésben szerződött partnerünk a mai kornak és igényeknek megfelelő, energia hatékony építő anyagokkal építi fel, vállalt határidőre otthonát. A fotók referencia munkáról készültek.
További részletekért, műszaki leírásért, a terület megtekintéséért várom hívását!
Kémeri-Szekernyés Tímea

Kémeri-Szekernyés Tímea

Hívjon bizalommal

+36-30-248-Mutasd!

További hirdetéseim

Ingatlaniroda
GDN Ingatlanhálózat - SZIGET
+36 24 656 320