Üzlethelyiség Eladó Ludányhalászi - Központhoz közeli

Eladó Ludányhalászi Üzlethelyiség
90 m2Alapterület 0 Szoba
11 980 000 Ft Ár
354906Azonosító
További adatok

Utcai Kilátás

Közepes Állapot

Vegyes falazat Szerkezet

Elektromos Fűtés

Saját beálló Parkolás

Tömegközlekedés

1960 Építés éve

Keleti Tájolás

Nógrád megyében, Magyarország egyik leghosszabb falujában, Ludányhalásziban ELADÓ!

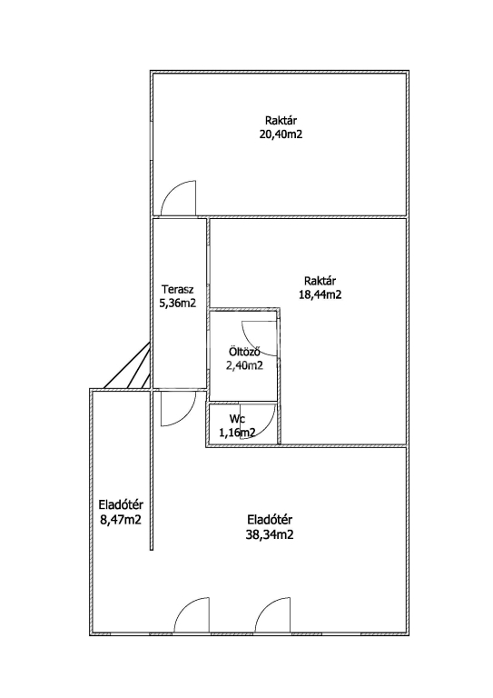
Egy 90 m2 es vegyes falazatú sátortetös cserépfedéses üzlethelyiség, amely ezidáig jól prosperáló élelmiszer kisboltként működött. Akár üzletként is tovább vihető, vagy megfelelő ráfordítás esetén, újra családi házzá alakítható.
Az ingatlan egy 642 m2 –es telek területen helyezkedik el, amelyen egy kisebb vendég ház van, akár falusi turizmus céljára is alkalmas lehet. A fő épület alatt helyezkedik el egy kb 10 m2-es száraz pince, amely teljes belmagasságú, ezért boros pincének, vagy élelmiszer tárolására is alkalmas. Ludányhalászi közvetlen közelében, folyik egyik határfolyónk az Ipoly és itt található egy üdülő területként használt 35 ha-os horgásztó is. Mind két hely közkedvelt a kirándulók és a horgászat szerelmesei számára is. Az egészségügyi,kulturális, és szociális létesítmények a település központjában találhatóak.
Tömegközelkedés szempontjából átlagosnak mondható, parkolási lehetőség udvaron biztosított.

A csendes környezetének köszönhetően, kifejezetten ajánlom azoknak, akik a nagyváros zaját megunva vidéken szeretnék saját elképzeléseik szerint kialakítani új otthonukat. A folyó és a tó közelsége miatt akár saját vállalkozásként is működtethető, horgászati turizmusra kifejezetten alkalmas.
Gergicsné Veér Annamária

Gergicsné Veér Annamária

Hívjon bizalommal

+36-20-396-Mutasd!

További hirdetéseim

Ingatlaniroda
GDN Ingatlanhálózat - SZIGET
+36 24 656 320

Visszahívást kérek

Keressen bennünket