Családi ház Eladó Mende - Pusztaszentistván

Eladó Mende Családi ház
110 m2Alapterület 4 Szoba
119 900 000 Ft Ár
Hitelkalkuláció folyamatban... Loading
393780Azonosító
További adatok

885 m2 Telek

Kertre néző Kilátás

Újszerű Állapot

Tégla Szerkezet

24 m2 Erkély/terasz

Gáz (cirkó) Fűtés

Dupla komfort Komfort

Saját garázs Parkolás

Kiváló Tömegközlekedés

Nem Amerikai konyhás

Van Kertkapcsolat

1990 Építés éve

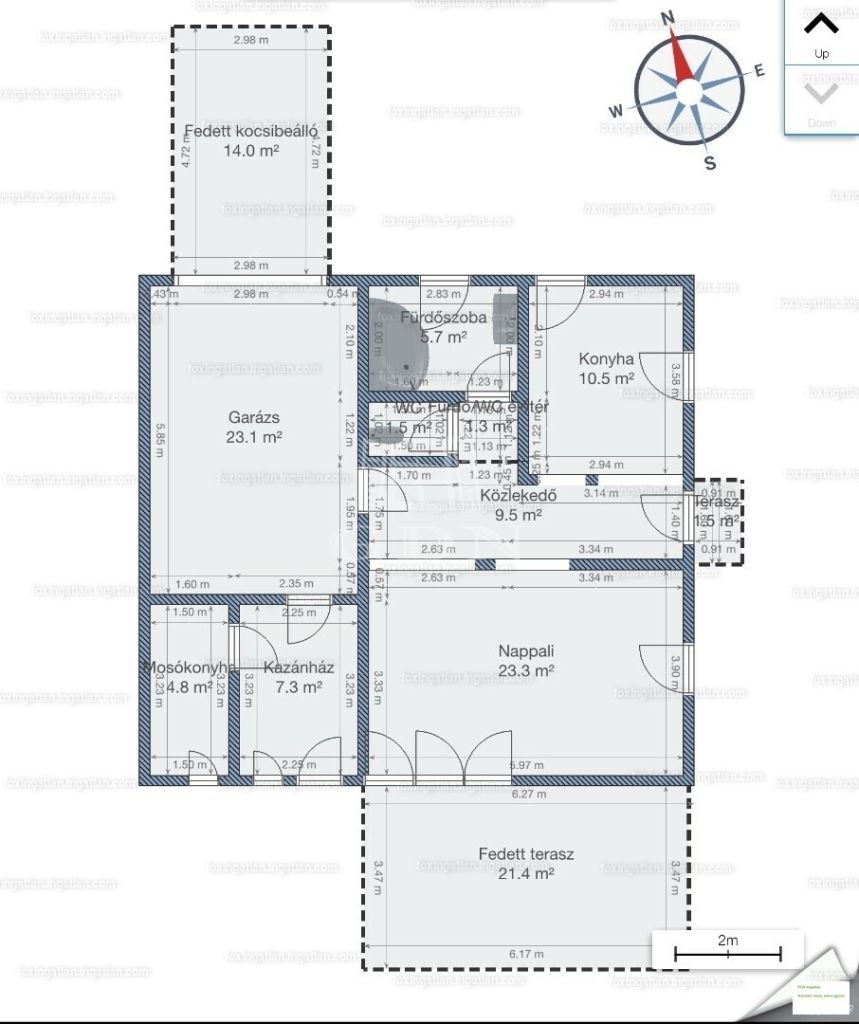
Eladó egy önálló 2 szintes, 110 m, 4 szobás családi ház Mende, Pusztaszentistván legszebb részén, lenyűgöző zöldövezetben, csendes utcában.

Az épület a 90-es években beton alapra, tégla falazattal épült, külső szigeteléssel ellátott, betoncserép tetőzettel rendelkezik (110 nm). A parkosított kertben (885 nm) medence, a kert végében kutya kennel, tárolók és baromfi tartásra kialakított alkalmas udvarrész is található a málna, eper és veteményes kert mellett.
Az előkertben egy fedett autóbeálló valamint még egy gépkocsi beálló is található.
Az ingatlanba lépve az egy légtérben található közlekedő, konyha-étkező, nappali részre érkezünk. Innen nyílik egy sarokkádas fürdőszoba, egy mellékhelyiség, a lépcsőház az emeletre, illetve a házban lévő fűtött garázs felőli bejárat.
A nagyméretű műanyag ablakoknak köszönhetően az egész élettér világos és barátságos. A nappaliból egy fedett terasz biztosítja a kertkapcsolatot.
Az emeleti szinten két félszoba, egy fürdő w.c.-vel, valamint egy erkélyes hálószoba kapott helyet, kilátással a Gödöllői dombságra.
A garázson keresztül érhető el a mosókonyha és kazánház ahonnan szintén kiléphetünk a kertbe, valamint a nagyméretű spájz is.
Az épület fűtését radiátoron keresztül gázkazán, elektromos kazán biztosítja, valamint a nappaliban található gázkandalló.

Az ár tartalmazza a teljes, igényes belső berendezést valamint a kerthez tartozó összes berendezést!!!

Mende település a 31-es főút mentén található az agglomerációban, Budapest határától 15 km-re a központtól 35 km-re. Csendes, barátságos kisváros 4250 fős lélekszámmal.
Megközelíthető elővárosi vasúttal (Kelti pu) és busszal (Stadion busz pu) is.
Településen belül helyi járat üzemel.
Közelben bölcsőde, óvoda található.
Ez az a hely, ahol az őzek, nyulak, fácánok napi vendégek ahol a csend és nyugalom nem csak egy hangzatos szólam.

Amennyiben valódi nyugalomra vágyik itt megtalálja.

Megtekintés időpont egyeztetéssel!
Csík Zsolt

Csík Zsolt

Hívjon bizalommal

+36-30-641-Mutasd!

További hirdetéseim

Ingatlaniroda
GDN Ingatlanhálózat - SZIGET
+36 24 656 320

Visszahívást kérek

Hasonló ingatlanok

Keressen bennünket