Iroda Kiadó Miskolc - Kis-Hunyad utca

Kiadó Miskolc Iroda
216 m2Alapterület 0 Szoba
743 040 Ft /Hó Ár
386567Azonosító
További adatok

Utcai Kilátás

Újszerű Állapot

Blokkos szerkezet Szerkezet

Gáz (cirkó) Fűtés

Utcán, közterületen Parkolás

Emelet Földszint

Nincs Lift

Tömegközlekedés

1978 Építés éve

Déli Tájolás

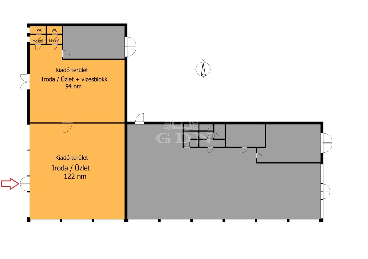
Kitűnő elhelyezkedésű, újszerű esztétikai és műszaki állapotú, 216 nm-es iroda/üzlethelyiség kiadó!

Az ingatlan Miskolcon, a Kis-Hunyad utcában, a belvárostól pár percre található.
Az iroda fszt+1 emelet tagoltságú, utcafrontja nagy üvegfelülettel rendelkezik, így kiválóan reklámozható.
Az ingatlan magas minőségű nyílászárókkal és beltéri ajtókkal szerelt, a gazdaságos fűtést gázcirkó kazán látja el radiátoros hőleadással, valamint a helyiségek légkondicionálóval is fűthetők és hűthetők.
Az ingatlan irodai célon kívül alkalmas lehet pl. magánrendelőnek, vagy bemutatóteremnek is.
Az épület közvetlen parkolási lehetőséggel rendelkezik.

Igény szerint a méret 366 nm-ig bővíthető, mely 244 nm földszinti, üvegportálos üzlethelyiséget, valamint 122 nm emeleti irodákat tartalmazhat.

Ár: 3440 Ft/nm+Áfa/hó (rezsiköltséget az ár tartalmazza).
A hirdetésben megadott bérleti díj a rezsiköltséget tartalmazza!

Érdeklődése esetén további információkért és megtekintés egyeztetéséhez, keressen bizalommal!


Ha eladó vagy kiadó ingatlana van és segítségre szorul az ingatlanpiacon, keresse irodánkat!
Hitel, CSOK, értékesítés, értékbecslés és minden, ami ingatlan!
Kémeri-Szekernyés Tímea

Kémeri-Szekernyés Tímea

Hívjon bizalommal

+36-30-248-Mutasd!

További hirdetéseim

Ingatlaniroda
GDN Ingatlanhálózat - SZIGET
+36 24 656 320

Visszahívást kérek

Keressen bennünket