Lakás (panel) Eladó Komárom - Laktanya köz

Eladó Komárom Lakás (panel)
71 m2Alapterület 3 Szoba
74 900 000 Ft Ár
Hitelkalkuláció folyamatban... Loading
388336Azonosító
További adatok

Utcai Kilátás

Új Állapot

Beton Szerkezet

6 m2 Erkély/terasz

Hőszivattyú Fűtés

Összkomfort Komfort

Garázs/beálló vásárolható Parkolás

Emelet 2

Van Lift

Tömegközlekedés

Amerikai konyhás

Nincs Kertkapcsolat

2025 Építés éve

Északkeleti Tájolás

ÚJ ÉPÍTÉSŰ LAKÁS KOMÁROMBAN!

-modern
-kulcsrakész
-energiatakarékos
-akadálymentesített

Komáromban a városközponthoz, buszpályaudvarhoz és vasútállomáshoz közel, a Laktanya köz 7. sz. alatt kerül kialakításra egy 24 lakásos társasház, mely két ütemben (12-12 lakással) készül el.

A négyszintes épületben található felvonó akadálymentesen is megközelíthető. A földszinten kettő, az első és második emeleten négy-négy, illetve a legfelső szinten 2 db penthouse lakás kerül kialakításra.

Minden lakáshoz vásárolható önálló, földszinti tároló, valamint a zárt udvarban autóbeálló.
-Felszíni beálló: 2.000.000 Ft/ db
-Tároló: 1.000.000 Ft/ db

Az épület teljes szerkezete vasbeton kéregelemes (Leier) technológiával készül. Az energetikai követelményeknek való megfelelést a megfelelő vastagságú hőszigetelés, korszerű nyílászárók és épületgépészeti rendszer biztosítja.


Az épület homlokzaton 20 cm EPS szigetelés készül. A lapostetőn minimum 22 cm vastag EPS hőszigetelés, a terasztetőn minimum 15 cm PIR hőszigetelés készül.

Az épületbe laminált parketta burkolat és mázas kerámia burkolat kerül beépítésre. Teraszokon fagyálló, csúszásmentes greslap burkolat készül. A lépcsőházakban és a közlekedési útvonalakon szintén csúszásmentes, greslap burkolat lesz. A tetőteraszok burkolata 3 cm vastag nyílthézagos fagyálló kő burkolat.

A nyílászárók 3 rétegű hőszigetelő üvegezéssel ellátottak. Ezen nyílászárók minimum „u” értéke 0,81 W/m2K. A nyílászárók fehér színben kerülnek kivitelezésre.

Az épületben a villamos mérés lakásonként főmérővel történik.

A lakásokban a wc-k és a fürdőszobák szellőzésére gépi elszívás kerül beépítésre.

Az épület fűtését központilag levegő-víz hőszivattyú rendszer biztosítja a mennyezet hűtés-fűtés által, kiegészítő padlófűtéssel.

A főbejáratnál elhelyezett kaputelefon lakásonként biztosít csengetési lehetőséget, a mágneszárral ellátott külső főbejárati ajtó minden lakásból távműködtetéssel nyitható.

Tervezett átadás 2026. első negyedév

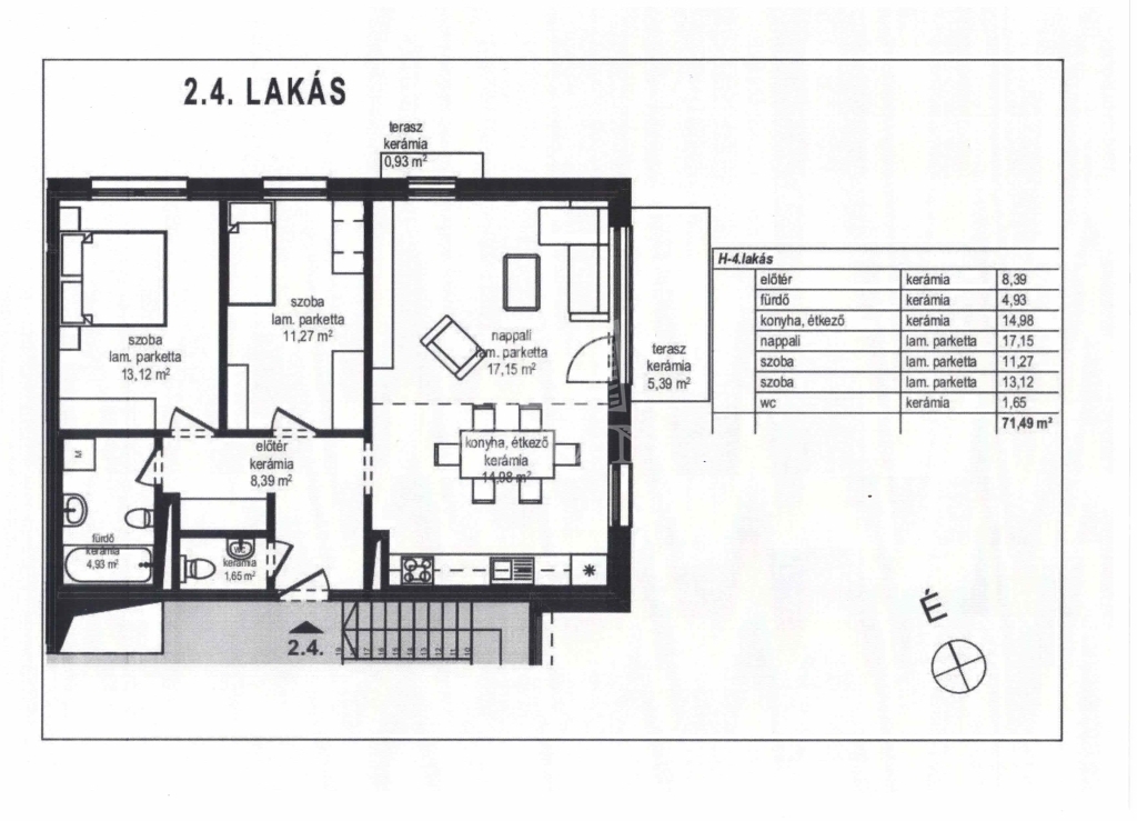
2.4. lakás
- nappali + 2 szoba
- 77,81 m2
- 74.900.000 Ft
Gergicsné B. Enikő

Gergicsné B. Enikő

Hívjon bizalommal

+36-30-941-Mutasd!

További hirdetéseim

Ingatlaniroda
GDN Ingatlanhálózat - SZIGET
+36 24 656 320