Családi ház Eladó Szentendre - Bükköspart

Eladó Szentendre Családi ház
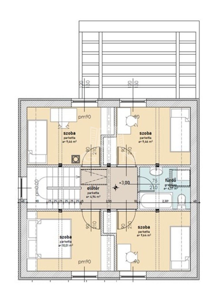
115 m2Alapterület 6 Szoba
265 000 000 Ft Ár
Hitelkalkuláció folyamatban... Loading
384046Azonosító
További adatok

350 m2 Telek

Kertre néző Kilátás

Új Állapot

Tégla Szerkezet

30 m2 Erkély/terasz

Hőszivattyú Fűtés

Összkomfort Komfort

Saját beálló Parkolás

Tömegközlekedés

Amerikai konyhás

Van Kertkapcsolat

2025 Építés éve

Szentendrén, kiváló lokációban, a Bükkös-patak parton eladó a fotókon látható, 2025-ös építésű, két szintes, nappali plusz 5 szobás családi ház.

A nívós építész által tervezett házat alacsony fenntartási költségek, magas minőség és nyugodt, otthonos, igazi Cosy hangulat jellemzi.

A fűtésről energiahatékony padlófűtéssel kombinált Remeha hőszivattyú, a hűtésről pedig fan coil rendszer gondoskodik. Az energia hatékonyságot ezek mellett napelem rendszer segíti és a nappaliban modern kivitelezésű hangulatos cserépkályha is található külső levegő áramoltatással.
A ház energetikai minősítése: A++ Mindenhol természetes anyagokkal, fa padlóval, tölgyfa konyhabútorral és mészkő burkolattal találkozunk.

Környék is nagyon hangulatos, a patak partján mókusok mellett sétálva, bicikli úton biciklizve indulhat a nap, miközben a közeli híres pékségbe térhetünk be friss reggeliért. A továbbiakban pedig a közeli 5*-os uszodában egy wellness élmény koronázhatja meg a napot.

Az iskolák, óvodák, gimnáziumok is ideális közelségben vannak.

Ha felkeltette érdeklődését és szeretné személyesen is látni, várom hívását a hét bármely napján és szívesen megmutatom Önnek.

Amennyiben nem rendelkezik a teljes vételárral, bankfüggetlen hitelcentrumunk minden elérhető bank és hitelintézet ajánlatát versenyezteti az Ön kedvéért, ráadásul díjmentesen. Önnek nincs más dolga, mint elbeszélgetni munkatársunkkal, aki a hallott információk alapján versenyre hívja a bankokat, hogy Ön hosszú távon is a legjobb konstrukciót kaphassa. A legjobb ajánlatokból végül Ön választhatja ki a nyertest. Munkatársaink sokéves szakmai tapasztalattal várják Önt, előre egyeztetve akár a normál munkaidő után is.
Kémeri-Szekernyés Tímea

Kémeri-Szekernyés Tímea

Hívjon bizalommal

+36-30-248-Mutasd!

További hirdetéseim

Ingatlaniroda
GDN Ingatlanhálózat - SZIGET
+36 24 656 320