Lakás (csúsztatott zsalu) Eladó Budapest II. kerület - Margit utca

Eladó Budapest II. kerület Lakás (csúsztatott zsalu)
138 m2Alapterület 4 Szoba
450 000 000 Ft Ár
Hitelkalkuláció folyamatban... Loading
378262Azonosító
További adatok

Utcai Kilátás

Új Állapot

Csúsztatott zsalu Szerkezet

26 m2 Erkély/terasz

Hőszivattyú Fűtés

Összkomfort Komfort

Garázs/beálló vásárolható Parkolás

Emelet 2

Van Lift

Kiváló Tömegközlekedés

Amerikai konyhás

Nincs Kertkapcsolat

2024 Építés éve

Déli Tájolás

Eladó új építésű okos otthon Budapest szívében a 2. kerületben, közel a Margit hídhoz!

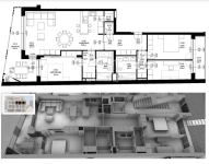
Ez a modern, 138 m²-es lakás ideális választás mindazok számára, akik a kényelmet a stílust és a praktikusságot keresik egy prémium környezetben.

Főbb jellemzők:

✅Új építésű, 5 lakásos ház 2. emeletén
✅Tágas, világos amerikai konyhás nappali és 3 hálószoba
✅2 fürdőszoba a maximális kényelem érdekében
✅Két terasz összesen 26 m² a kültéri pihenésre és szórakozásra
✅Okos otthon rendszer, amely lehetővé teszi a teljes kontrollt az otthona felett
✅Hőszivattyús rendszer, plafon- és padlófűtés a hatékony és kényelmes fűtésért
✅Közös, csendes kert, medencével – tökéletes hely a pihenésre
✅Teremgarázs vásárlási lehetőség
✅Kiváló elhelyezkedés:

Mindössze pár perc sétára a Margit-szigettől a Komjádi Uszodától, valamint a Lukács Fürdőtől.
Közvetlen közelben iskolák, kórház, posta, templom a Mammut bevásárlóközpont, piac, és minden, amire szüksége lehet.
Kiváló közlekedési lehetőségek, így bárhova gyorsan elér!

A lakás kiválóan átgondolt, ha Budapest belső kerületeiben keres egy kényelmes otthont ez az ingatlan minden részletében tökéletes.

Hívjon és nézze meg személyesen!
Apolzan Magdalena

Apolzan Magdalena

Hívjon bizalommal

+36-70-908-Mutasd!

További hirdetéseim

Ingatlaniroda
GDN Ingatlanhálózat - SZIGET
+36 24 656 320