Lakás (csúsztatott zsalu) Eladó Budapest VI. kerület - Podmaniczky utca

Eladó Budapest VI. kerület Lakás (csúsztatott zsalu)
79 m2Alapterület 3 Szoba
144 500 000 Ft Ár
Hitelkalkuláció folyamatban... Loading
392614Azonosító
További adatok

Utcai Kilátás

Felújított Állapot

Beton Szerkezet

49 m2 Erkély/terasz

Házközponti egyedi mérővel Fűtés

Összkomfort Komfort

Utcán, közterületen Parkolás

Emelet 1

Van Lift

Tömegközlekedés

Nem Amerikai konyhás

Nincs Kertkapcsolat

1981 Építés éve

Közös költség 28 000 Ft

Nyugati Tájolás

Teljes körűen felújított, 79 m²-es + 49 m2 terasz, két hálószobás lakás Nyugati térhez közel eladó. Azonnal költözhető.
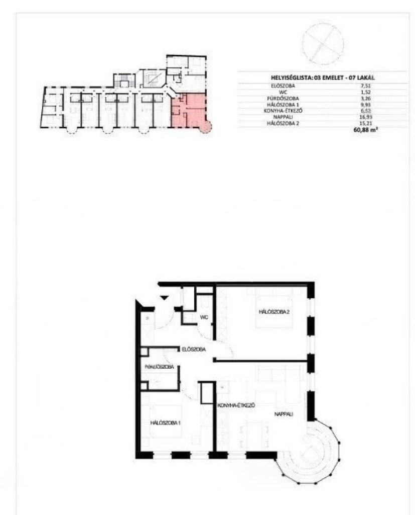
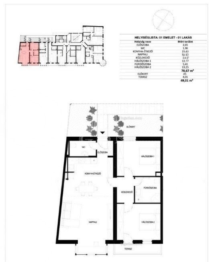
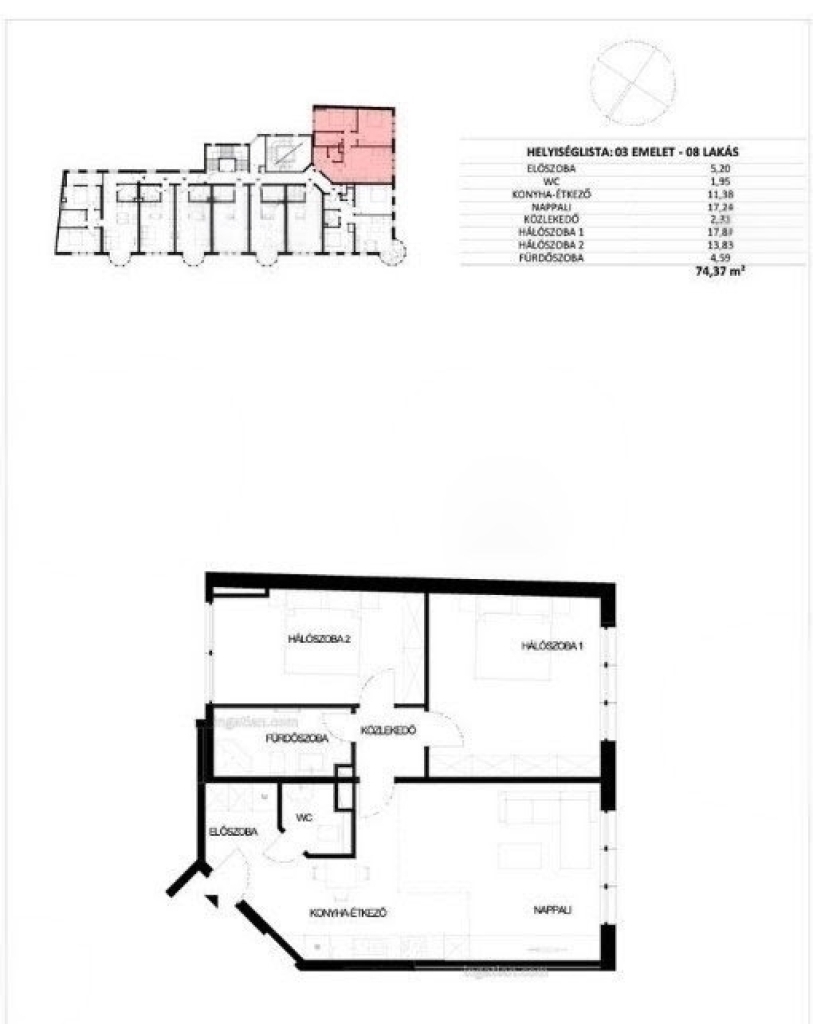
További alaprajzok különböző méretű, elérhető lakásokról a hirdetésben! 1. és 3. emeleten találhatóak, kérlek írj vagy hívj a részletekért.
Ideális választás családoknak, irodának, befektetőknek.

Ingatlan főbb jellemzői:
✅ Két külön hálószoba, amerikai konyhás nappali, fürdőszoba és külön WC/fürdő.
✅ Panorámás városi kilátás, ritkaság a központi kerületben.
✅ Ízléses, világos színek a tágas tér érzetéhez.
✅ Minőségi anyagok: Kronospan vízálló laminált padló, STN Rockstone burkolatok, Roca szaniterek, Hansgrohe csaptelepek.
✅ Kétrétegű alumínium ablakok, RC3 minősítésű biztonsági ajtó, prémium Hörmann beltéri ajtók.
✅ Bosch gázkazán, Wi-Fi-vezérelt Hisense split klíma minden helyiségben, elektromos törölközőszárító a fő fürdőszobában.
✅ Nagy sebességű optikai internet a lakásban.

Épület jellemzői:
✅ Teljesen felújított, 8 emeletes, modern homlokzattal és csendes lifttel.
✅ Korszerűsített közművek, biztonságos bejárat, tűzvédelmi rendszer, kaputelefon.
✅ Egyedi közműórák a fogyasztás ellenőrzéséhez.

Elhelyezkedés – 1064 Budapest, Podmaniczky u, VI. kerület:
✅ 400 m a WestEnd City Center
✅ 550 m az Andrássy úttól (UNESCO világörökségi helyszín)
✅ 800 m a Nyugati pályaudvartól
✅ 1,8 km a Parlamenttől és a Dunától

Kényelmes belvárosi élet, gyors hozzáféréssel tömegközlekedéshez, üzletekhez, éttermekhez és kulturális helyszínekhez — mindez egy csendes, könnyen megközelíthető környéken.

Ez a ritka lehetőség Budapest VI. kerületében kiemelkedő kialakításával, panorámás kilátásával és kiváló elhelyezkedésével vár!

Rugalmasan nézhető!

B.Zs.
Apolzan Magdalena

Apolzan Magdalena

Hívjon bizalommal

+36-70-908-Mutasd!

További hirdetéseim

Ingatlaniroda
GDN Ingatlanhálózat - SZIGET
+36 24 656 320