Családi ház Eladó Gödöllő - Százszorszép utca

Eladó Gödöllő Családi ház
245 m2Alapterület 8 Szoba
289 900 000 Ft Ár
Hitelkalkuláció folyamatban... Loading
389062Azonosító
További adatok

1450 m2 Telek

Udvari Kilátás

Felújított Állapot

Tégla Szerkezet

30 m2 Erkély/terasz

Gáz (cirkó) Fűtés

Dupla komfort Komfort

Saját garázs Parkolás

Tömegközlekedés

Amerikai konyhás

Van Kertkapcsolat

2004 Építés éve

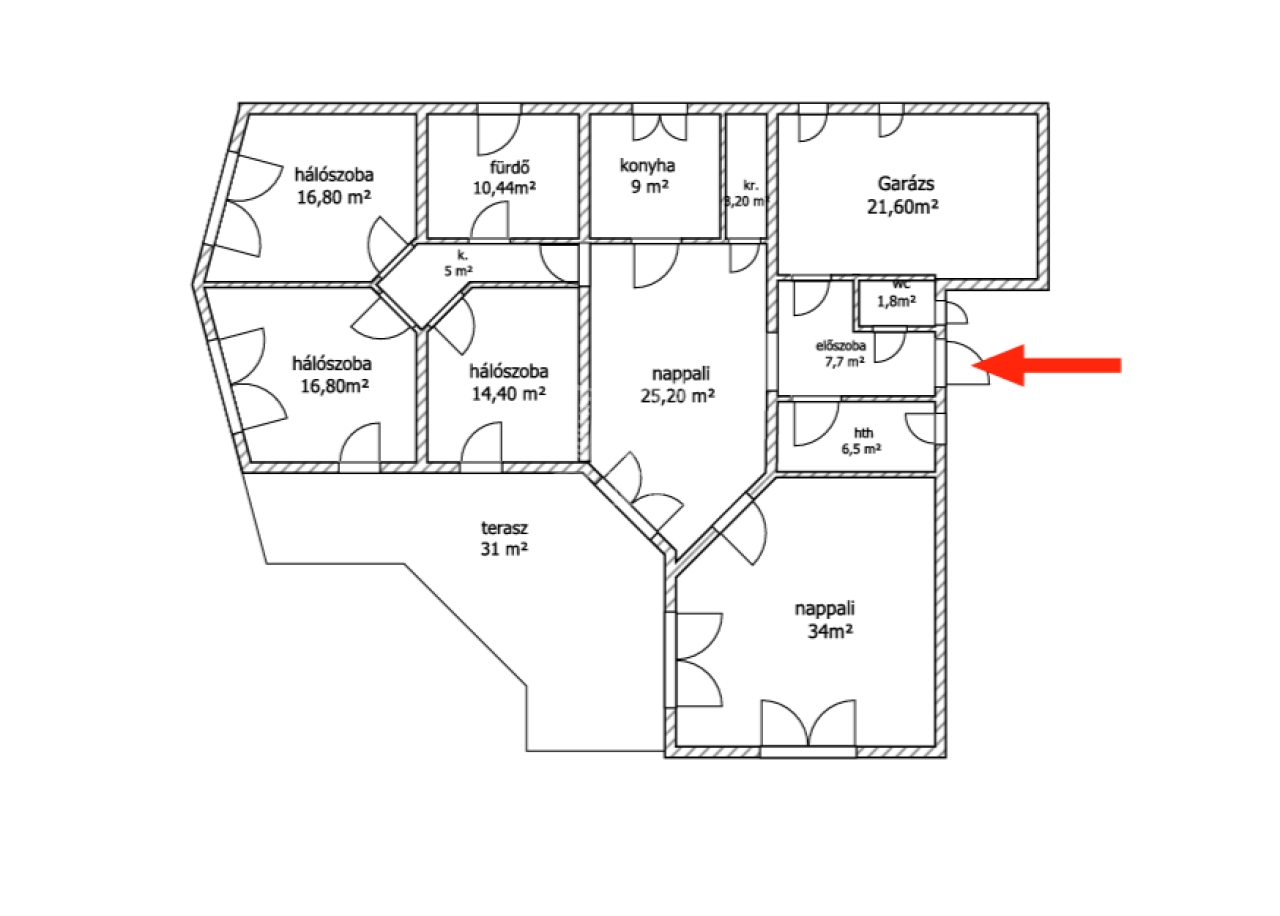
Eladásra kínálok Gödöllő kedvelt, kertvárosias részén, egy 7 szobás, földszint+beéíptett tetőteres családi házat.
Szerkezete: tégla 36 cm Porotherm.
Tető: sátor tető, cserép fedéssel.
Felosztása:
- földszint (150 nm): előszoba, fürdőszoba, wc, amerikai konyhás nappali,spájz, közlekedő, 5 hálószoba.
- tetőtér (98 nm)r: közlekedő, konyha, fürdőszoba, wc, 2 hálószoba.
A nappaliból a beépített (téli kert szerű) teraszra érkezünk ki, amely hozzávetőleg 30 nm nagyságú.
Extrák: udvarban egy különálló kis ház található, ahol elektromosság került bevezetésre, szintén tégla épület.
Saját garázs. Kertben szaleti.
6 db hűtő fűtő klíma.
Riasztórendszer.
2 elektromos nagykapu.
Locsolórendszer.
Redőny, szúnyoghálóval.
5 éve komplett villany és vízvezeték felújítás, tetőtér beépítésére is ekkor került sor.
A fűtésről a kondenzáció gázkazán gondoskodik. Padlófűtéses hőleadással.
Hívjon bizalommal, tekintsük meg együtt!
Köő Zsolt

Köő Zsolt

Hívjon bizalommal

+36-20-234-Mutasd!

További hirdetéseim

Ingatlaniroda
GDN Ingatlanhálózat - SZIGET
+36 24 656 320