Lakás (téglaépítésű) Eladó Szombathely - Luxus, kényelem

Eladó Szombathely Lakás (téglaépítésű)
86 m2Alapterület 4 Szoba
86 730 250 Ft Ár
Hitelkalkuláció folyamatban... Loading
358265Azonosító
További adatok

Kertre néző Kilátás

Új Állapot

Tégla Szerkezet

23 m2 Erkély/terasz

Hőszivattyú Fűtés

Dupla komfort Komfort

Saját beálló Parkolás

Emelet 1

Nincs Lift

Tömegközlekedés

Amerikai konyhás

Nincs Kertkapcsolat

2023 Építés éve

Délnyugati Tájolás

KÖLTŐK UTCÁJA, POÉTA- HÁZ

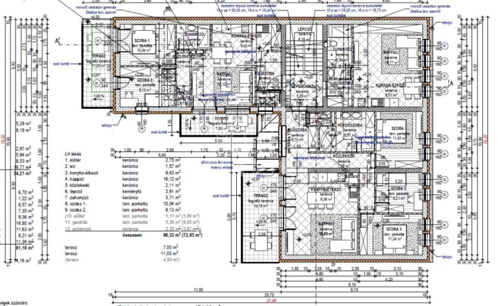
Szombathely belvárosában, a " költők utcái " városrészen csendes, átmenő forgalomtól mentes utcában hat lakásos társasházban, prémium kategóriás lakások, közös kertkapcsolattal eladók. Az ingatlanban mindenki számára alkalmas lakások épülnek. Egy szobástól - négy szobásig, 34 m2 - 86 m2 között. Különlegessége, hogy az első emelet egyik lakása belső kétszintes. Az ingatlan magas műszaki tartalommal készül. A lakásokat elválasztó falazat hanggátló téglából épül. Homlokzatára 15 cm vastag EPS szigetelés kerül, dryvit vakolattal. Műanyag, fokozottan hang-és hőszigetelt nyílászárói kívül barna belül fehér színű tokszerkezettel 3 rétegű üvegezéssel készül, redőnyökkel felszerelve. A tetőtérben Fakro ablakokra tervezett, hővédő árnyékolókkal. A fűtés, meleg vízellátás a mai kor követelményeinek leginkább megfelelő házközponti LG hőszivattyús fűtésrendszer kerül kialakításra, H tarifával, minden helyiségben padlófűtéses hőleadással. Napi és heti programozású digitális termosztátokkal. A fürdőszobákban a padlófűtés mellett, törölköző szárítós radiátorok lesznek kialakítva. A lakások nappalijában hűtő-fűtő klíma kerül. Villanyhálózata 3 x 16 Amper teljesítményű. Választható hideg-meleg burkolatok, szaniterek, csaptelepek, beltéri ajtók. Zárt, parkosított udvarában felszíni parkolók, fedett gépkocsibeállók vásárolhatók. Az ingatlan klasszikus, igényes külső megjelenése belvároshoz méltó. A hirdetésben szereplő lakás L4-es 86 m2
(nettó 73.52 m2) + 11 m2, 7 m2, 5,92 m2 teraszokkal első emeleti belső kétszintes. Amerikai konyhás nappali, 3 hálószoba, előszoba, közlekedő, gardrób, 2 fürdőszoba, külön wc került kialakításra.
Családi Otthon teremtési kedvezmény plusz hitel igényelhető. CSOK vásárlás esetén 5% áfa visszaigényelhető és teljes illeték mentesség.
Hitel ügyintézésben is segítünk.
Várható átadás: 2024. július 31.
Kémeri-Szekernyés Tímea

Kémeri-Szekernyés Tímea

Hívjon bizalommal

+36-30-248-Mutasd!

További hirdetéseim

Ingatlaniroda
GDN Ingatlanhálózat - SZIGET
+36 24 656 320