Lakás (téglaépítésű) Eladó Siófok - Lázár Vilmos utca

Eladó Siófok Lakás (téglaépítésű)
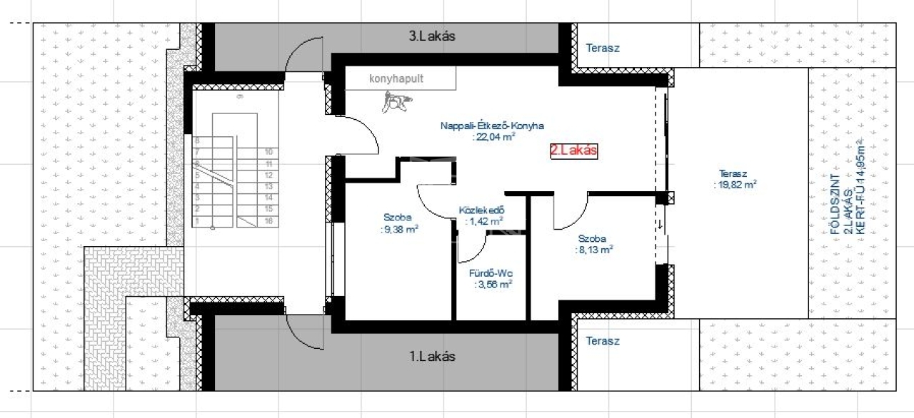
53 m2Alapterület 3 Szoba
69 500 000 Ft Ár
Hitelkalkuláció folyamatban... Loading
387633Azonosító
További adatok

Kertre néző Kilátás

Új Állapot

Tégla Szerkezet

20 m2 Erkély/terasz

Távfűtés egyedi mérővel Fűtés

Összkomfort Komfort

Saját beálló Parkolás

Emelet Földszint

Nincs Lift

Tömegközlekedés

Amerikai konyhás

Van Kertkapcsolat

2025 Építés éve

Közös költség 20 000 Ft

Siófok-Sóstón eladásra kínálunk dinamikusan fejlődő részén, a Balaton parthoz közel, 2025 tavaszán kezdődő 6 lakásos társasház földszintjén jó elrendezésű, nappali + két szobás 53 nm-es lakás nagy terasszal (20 nm) és kertkapcsolattal eladó, 2026. nyári átadással.

Az ingatlan tulajdonságai:
- A kivitelező megtekinthető referenciával, nemcsak a kivitelezésre fordít nagy figyelmet, de komoly hangsúlyt fektet a beépített anyagok, minőségére is.
- A lakások egyedi fűtéssel, saját mérőórákkal lesznek felszerelve, a parkosított kertben medence biztosítja a tulajdonosok kényelmét.

Ezek a feltételek valamint a kellemes környezet, a kis lakóközösség biztosítják, hogy aki itt vesz lakást, az el nem évülő értéket tudjon birtokában.

Nemcsak állandó otthonnak, nyaralásra, de befektetésnek is remek megoldás!

Ideális elhelyezkedés (vízpart közelsége, jó megközelíthetőség, családias környezet), ideális méret kedvező áron.

A lakáshoz a társasház zárt udvarán parkoló vásárolható: 3 M Ft

- Előnye még az ingatlannak, hogy egész évben kiadható a lakás, ami a vendégek számára ideális és folyamatos passzív jövedelmet biztosíthat.

Ezért is ajánlom befektetőknek, illetve családok részére, akik szeretik a Balatont!

Ne hagyja ki ezt a remek lehetőséget !

Amennyiben a veszprémi GDN Ingatlaniroda által kínált lakás, vagy bármely, a kínálatunkban található ingatlan felkeltette érdeklődését, forduljon hozzám bizalommal!

Ingatlanirodánk díjmentes, banksemleges hitelügyintézéssel, illetve ügyvédi tanácsadással is áll Ügyfeleink rendelkezésére!
Köő Zsolt

Köő Zsolt

Hívjon bizalommal

+36-20-234-Mutasd!

További hirdetéseim

Ingatlaniroda
GDN Ingatlanhálózat - SZIGET
+36 24 656 320