Ikerház Eladó Kóka - Felsővásár Tér

Eladó Kóka Ikerház
102 m2Alapterület 4 Szoba
63 900 000 Ft Ár
Hitelkalkuláció folyamatban... Loading
385764Azonosító
További adatok

560 m2 Telek

Kertre néző Kilátás

Új Állapot

Tégla Szerkezet

15 m2 Erkély/terasz

Hőszivattyú Fűtés

Összkomfort Komfort

Saját beálló Parkolás

Tömegközlekedés

Amerikai konyhás

Van Kertkapcsolat

2025 Építés éve

Délnyugati Tájolás

Eladó új építésű, energiahatékony ikerházfelek Kókán!

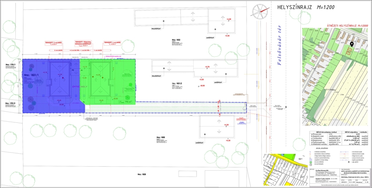
Kóka, Felsővásártér 61/A szám alatt, egy 1306 m²-es telken kínálunk eladásra két, nettó 102,24 m²-es családi házat, amerikai konyhás nappalival és három külön nyíló szobával.

A két ingatlan kizárólag a fedett autóbeállón keresztül érintkezik egymással.
Az első házhoz 470 m²-es, míg a hátsó házhoz egy 560 m²-es, kizárólagos használatú, lekerített telekrész tartozik.

Műszaki tartalom:

-Porotherm P30N+F téglából épült teherhordó falak
-Betonkoszorú, fa födémes tetőszerkezet
-10 cm-es lépésálló polisztirol lábazati szigetelés
-10 cm-es Austrotherm Grafitos homlokzati hőszigetelés
-25 cm ásványgyapot szigetelés a vízszintes födémen
-3 rétegű, 6 légkamrás műanyag thermo nyílászárók

Fűtés és energetika:

A ház fűtését modern, levegő-víz hőszivattyús rendszer biztosítja, mely a kiváló szigetelésnek köszönhetően rendkívül alacsony energiafelhasználást garantál.

Burkolatok, szaniterek, ajtók – választhatóak az alábbi keretösszegekig:

-Hidegburkolat: 3.000 Ft/m²
-Melegburkolat: 3.000 Ft/m²
-Beltéri ajtók: 30.000 Ft/db
-Fürdőkád: 40.000 Ft
-Csaptelep: 15.000 Ft/db

Magasabb árkategóriájú termékek választása esetén a különbözet önállóan finanszírozható.

Finanszírozás:

CSOK Plusz és Otthon Start támogatás elérhető!

Ingyenes hiteltanácsadás és CSOK Plusz ügyintézés

Bankfüggetlen hitelcentrumunk versenyezteti a bankokat az Ön érdekében

Egyedi, csak rajtunk keresztül elérhető kamat- és díjkedvezmények

Teljes körű ügyintézés – időt, pénzt és energiát spórolunk Önnek!

Tervezett átadás: 2026 második negyedéve

Tervdokumentációt és részletes műszaki leírást érdeklődő ügyfeleink számára készséggel biztosítunk.

Ha felkeltette érdeklődését az ajánlat, hívjon bizalommal!
Apolzan Magdalena

Apolzan Magdalena

Hívjon bizalommal

+36-70-908-Mutasd!

További hirdetéseim

Ingatlaniroda
GDN Ingatlanhálózat - SZIGET
+36 24 656 320