Telek Eladó Vác - Deákvár

Eladó Vác Telek
1 025 m2Alapterület 0 Szoba
65 000 000 Ft Ár
386441Azonosító
További adatok

Panoráma Kilátás

Tömegközlekedés

Eladó panorámás építési telek Vác, 1025nm, tökéletes befektetés vagy otthon vár Önre!

Kivételes lehetőség befektetők számára, vagy akik álmaik otthonát szeretnék megépíteni és a tökéletes telket keresik! A Pest vármegyei Vác város Deákvár városrészében kínálunk eladásra egy lenyűgöző, 1025 nm-es telket, amely csendes lakóövezetben helyezkedik el.

A telek Lke-1 építési övezetbe tartozik, ahol:
-a legnagyobb megengedett beépítettség 20%,
-a megengedett legnagyobb építménymagasság 5 m,
-a megengedett legkisebb építménymagasság 3 m,
-a megengedett legnagyobb beépítettség terepszint alatt 20%
-a legkisebb kialakítandó zöldfelület 75%
-a megengedett legnagyobb szintterületi mutató 0,4 m2/m2
-a beépítés jellemző módja szabadon álló

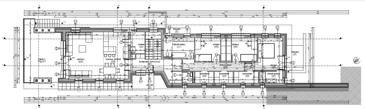
Az ár tartalmazza az elkészült építési terveket is.

A telek két úton is megközelíthető! Közművek az utcában a telek előtt.

Ez a telek nem csupán egy üres földterület, hanem egy lehetőség, hogy megvalósítsa elképzeléseit, legyen az egy családi ház vagy egy modern ingatlan, amely a jövő trendjeit követi.
A telek elhelyezkedése kiemelkedő, hiszen a környék ellátottsága kiváló, így minden szükséges szolgáltatás, mint boltok, iskola, óvoda, orvosi rendelő, gyógyszertár, piac a közelben találhatóak.

A kitűnő közlekedés révén Vác belvárosa, valamint a közeli települések is könnyedén megközelíthetők.

A telek tehermentes, így kifizetése esetén azonnal birtokba vehető, és a csendes környezet garantálja, hogy otthona nyugodt, kertvárosi lakás hangulatát tükrözze.

Az ingatlan környezete biztonságos, barátságos szomszédsággal rendelkezik, amely ideális helyszínt biztosít fiatalok számára, akik a város nyüzsgésétől távol, de mégis közel szeretnének élni mindenhez.

További információért forduljon Hozzám bizalommal!
Igény esetén videót küldök a ház látványtervéről.

Amivel segítjük az Ön ingatlanvásárlását:
-ingyenes hitelügyintézés
-jogi háttér
-földhivatali ügyintézés
-energetikai tanúsítvány elkészítése
-biztosítás
Köő Zsolt

Köő Zsolt

Hívjon bizalommal

+36-20-234-Mutasd!

További hirdetéseim

Ingatlaniroda
GDN Ingatlanhálózat - SZIGET
+36 24 656 320

Visszahívást kérek

Hasonló ingatlanok

Keressen bennünket