Lakás (téglaépítésű) Eladó Budapest XII. kerület - Kútvölgy panorámás lakás!

Eladó Budapest XII. kerület Lakás (téglaépítésű)
100 m2Alapterület 2 Szoba
130 000 000 Ft Ár
Hitelkalkuláció folyamatban... Loading
388132Azonosító
További adatok

1100 m2 Telek

Panoráma Kilátás

Felújítandó Állapot

Tégla Szerkezet

12 m2 Erkély/terasz

Egyéb Fűtés

Dupla komfort Komfort

Saját beálló Parkolás

Emelet 1

Legfelső emelet

Nincs Lift

Közepes Tömegközlekedés

Nem Amerikai konyhás

Van Kertkapcsolat

1940 Építés éve

Közös költség 65 000 Ft

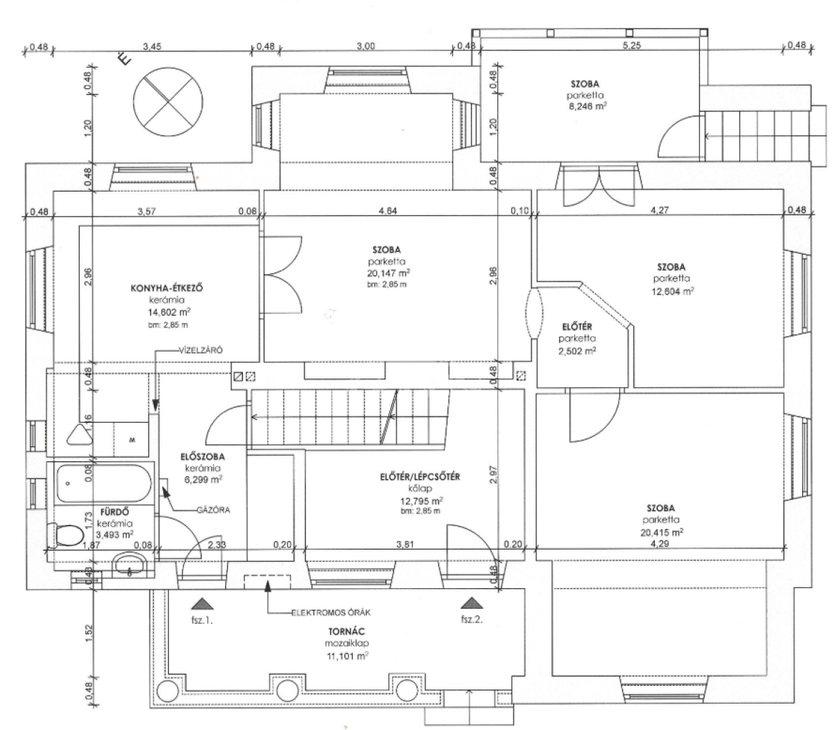
Eladásra kínálunk Kútvölgy kedvelt részén egy Ősfás 1100 m2 területen elhelyezkedő patinás házban található 100 m2 panorámás lakást. Az ingatlanhoz 150-200 m2 kertrész is tartozik.

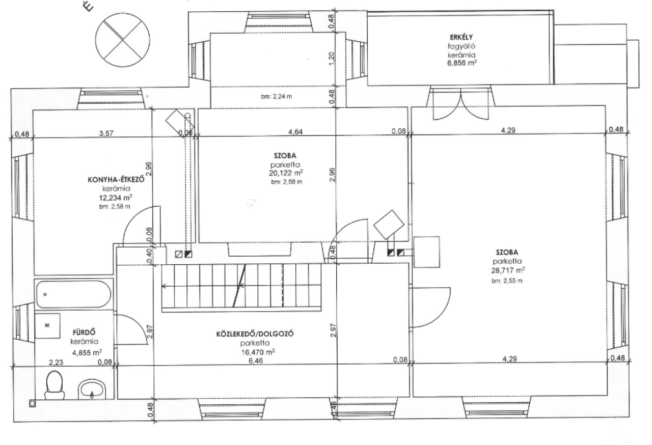
A 2 szobás 100 m2-es lakás az épület első emeltén helyezkedik el.

Lakás elrendezése:

Földszint:
• Lépcsőház - gardrob 12,7 m2
• Tornác 5,5 m2

Emelet:
• 2 db. szoba 20,1 m2 + 28,7 m2
• Közlekedő -dolgozó sarok 16,47 m2
• Konyha 12,2 m2
• Fürdőszoba 4,8 m2
• Erkély 7 m2

Kert:
• 150 - 200 m2 kertrész

A ház 1940-ben épült 55 cm vastag téglafalakkal. Az épület szerkezetileg jó állapotú – feljutása és korszerűsítése esedékes.

Az ingatlant fiatal pároknak -családoknak egyaránt ajánljuk.

A társasházban párhuzamosan kerül értékesítésre a hírdetésben szereplő 100 m2 és az az alatta található 93 m2 db.földszinti lakás.

Amennyiben Önnek a vásárláshoz szüksége lenne hitelre egyedi kedvezménnyel,kezdeményezheti a kapcsolatfelvételt bankfüggetlen hitelügyintézőinkkel, teljesen DÍJMENTESEN.

Az ingatlan részletes ismertetése és bemutatása előre egyeztetett időpontban lehetséges, melyet nagyon rugalmasan kezelünk, akár HÉTVÉGÉN is.

Amennyiben felkeltette az érdeklődését, további kérdéseivel kapcsolatban várom jelentkezését!
Kémeri-Szekernyés Tímea

Kémeri-Szekernyés Tímea

Hívjon bizalommal

+36-30-248-Mutasd!

További hirdetéseim

Ingatlaniroda
GDN Ingatlanhálózat - SZIGET
+36 24 656 320