Családi ház Eladó Székesfehérvár - Vezér utcáknál

Eladó Székesfehérvár Családi ház
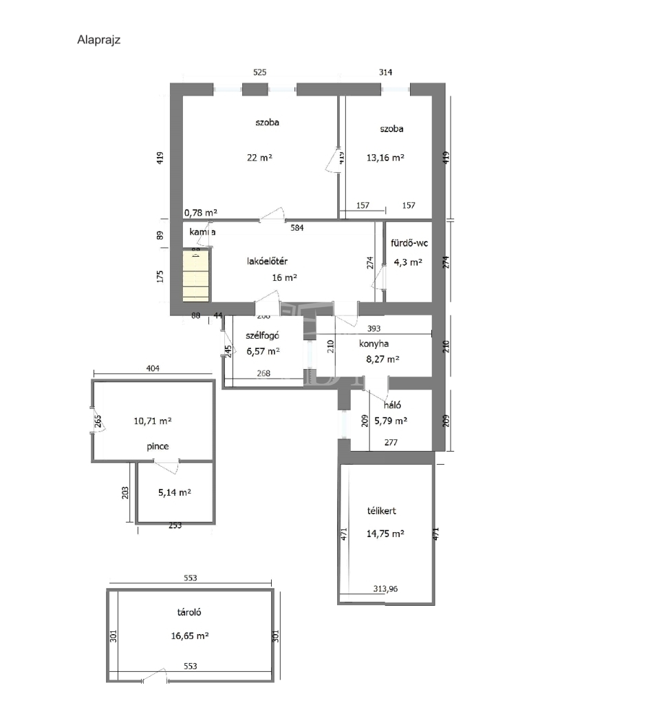
75 m2Alapterület 2 + 1 Szoba
61 900 000 Ft Ár
Hitelkalkuláció folyamatban... Loading
390318Azonosító
További adatok

681 m2 Telek

Kertre néző Kilátás

Jó állapotú Állapot

Tégla Szerkezet

Gáz (konvektor) Fűtés

Összkomfort Komfort

Saját garázs Parkolás

Tömegközlekedés

Nem Amerikai konyhás

Van Kertkapcsolat

1964 Építés éve

Vásárláson gondolkodik? Ne habozzon!
Használja ki az IGÉNYBE VEHETŐ lehetőségeket! Fix 3 % hitel igényelhető!
H-004679. Vezér utcák, központi részen, teljes közművel ellátott önálló, 681 m2-es sarok telken, karbantartott 76m2-es 2,5 szobás családi ház, garázzsal eladó.
A közelben orvos, iskola, óvoda, Bevásárló központok, üzletek, Ipari park, megtalálhatóak. Buszmegálló pár percre.
Elosztását tekintve:
A ház: kb 76 m2 hasznos alapterületű, kialakításra került egy tágas előtér, konyha ,étkező, 2,5 szoba, 1 fürdő, wc, kamra, garázs és tárolók-ólak.
Az ház 1970-es évek elején épült, beton lábazat, tégla falazattal, cserépfedéssel. A meleg vízellátásról gáz, a fűtésről gázkonvektorok valamint a nagyméretű cserépkályha gondoskodnak. A burkolatokat tekintve a szobában parketta, a közlekedőben, valamint a konyhában és a vizes helyiségekben járólap, található. A nyílászárók részben cserélve lettek műanyag típusúak, rajtuk redőny és szúnyogháló található.
A telek körbekerített, található még egy garázs, és kb 40m2 melléképület. Az ingatlan az egyik utcafrontról személyi bejárattal rendelkezik, a másik oldalon gépkocsi bejárat és a garázs. Az udvar hátsó részén gazdasági épületek gyümölcsfák és veteményes található.
Eladási irányár: 61.900.000,- Ft
A házak adottságainak, fekvésének köszönhetően alkalmas lakhatáson kívül, vállalkozásra, üzleti vagy befektetési célra, hiszen akár bérbe adható, vagy üzlet, szolgáltatás (pl: fodrász, kozmetika, irodai tevékenység….) kialakítható.
A ház a kényelmes otthont biztosít a lakók számára, mind a belső lakrészben, mind a kert, udvar, illetve a terasz területén. A vásárláshoz a jelenleg időszerű családok otthonteremtésére vonatkozó támogatás igénybe vehető (Otthon Start fix 3 % hitel , Jelzáloghitel, Babaváró, Piaci hitel……)
Ha felkeltette érdeklődését, hívjon bizalommal,(hétvégén is) éljen ingyenes, személyre szabott hitelügyintézés szolgáltatásunkkal. Segítünk továbbá adásvételhez szükséges ügyvédi közreműködésben, energetikai tanúsítvány, valamint értékbecslés elkészítésében.

For English details please send us a message or an e-mail, thank you.
Köő Zsolt

Köő Zsolt

Hívjon bizalommal

+36-20-234-Mutasd!

További hirdetéseim

Ingatlaniroda
GDN Ingatlanhálózat - SZIGET
+36 24 656 320