Lakás (téglaépítésű) Eladó Baja - Szentháromság tér

Eladó Baja Lakás (téglaépítésű)
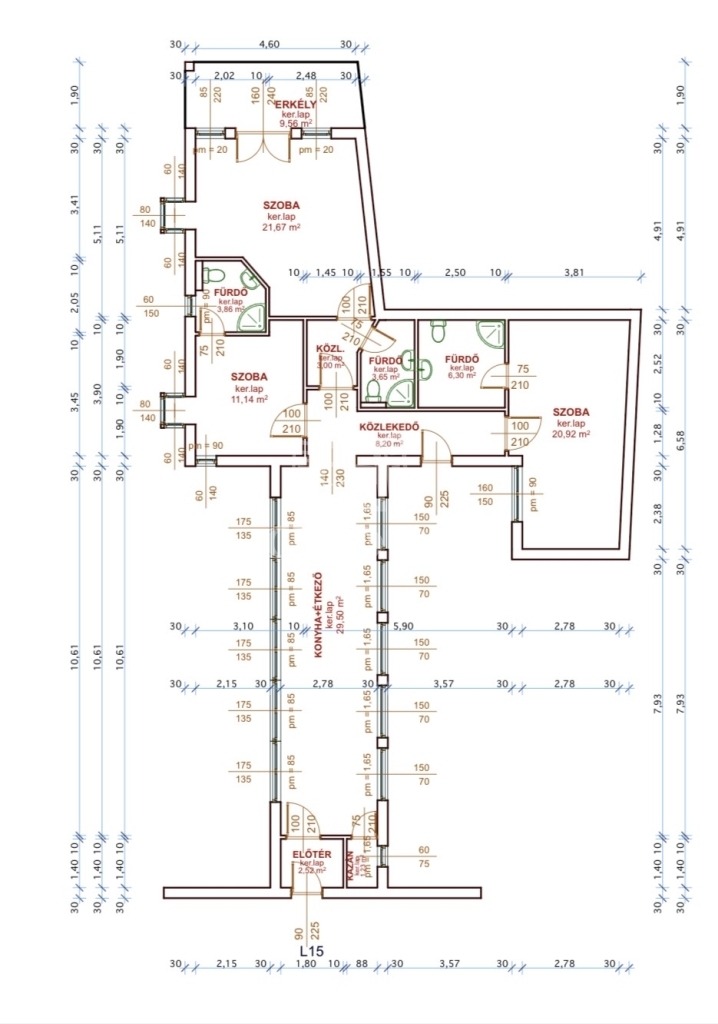
111 m2Alapterület 3 Szoba
89 900 000 Ft Ár
Hitelkalkuláció folyamatban... Loading
393959Azonosító
További adatok

Utcai Kilátás

Újszerű Állapot

Tégla Szerkezet

10 m2 Erkély/terasz

Házközponti egyedi mérővel Fűtés

Dupla komfort Komfort

Garázs/beálló bérelhető Parkolás

Emelet 2

Van Lift

Kiváló Tömegközlekedés

Nem Amerikai konyhás

Nincs Kertkapcsolat

2008 Építés éve

Közös költség 20 000 Ft

Délnyugati Tájolás

Kivételes lokáció Baján – a Szentháromság téren, a város szívében!

Baja egyik legpatinásabb és legkeresettebb részén, a Szentháromság téren kínálunk megvételre egy kiváló adottságokkal rendelkező, 2. emeleten található ingatlant. A központi elhelyezkedés nemcsak a mindennapi kényelmet biztosítja, hanem hosszú távon is értékálló befektetést jelent.

A 2008-ban épült, többcélú épületben található lakás praktikus és sokoldalú elrendezésű: három külön bejáratú szobával rendelkezik, amelyek mindegyike saját fürdőszobával, WC-vel és klímaberendezéssel felszerelt. Ez a kialakítás rendkívül ritka, és számos felhasználási lehetőséget kínál.

Családok számára ideális választás, hiszen minden lakó számára biztosított a saját, privát élettér. Emellett lehetőség van egy tágas, jól kialakítható konyha kialakítására is, amely tovább növeli a komfortot.

Befektetési szempontból is kiemelkedő: a szobák külön-külön is bérbe adhatók, rövid es hosszú távon is üzemeltethető el.

Ne hagyja ki ezt a ritka lehetőséget – Baja szívében, a Szentháromság téren ilyen adottságú ingatlan csak elvétve kerül piacra!
Kémeri-Szekernyés Tímea

Kémeri-Szekernyés Tímea

Hívjon bizalommal

+36-30-248-Mutasd!

További hirdetéseim

Ingatlaniroda
GDN Ingatlanhálózat - SZIGET
+36 24 656 320